05. NXT II Part list.pdf - 第391页
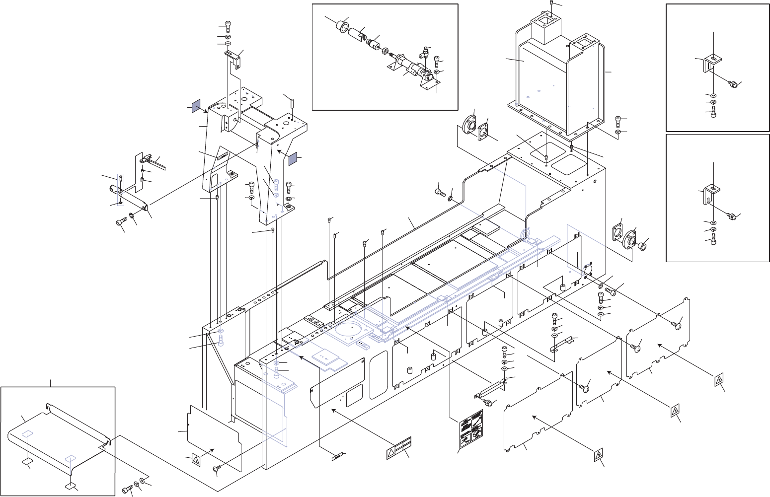
M3 II-BED 1/7 M3 II-ベッド 1/7 UA01829 No. Dr g .No. & Code No. QTY Descri p tion Ratin g Materials Remarks 番号 図番 & コード番号 個数 品名 規 格材 質 備 考 1 PM0D8R3 1 BED ベッド FE 2 PM00105 1 LEVER レバー FE 3 H5323A 2 BOLT, HEX SOCKET…

CC
CC
BB
DD
DD
AA
AA
AA
BB
BB
1
82
2
3
4
5
5.1
6
7
8
9
10
11
11.1
14
15
15
16
16
15
16
16.1
16.2
15
16
17
18
20
73
76
20
20
20
20
20
20
19
30
31
32
33
33.1
63
64
65
66
66.1
34
35
36
37
38
39
40
41
42
44
45
46
50
51
52
53
53
54
54
21
21
55
55
56
56
77
20
17.1
83
22
23
25
26
27
28
28
28
47
48
49
68
69
70
71
72
66.1
69
57
57
57
57
59
60
61
UA01829
0,,࣋ࢵࢻ
0,,%('
14
PTS-NXT2-06JE Vol.2

M3 II-BED 1/7
M3 II-ベッド 1/7
UA01829
No. Dr
g
.No. & Code No. QTY Descri
p
tion Ratin
g
Materials Remarks
番号 図番 & コード番号 個数 品名
規
格材質 備考
1 PM0D8R3 1 BED ベッド FE
2 PM00105 1 LEVER レバー FE
3 H5323A 2 BOLT, HEX SOCKET ボルト 六角穴 M06X018 FE
4 W1013A 2 WASHER, CONICAL ワッシャ 皿 M- 6-H FE
5 H2189Y 1 PIN ピン HCDGH6-16 FE
5.1 S1023A 1 CIR-CLIP サークリッ
プ
ST-EW- 5 OT ACC-5
6 PT00401 1 LEVER レバー FE
7 PM00113 1 COLLAR カラー FE
8 PZ00121 1 SPRING, TORSION ス
プ
リン
グ
ネジリ FE
9 PM25995 1 STOPPER ストッパ FE
10 H5289A 2 BOLT, HEX SOCKET ボルト 六角穴 M04X012 FE
11 W1022A 2 WASHER, LOCK ワッシャ ス
プ
リン
グ
4M
/
MFE
11.1 W1043A 2 WASHER, FLAT ワッシャ 平 4W- 4 FE
14 PM04YR7 1 LEG 脚 FE
15 H5341A 6 BOLT, HEX SOCKET ボルト 六角穴 M08X020 FE
16 W1025A 6 WASHER, LOCK ワッシャ ス
プ
リン
グ
8M
/
MFE
16.1 H5322A 2 BOLT, HEX SOCKET ボルト 六角穴 M06X015 FE
16.2 W1013A 2 WASHER, CONICAL ワッシャ 皿 M- 6-H FE
17 PM04YS4 1 LEG 脚 FE
17.1 PZ48591 1 SHEET シート OT Consumable Parts
18 H5341A 10 BOLT, HEX SOCKET ボルト 六角穴 M08X020 FE
19 W1025A 10 WASHER, LOCK ワッシャ ス
プ
リン
グ
8M
/
MFE
20 PM29652 8 PIN, LOCATING ピン 位置決め FE
21 PM31634 2 NUT ナット FE
22 PP02431 1 COVER カバー FE
23 K5172M 2 SCREW, C
/
R TRUSS 小ネジ 十穴トラス M04X008(3カ シロ) FE
25 PP02441 1 COVER カバー FE
26 PP02401 1 COVER カバー FE
27 PP02411 1 COVER カバー FE
28 K5172M 16 SCREW, C
/
R TRUSS 小ネジ 十穴トラス M04X008(3カ シロ) FE
30 PP02420 2 BKT BKT FE
31 H5289A 2 BOLT, HEX SOCKET ボルト 六角穴 M04X012 FE
32 W1022A 2 WASHER, LOCK ワッシャ ス
プ
リン
グ
4M
/
MFE
33 W1043A 2 WASHER, FLAT ワッシャ 平 4W- 4 FE
33.1 K51999 2 SCREW, WASHER ASS'Y 小ネジ 座金組込み M04X012 P=3 ナベセムス(3カ シロ) FE
34 PB14291 1 BKT BKT FE
35 H5299A 2 BOLT, HEX SOCKET ボルト 六角穴 M05X012 FE
36 W1023A 2 WASHER, LOCK ワッシャ ス
プ
リン
グ
5M
/
MFE
37 W1044A 2 WASHER, FLAT ワッシャ 平 4W- 5 FE
38 K51999 2 SCREW, WASHER ASS'Y 小ネジ 座金組込み M04X012 P=3 ナベセムス(3カ シロ) FE
39 PP01571 1 BKT BKT FE
40 H5299A 2 BOLT, HEX SOCKET ボルト 六角穴 M05X012 FE
41 W1023A 2 WASHER, LOCK ワッシャ ス
プ
リン
グ
5M
/
MFE
42 W1044A 2 WASHER, FLAT ワッシャ 平 4W- 5 FE
44 H5299A 2 BOLT, HEX SOCKET ボルト 六角穴 M05X012 FE
45 W1023A 2 WASHER, LOCK ワッシャ ス
プ
リン
グ
5M
/
MFE
46 W1044A 2 WASHER, FLAT ワッシャ 平 4W- 5 FE
47 S2098W 1 CYLINDER シリンダ CDM2L20-25-DCL7828L OT
48 H5322A 4 BOLT, HEX SOCKET ボルト 六角穴 M06X015 FE
49 W1024A 4 WASHER, LOCK ワッシャ ス
プ
リン
グ
6M
/
MFE
50 K5345D 1 CONTROLLER, SPEED コントローラ スピード AS2211F-01-06S(シロ) OT
15
PTS-NXT2-06JE Vol.2

M3 II-BED 1/7
M3 II-ベッド 1/7
UA01829
No. Dr
g
.No. & Code No. QTY Descri
p
tion Ratin
g
Materials Remarks
番号 図番 & コード番号 個数 品名
規
格材質 備考
51 PM00551 1 SHAFT シャフト FE
52 PM00562 1 PIN, CLAMP ピン クラン
プ
FE
53 H3077N 2 BUSHING
ブ
シュ R-MLEF2220 OT
54 PM31624 2 HOLDER ホルダ FE
55 H5301A 8 BOLT, HEX SOCKET ボルト 六角穴 M05X018 FE
56 W1012A 8 WASHER, CONICAL ワッシャ 皿 M- 5-L FE
57 PZ25381 4 SEAL シール PL
59 PZ25661 1 SEAL シール PL
60 PZ25671 1 SEAL シール PL
61 PZ25681 1 SEAL シール PL
63 PP02390 2 BKT BKT FE
64 H5289A 2 BOLT, HEX SOCKET ボルト 六角穴 M04X012 FE
65 W1022A 2 WASHER, LOCK ワッシャ ス
プ
リン
グ
4M
/
MFE
66 W1043A 2 WASHER, FLAT ワッシャ 平 4W- 4 FE
66.1 K51999 2 SCREW, WASHER ASS'Y 小ネジ 座金組込み M04X012 P=3 ナベセムス(3カ シロ) FE
66.2 AA9ZL00 1 COVER カバー OT
68 PB11836 1 COVER カバー FE
69 PZ05081 2 SHEET シート OT Consumable Parts
70 H5342A 2 BOLT, HEX SOCKET ボルト 六角穴 M08X025 OT
71 W1025A 2 WASHER, LOCK ワッシャ ス
プ
リン
グ
8M
/
MOT
72 W1046A 2 WASHER, FLAT ワッシャ 平 4W- 8 OT
73 PX07971 1 SEAL, BAR CODE シール バーコード OT unit serial number
76 H21158 1 PIN, PARALLEL ピン 平行 ゚8X35 Bシュ OT
77 H20947 1 PIN, PARALLEL ピン 平行 ゚6X16 Aシュ OT
82 PX07601 1 SEAL, BAR CODE シール バーコード OT unit serial number
83 RX02270 1 SEAL シール OT
16
PTS-NXT2-06JE Vol.2