05. NXT II Part list.pdf - 第647页
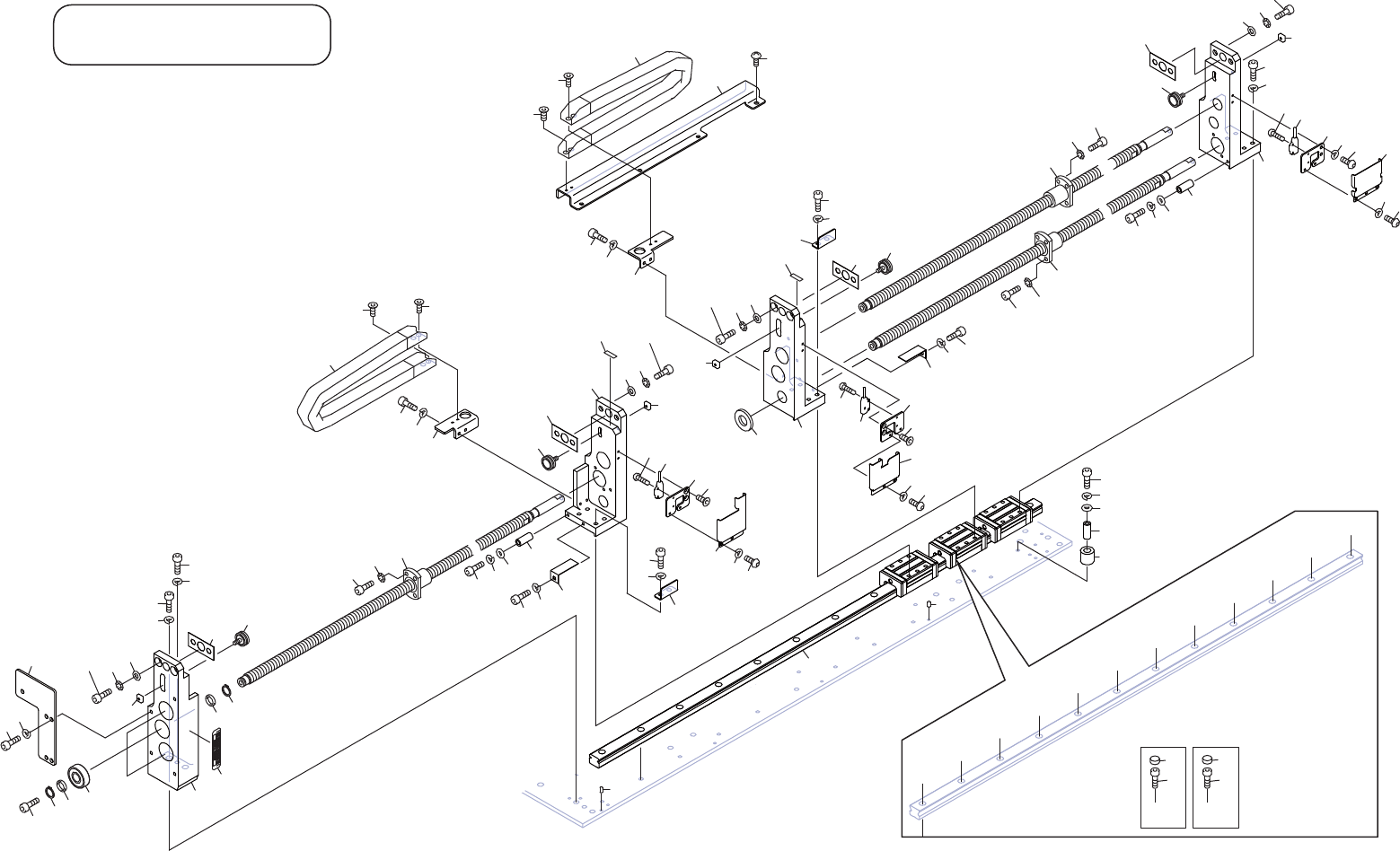
M3 II-DOUBLE CONVEYOR 5/7 M3 II-ダブルコンベア 5/7 UQ04217 No. Dr g .No. & Code No. QTY Descri p tion Ratin g Materials Remarks 番号 図番 & コード番号 個数 品名 規 格材 質 備 考 1 H2096H 3 PIN, PARALLEL ピン 平 行 ゚3X6 Bシュ(ステンレス) OT 2 PM050B…

AA
AA
AA
BB
AA
AA
AA
AA
BB
AA
AA
BB
BB
:LGWKFKDQJHGULYHD[LV
ᖜ᭰㥑ື㍈
AA
2
21
39
47
96
95
91
8
27
53
45
62
86
87
85
14
38
34
33
9
28
46
54
59
63
97
35
92
73
3
6
22
25
40
43
48
51
99
98
100
10
11
4
5
61
64
29
30
31
41
42
23
24
49
50
1
65
66
67
68
69
70
71
72
72
72
72
71
76
77
78
79
80
81
82
81
82
81
82
81
82
21.1
39.1
83
84
62
63
61
64
85
86
87
15.1
88
89
90
26
44
93
94
4.1
23.1
41.1
49.1
73.1
12
13
12
13
15
16
17
15
16
17
55
57
56
58
18
19
20
36
37
36
37
36
37
56
UQ04217
0,,ࢲࣈࣝࢥࣥ࣋
0,,'28%/(&219(<25
270
PTS-NXT2-06JE Vol.2

M3 II-DOUBLE CONVEYOR 5/7
M3 II-ダブルコンベア 5/7
UQ04217
No. Dr
g
.No. & Code No. QTY Descri
p
tion Ratin
g
Materials Remarks
番号 図番 & コード番号 個数 品名
規
格材質 備考
1 H2096H 3 PIN, PARALLEL ピン 平行 ゚3X6 Bシュ(ステンレス) OT
2 PM050B3 1 BKT BKT FE
3 PJ16793 1 SHEET シート OT Consumable Parts
4 H5298A 2 BOLT, HEX SOCKET ボルト 六角穴 M05X010 FE
4.1 PM015W0 2 BOLT, HEX SOCKET ボルト 六角穴 FE Thin
p
anel o
p
tion
5 W1012A 2 WASHER, CONICAL ワッシャ 皿 M- 5-L FE
6 PJ12922 2 WASHER ワッシャ OT
8 H5324A 2 BOLT, HEX SOCKET ボルト 六角穴 M06X020 FE
9 W1024A 2 WASHER, LOCK ワッシャ ス
プ
リン
グ
6M
/
MFE
10 H5426X 1 BOLT, HEX SOCKET ボルト 六角穴 M04X025(3カ シロ) FE
11 W1022A 1 WASHER, LOCK ワッシャ ス
プ
リン
グ
4M
/
MFE
12 S1031A 6 CIR-CLIP サークリッ
プ
STW 10 OT
13 W10049 6 WASHER ワッシャ LRB10-1.0 OT
14 H4202Z 3 BEARING ベアリン
グ
6900ZZ OT
15 XN00223 2 SCREW ネジ OT
15.1 H52966 3 BOLT, HEX SOCKET ボルト 六角穴 M05X006 FE
16 H60286 4 BOLT, HEX SOCKET ボルト 六角穴 M04×010テイトウ(LH0410) FE
17 W1011A 4 WASHER, CONICAL ワッシャ 皿 M- 4-L FE
18 XN00233 1 SCREW ネジ OT
19 H60286 2 BOLT, HEX SOCKET ボルト 六角穴 M04×010テイトウ(LH0410) FE
20 W1011A 2 WASHER, CONICAL ワッシャ 皿 M- 4-L FE
21 PM050D5 1 BKT BKT FE
21.1 PS03990 1 SHEET シート OT Consumable Parts
22 PJ16793 1 SHEET シート OT Consumable Parts
23 H5298A 2 BOLT, HEX SOCKET ボルト 六角穴 M05X010 FE
23.1 PM015W0 2 BOLT, HEX SOCKET ボルト 六角穴 FE Thin
p
anel o
p
tion
24 W1012A 2 WASHER, CONICAL ワッシャ 皿 M- 5-L FE
25 PJ12922 2 WASHER ワッシャ OT
26 PB03ZD0 1 BKT, RETAINER BKT 押え FE
27 H5290A 4 BOLT, HEX SOCKET ボルト 六角穴 M04X015 FE
28 W1022A 4 WASHER, LOCK ワッシャ ス
プ
リン
グ
4M
/
MFE
29 PP03290 1 BKT, SENSOR BKT センサ FE
30 K5255T 2 SCREW, HEX SOCKET BUTTON 小ネジ 六角穴ボタン M03X006 FE
31 W1021A 2 WASHER, LOCK ワッシャ ス
プ
リン
グ
3M
/
MFE
33 PP02501 1 RETAINER, WIRING 押え 配線 FE
34 K5255A 2 SCREW, HEX SOCKET BUTTON 小ネジ 六角穴ボタン M03X004 FE
35 W1021A 2 WASHER, LOCK ワッシャ ス
プ
リン
グ
3M
/
MFE
36 XS03381 3 SENSOR センサ OT
37 K5175T 6 SCREW, C
/
R PAN 小ネジ 十穴鍋 M02X005(0バン1シュ)SUS FE
38 PG00075 1 STOPPER ストッパ OT
39 PM050F5 1 BKT BKT FE
39.1 PS03990 1 SHEET シート OT Consumable Parts
40 PJ16793 1 SHEET シート OT Consumable Parts
41 H5298A 2 BOLT, HEX SOCKET ボルト 六角穴 M05X010 FE
41.1 PM015W0 2 BOLT, HEX SOCKET ボルト 六角穴 FE Thin
p
anel o
p
tion
42 W1012A 2 WASHER, CONICAL ワッシャ 皿 M- 5-L FE
43 PJ12922 2 WASHER ワッシャ OT
44 PB03ZD0 1 BKT, RETAINER BKT 押え FE
45 H5290A 4 BOLT, HEX SOCKET ボルト 六角穴 M04X015 FE
46 W1022A 4 WASHER, LOCK ワッシャ ス
プ
リン
グ
4M
/
MFE
47 PM050H3 1 BKT BKT FE
271
PTS-NXT2-06JE Vol.2

M3 II-DOUBLE CONVEYOR 5/7
M3 II-ダブルコンベア 5/7
UQ04217
No. Dr
g
.No. & Code No. QTY Descri
p
tion Ratin
g
Materials Remarks
番号 図番 & コード番号 個数 品名
規
格材質 備考
48 PJ16793 1 SHEET シート OT Consumable Parts
49 H5298A 2 BOLT, HEX SOCKET ボルト 六角穴 M05X010 FE
49.1 PM015W0 2 BOLT, HEX SOCKET ボルト 六角穴 FE Thin
p
anel o
p
tion
50 W1012A 2 WASHER, CONICAL ワッシャ 皿 M- 5-L FE
51 PJ12922 2 WASHER ワッシャ OT
53 H5290A 4 BOLT, HEX SOCKET ボルト 六角穴 M04X015 FE
54 W1022A 4 WASHER, LOCK ワッシャ ス
プ
リン
グ
4M
/
MFE
55 2MGKCB000401 1 GUIDE, RAIL ガイド レール OT
56 K20089 12 CAP キャッ
プ
C04 OT
57 PZ09961 9 BOLT, HEX SOCKET ボルト 六角穴 OT
58 H5426S 3 BOLT, HEX SOCKET ボルト 六角穴 M04X018(3カ シロ) FE
59 H2096H 5 PIN, PARALLEL ピン 平行 ゚3X6 Bシュ(ステンレス) OT
61 PM081R1 2 COLLAR カラー FE
62 H5293A 2 BOLT, HEX SOCKET ボルト 六角穴 M04X025 FE
63 W1022A 2 WASHER, LOCK ワッシャ ス
プ
リン
グ
4M
/
MFE
64 W1040S 2 WASHER, FLAT ワッシャ 平 4M
/
MX0.8X9(1W-4)(3カ クロ) FE
65 PB90471 1 BKT BKT FE
66 H5274A 2 BOLT, HEX SOCKET ボルト 六角穴 M03X006 FE
67 W1021A 2 WASHER, LOCK ワッシャ ス
プ
リン
グ
3M
/
MFE
68 PB90481 1 BKT BKT FE
69 H5274A 2 BOLT, HEX SOCKET ボルト 六角穴 M03X006 FE
70 W1021A 2 WASHER, LOCK ワッシャ ス
プ
リン
グ
3M
/
MFE
71 K41620 2 FLEXIBLE TRACK ケー
ブ
ルベア 07.10-018-0-17-060.10.12 OT
72 K5357M 8 SCREW, HEX SOCKET COUNTERSUNK 小ネジ 六角穴皿 M03X006 FE
73 PX07661 1 SEAL, BAR CODE シール バーコード OT unit serial number
73.1 PX09920 1 SEAL, BAR CODE シール バーコード OT Thin
p
anel o
p
tion, unit serial number
76 PG04871 1 STOPPER ストッパ PL
77 PM082R0 1 COLLAR カラー FE
78 H5292A 1 BOLT, HEX SOCKET ボルト 六角穴 M04X020 FE
79 W1022A 1 WASHER, LOCK ワッシャ ス
プ
リン
グ
4M
/
MFE
80 W1040S 1 WASHER, FLAT ワッシャ 平 4M
/
MX0.8X9(1W-4)(3カ クロ) FE
81 ADBPP8012 4 PULLEY
プ
ーリ OT
82 N10790 4 NUT, SQUARE ナット 四角 M 4 P=0.7(3カ シロ) FE
83 PB90464 1 DUCT, WIRING ダクト 配線 FE
84 K5172L 4 SCREW, C
/
R TRUSS 小ネジ 十穴トラス M04X006(3カ シロ) FE
85 PP02521 2 RETAINER, WIRING 押え 配線 FE
86 H5287A 2 BOLT, HEX SOCKET ボルト 六角穴 M04X008 ゼンネジ FE
87 W1022A 2 WASHER, LOCK ワッシャ ス
プ
リン
グ
4M
/
MFE
88 PB02SN1 1 PLATE
プ
レート FE
89 H5288A 2 BOLT, HEX SOCKET ボルト 六角穴 M04X010 FE
90 W1022A 2 WASHER, LOCK ワッシャ ス
プ
リン
グ
4M
/
MFE
91 PB06KY0 1 BKT, SENSOR BKT センサ FE
92 K5357H 2 SCREW, HEX SOCKET COUNTERSUNK 小ネジ 六角穴皿 M03X005 FE
93 PB06KZ0 1 BKT, SENSOR BKT センサ FE
94 K5357H 2 SCREW, HEX SOCKET COUNTERSUNK 小ネジ 六角穴皿 M03X005 FE
95 PB059D1 1 RETAINER, WIRING 押え 配線 FE
96 K5255A 2 SCREW, HEX SOCKET BUTTON 小ネジ 六角穴ボタン M03X004 FE
97 W1021A 2 WASHER, LOCK ワッシャ ス
プ
リン
グ
3M
/
MFE
98 PB059E1 1 RETAINER, WIRING 押え 配線 FE
99 K5255A 2 SCREW, HEX SOCKET BUTTON 小ネジ 六角穴ボタン M03X004 FE
100 W1021A 2 WASHER, LOCK ワッシャ ス
プ
リン
グ
3M
/
MFE
272
PTS-NXT2-06JE Vol.2