S10_LF3_mpl - 第52页
LF3-191 1 Rev . :It had a change without the compatibility . Please be careful at the time of the parts ordering. Rev.: 過去に互換性の無い変更が入った部品。部品発注時は注意してください。 No. Part No. Part Name Q’ty Remarks Rev. Rank Level No. Part No. P…

LF3-1911
41
41
49
50
10
10
22
22
18
29
33
1
2
1
1
1
34
48
5
46
17
31
1
1
1
44
52
12
1
1
1
32
1
2
49
1
14
48
47
3
16
40
8
52
11
40
40
3
26
50
20
45
23
21
28
27
50
13
11
4
51
3
10
44
46
19
20
38
21
18
22
30
28
6
3
15
3
47
10
35
38
19
39
3
37
51
43
45
50
3
27
39
3
23
43
50
25
3
9
3
51
50
39
3
36
23
43
24
42
42
7
41
41
49
50
10
10
22
22
18
29
33
1
2
1
1
1
34
48
5
46
17
31
1
1
1
44
52
12
1
1
1
32
1
2
49
1
14
48
47
3
16
40
8
52
11
40
40
3
26
50
20
45
23
21
28
27
50
13
11
4
51
3
10
44
46
19
20
38
21
18
22
30
28
6
3
15
3
47
10
35
38
19
39
3
37
51
43
45
50
3
27
39
3
23
43
50
25
3
9
3
51
50
39
3
36
23
43
24
42
42
7
7
2
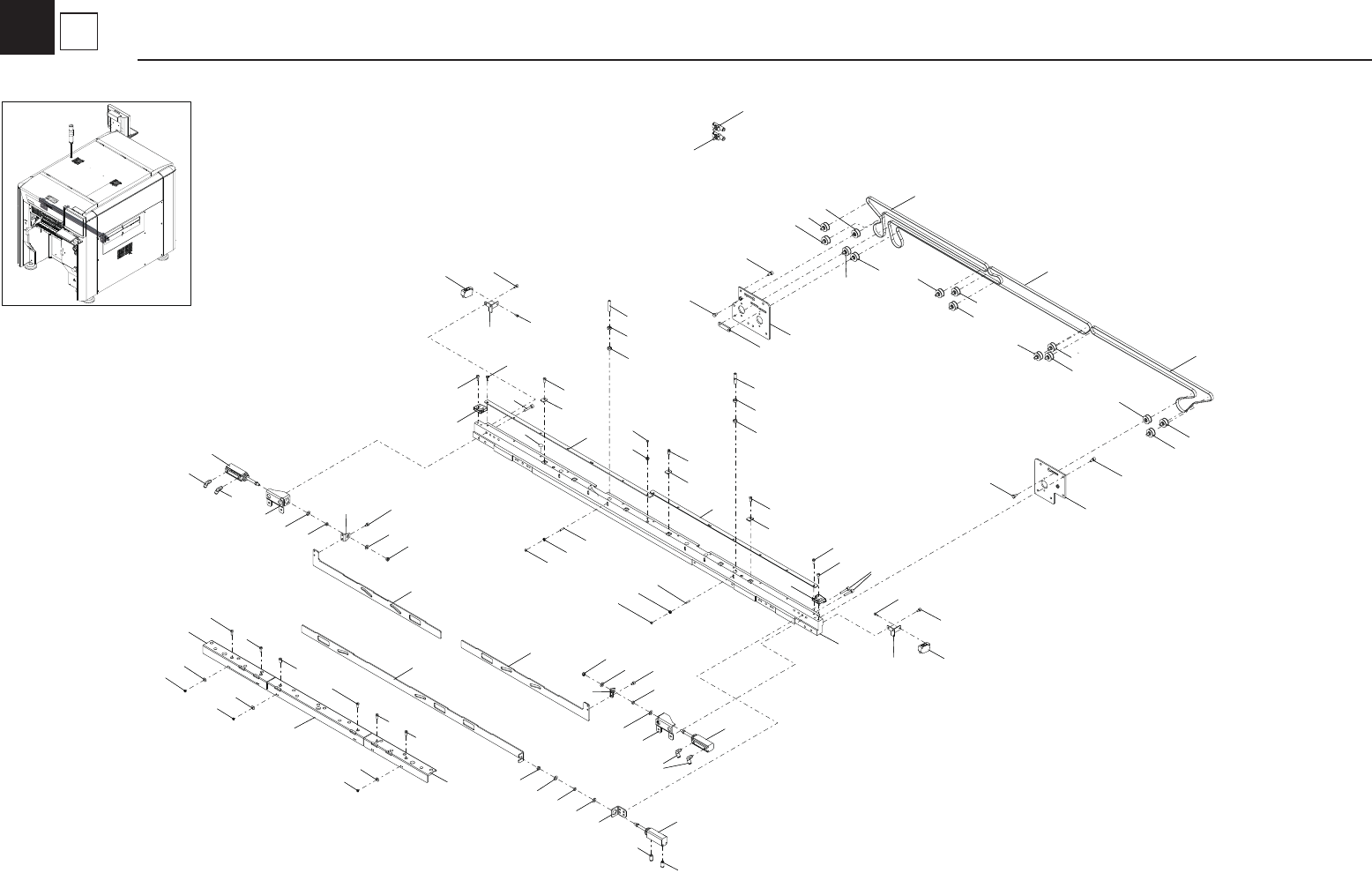
Rail Fixed
Conveyor Unit

LF3-1911
Rev. :It had a change without the compatibility. Please be careful at the time of the parts ordering.
Rev.: 過去に互換性の無い変更が入った部品。部品発注時は注意してください。
No. Part No. Part Name Q’ty Remarks Rev. Rank Level No. Part No. Part Name Q’ty Remarks Rev. Rank Level
1 KV1-M9140-A0 PULLEY,CONV. ASSY. 12 /
39 LG0-M71F1-00 WASHER L,PLAIN 6 /
Í
2 KV7-M9140-A0 PULLEY CONV. ASSY 2 /
40 LG0-M78A7-00 JOINT 4 /
Í
3 LC2-M912M-00 LOW HEAD CAP SCREW 26 /
Í
41 LG0-M90AR-10 SPCON. 6 /
Í
4 LE6-M11E2-00 PLATE,MARK 1 /
Í
42 LG8-M14A5-00 JOINT 2 /
Í
5 LE6-M65E2-30 PCB-LF SENS.ASSY 1 B
Í
43 90990-10J008 SCREW, BINDING HEAD 6
6 LE6-M65E2-50 PCB-RF SENS.ASSY 1 B
Í
44 91312-03008 BOLT HEX,SOCKET HEAD 4
7 LE6-M65E6-20 QC-CF CYL. ASSY 1 B
Í
45 91312-04006 BOLT HEX,SOCKET HEAD 4
8 LE6-M65E6-40 QC-LF CYL. ASSY 1 B
Í
46 91312-04008 BOLT HEX,SOCKET HEAD 4
9 LE6-M65E6-60 QC-RF CYL. ASSY 1 B
Í
47 91312-04010 BOLT HEX,SOCKET HEAD 4
10 LE6-M9412-00 BUSH 12 /
Í
48 91312-05010 BOLT HEX,SOCKET HEAD 4
11 LE6-M9414-00 GUIDE,PCB 2 /
Í
49 91312-05025 BOLT HEX,SOCKET HEAD 6
12 LE6-M9416-00 NUT,PLATE 1 /
Í
50 92903-05200 WASHER,PLAIN 6
13 LE6-M9419-00 HOLDER,MARK 1 /
Í
51 95307-05600 NUT HEXAGON 3
14 LE6-M941E-10 BLOCK,GUIDE 1 1 /
Í
52 97012-05008 BOLT,HEXAGON 2
15 LE6-M941F-10 BLOCK,GUIDE 2 1 /
Í
53
16 LE6-M941K-00 PLATE,PULLEY 1 1 /
Í
54
17 LE6-M941L-00 PLATE,PULLEY 2 1 /
Í
55
18 LE6-M945L-00 BRACKET,SENSOR 2 /
Í
56
19 LE6-M9477-00 SHAFT,SLIDE 6 /
Í
57
20 LE6-M9479-00 PIN,NEEDLE 6 /
Í
58
21 LE6-M947A-01 BRG 6 /
Í
59
22 LE6-M947F-00 PLATE,LEVER 6 /
Í
60
23 LE6-M947K-00 SPACER 3 /
Í
61
24 LE6-M947M-00 BRKT.CYL 1 /
Í
62
25 LE6-M947N-00 BRKT.CYL 1 /
Í
63
26 LE6-M947P-00 BRKT.CYL 1 /
Í
64
27 LE6-M947R-00 JOINT,CYL R 2 /
Í
65
28 LE6-M947T-00 SPACER 6 /
Í
66
29 LE6-M947Y-00 LABEL 1 /
Í
67
30 LE7-M9411-00 FRAME,RAIL 1 /
Í
68
31 LE7-M9417-00 BELT 1 E
69
32 LE7-M9417-10 BELT 1 E
70
33 LE7-M9417-20 BELT 1 E
71
34 LE7-M9471-01 CLAMPER,1 1 /
Í
72
35 LE7-M9472-01 CLAMPER,2 1 /
Í
73
36 LE7-M9473-01 CLAMPER,3 1 /
Í
74
37 LE7-M947H-11 LEVER,1 1 /
Í
75
38 LE7-M947J-00 LEVER,2 2 /
Í
76
7
2
Rail Fixed
Conveyor Unit
