NPM-D2 (1) - 第501页
Ref No. Remark s R 1 Q'ty 92-E 汎用型 転写 ユニット(メカ):NPM MULTIFUNCT IONAL TRANSFER UNIT:NPM イラスト No. Part No. 品 名 品番 数量 R 2 パーツリスト Kit N o . キット品 番 Kit Name キット名称 N610095857AA Part Nam e 備 考 セクションNo. PARTS LIST Section No…

92-E
汎用型
転写
ユニット(メカ):NPM
MULTIFUNCTIONAL TRANSFER UNIT:NPM
パーツレイアウト
Ki
t
N
o
.
キット
品番
Kit Name
キット名称
N610095857AA
セクションNo.
PARTS LAYOUT
Section No.
--
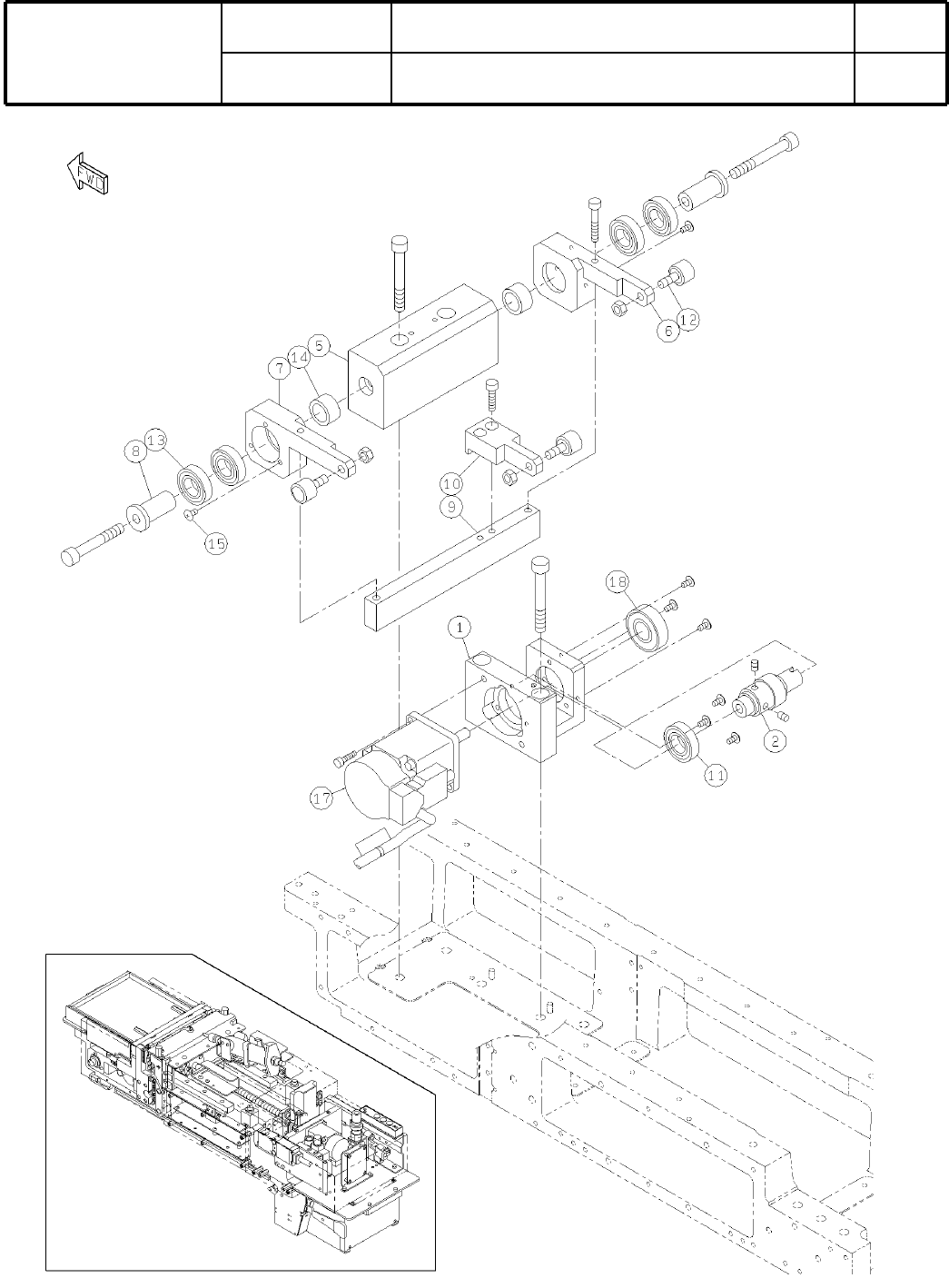
O313
( KN610095857AA-11-5 )

Ref
No.
Remarks
R
1
Q'ty
92-E
汎用型
転写
ユニット(メカ):NPM
MULTIFUNCTIONAL TRANSFER UNIT:NPM
イラスト
No.
Part No.
品 名品番 数量
R
2
パーツリスト
Kit N
o
.
キット品
番
Kit Name
キット名称
N610095857AA
Part Name
備 考
セクションNo.
PARTS LIST
Section No.
R
3
BRACKET
1
1 N210125558AA
CAM
1
2 N210088591AB
BLOCK
1
5 N210117423AA
ARM
1
6 N210117424AA
ARM
1
7 N210117425AA
COLLAR
2
8 N210063162AB
BAR
1
9 N210063085AC
ARM
1
10 N210063086AC
BEARING
1
11 KXF00MLAA00 6901ZZ2CM
CAM-FOLLOWER
3
12 N510026046AA CF5FBUUR
BEARING
4
13 N510010068AA 6901ZZC2
WASHER
2
14 N210159703AA
SCREW
20
15 XST3+6VW
Cross recessed Truss head machine screw M3X6-A2-70
MOTOR
1
17 N610069410AB
BEARING
1
18 KXF00K0AA00 6001ZZCM
O314
--
( KN610095857AA-11-5 )

92-F
汎用型
転写
ユニット(メカ):NPM
MULTIFUNCTIONAL TRANSFER UNIT:NPM
パーツレイアウト
Ki
t
N
o
.
キット
品番
Kit Name
キット名称
N610095857AA
セクションNo.
PARTS LAYOUT
Section No.
--
O315
( KN610095857AA-11-6 )