S27HM Circuit Diagrams - 第130页
4 - 16 0037522 1-010 101 TD3 Design, termi nal bloc k, voltages, approx . from serial no . 225 2 12 1 3344 6 56 59 78 7 1 0 1 1 P EP EP EP E X206 7 4 4 Option Leave 4 rib s on top PE PE Leave 2 ribs on bottom PE Cabl e d…

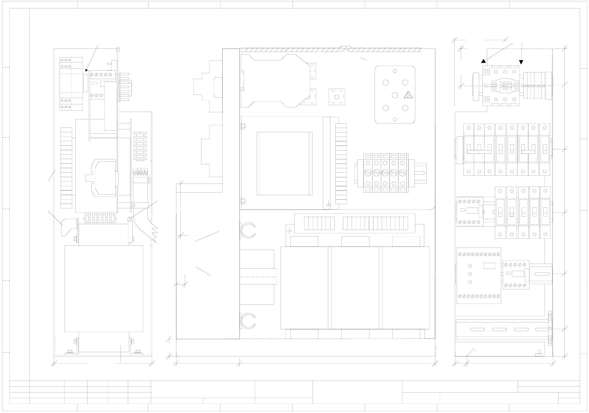
4 - 15
00364174-010101TD3 Control unit, S-27 HM (viewed from the front)
(ty)
(ss)
(te)
(sc)
(td)
(sa)
(th)
(sg)
(sf)
(se)
(sd)
(sn)
(sm)
(tr)
(tq)
(tc)
(sb)
SIEMENS PL EA
00365174 / FS
AA-BBBB-CCCC
40
18
04.05.01
A3
1
04.05.2001 Wollgarten
26.06.01 TekneuUS01
00364174-010101TD3
1
L&A EA
SIEMENS
FS ES US UA S F
COM-1COM-2
VGA
LAN1 LAN2
X4sa
X6sa
X11 X12 X7sa
X5sa
X10 X3
Floppy
Servo
Servo
Servo
X3sm
X3sn
Servo
Servo
Servo
Servo
Servo
Servo
X3tq
X3tr
Servo
Servo
Servo
S-COM 1
X2sd
S-COM 2
X3sd
S-COM 3
X4sd
S-COM 4
X5sd X6sd X7sd
S-COM 1S-COM 2
AUX VGA HS3L
X4scX3sc
X6scX7sc
X8scX5scX9sc
Abort
Reset
Reserved for
Reserved for
Reserved for
I/O board A5
I/O board A3
Axis board 1 x AC
A8 assembly
Axis board1 x AC
A9 assembly
A6 assembly
A7 assembly
Communications assembly
A13 assembly
I/O board A4
Winchester/Floppy M54
A11 assembly
Conveyor control TSP
A37 assembly
Spare
Axis board
Axis board
Reserved for
Reserved for
GEM machine controller
A12 assembly
Winchester/Floppy GEM
A17 assembly
Maschine controller M54
A1 assembly
Spare
* Please note
Apply the following labels on the outside (flush with the front plate):
A: identification label
Font size 2.5mm, material Scotchal 3698-E (color Al RAL 9006)
Assembly inscription acc. to VA-F-510-001
Function status (FS) in compliance with the current parts list
- connect inside of cable harness coating with cabinet
- fit metallic caps 00354066 on unused sockets
Please note:
Coplanarity module
Reserved for
Reserved for
Video multiplexer
A18 assembly
A19 assembly
A26 assembly
S23 power supply unit
Vision module
A2 assembly
Spare
Spare
Spare
Spare
B: inspection label Identification: testing engineer, month, year
Date (year/month/day) acc. to SN 01007
Manufacturer/location acc. to SN 37040
Series number
Printer
Mouse
Keyboard
Harddisk
Off Off OffOff
OffOffOffOff
OffOffOffOff
CAN bus CAN bus
A35 fan unit (ue)
Camera 2/4 Camera 1/3
* Please note
Battery
3.8V
Status Modified Date Name
Scale
1:2
Date Name
Author
Check.
Stand.
SMD placement system SIPLACE S-27 HM
Control unit, S-27 HM
( viewed from the front )
(Drawing number)
Main no.
Sheet
Sh.
GND
+24V
-15V
+15V
-12V
+12V
+5V
Fail

4 - 16
00375221-010101TD3 Design, terminal block, voltages, approx. from serial no. 225
2121 3344 65659787 1 0 1 1 P EP EP EP E
X206
7
44
Option
Leave 4 ribs on top
PEPE
Leave 2 ribs on bottom
PE
Cable duct must not protrude over bottom plate!
In front of the PE terminals
X5
4321
123456
X7
K1 K2 K3
X2
X1
1234567
8 9 10 11
1
67 8
1234567 8
A
B
C
D
E
F
not included in the scope of delivery
In front of the M terminals
In front of the M terminals
A
B
C
D
E
F
12 3 4 5
X2
X1
X4
X3
X6
234567
89
12345
6
Cable channel 65x3 0 l= 175mm
x
x
x
Cable channel 65 X 30 l= 120mm
C
Cable channel 65 x 66 l= 460mm
XXXXX
x
Cable channel 65 x46 l= 425mm
xx
x
X
X
X
X
Cable channel 65 X 30 l= 335mm
X
X
X
X
X
X
X
X
X
A
B
Apply the following labels:
A: Identification label
B: Inspection label Identification: Test. engineer, month, year
C: Grounding label
D: Space for voltage label from the NAFTA label set (for the USA only)
SIEMENS L&A EA 1
00375221-xx
AA-BBBB-CCCC
Assembly inscription as per inscription guide line VA-F-510-001
Font size 2.5mm, material Scotchcal 3698-E (color: A1 RAL 9006)
Label size LxW 40x20mm
AA
BBBB
CCCC
Grounding connection as per DS 00343603-xx
Split washer, DIN 7980
Nut, DIN 439
Washer, DIN 125
Annular cable lug
Contact washer, SN 70093
Nut, DIN 439
Screw
00341194-xx
Cable channel lengths: +/- 5mm
11111
555 895
2233
678
X207
M 10
A4
A5
A1
X means to break off one rib from the cable duct
L2L1 L2L1 L3L3 N NN
Weitergabe sowie Vervielfältigung dieser Unterlage,Ver-
wertung und Mitteilung ihres Inhalts nicht gestattet, soweit
nicht ausdrücklich zugestanden. Zuwiderhandlungen ver-
pflichten zu Schadenersatz. Alle Rechte vorbehalten, ins
besondere für den Fall der Patenterteilung oder GM-Eintragung
Proprietary data, company confidential. All rights reserved.
Confie a titre de secret d´entreprise. Tous droits reserves.
Comunicado como segredo empresarial. Reservados todos os direilos.
Confiado como secrete industrial. Nos reservamos todos los derechos.
L&A
SIEMENS
Check.
Author
Date
Stand.Status
1 .
1 .
1 .
Modified Date Name
Function status
Product status
Document status
25.10.2003
25.10.2003
25.10.2003
Tuth
Tuth
Tuth
Orig.
L&A EA1 R&D
Tuth
29.10.2003
Repl. f. Repl. by
00375221-010101TD3
Design, terminal block voltages
SIPLACE S-27 HM
1
Sheet
Sh.
1
Serial number
Date (year / month / day) as per SN 01007
Manufacturer / location as per SN 37040
approx. from serial no. 225

4 - 17
00375503-010101TD3 Power supply unit, design, approx. from serial no. 260 (sh. 1 of 2)
78
1234567 8
A
B
C
D
E
F
1U1
1V1
1W1
1U3
1V3
1W3
1N
2U1
2V1
2W1
3U3
3V3
3W3
3U1
3V1
3W1
4U1
4V1
4W1
4N
1
2
A1 X1 X3 X5 13 23 33 43 53 65
A2 X2 X4 X6 14 24 34 44 54 66
A
B
C
D
E
F
123456
K1
Power
Channel 1
Channel 2
1
24
3
6
5
1
2
1
2
1
2
1
2
F1
F7
F9 F10
F11
85mm
65mm
Make sure that the main switch can be moved on the top hat rail for max. 2mm to the left or to the right!
170
Cables must not protrude over the upper edge of the frame !
Edge protection
V3
V2 V5
EH10mm
K3
246
135
N
N
16A
6A 10A
6A
6A
A
B
Identification label
Inspection label
X200
N
N
PE
PE
PE
PE
1
2
1
2
F3
F5
10A
6A
Inrush current limiter
A1
PE
1
2
3
5
6
6
8
9
10
11
11
13
14
1
2
F6
6A
7
12
4
170mm
PE
1
2
3
5
6
6
8
9
10
11
11
13
14
7
12
4
V3
A1
21,2
O6,0
0,0
130
167,0
270,0
370,0
470,0
535,0
TS 35 l= 160 TS 35 l= 146 TS 35 l= 146 TS 35 l= 164 TS 35 l= 130
Fit the clamp and use it as spacer
Align K4 contactor with the right side!
Connections must not protrude over the terminals!
T1
0,0 119,0 423,0 0,0
140
29,5
15
EH10mm
EH10mm
F5.1
F5.2
F6.2
F6.1
F9.1
V1
T2
Edge protection
V1
K4
Fit the wires A1 and K4 using cable ties
2
1
4
3
F4.1
25A
K2
1
2
F4
20A
15
Weitergabe sowie Vervielfältigung dieser Unterlage,Ver-
wertung und Mitteilung ihres Inhalts nicht gestattet, soweit
nicht ausdrücklich zugestanden. Zuwiderhandlungen ver-
pflichten zu Schadenersatz. Alle Rechte vorbehalten, ins
besondere für den Fall der Patenterteilung oder GM-Eintragung
Proprietary data, company confidential. All rights reserved.
Confie a titre de secret d´entreprise. Tous droits reserves.
Comunicado como segredo empresarial. Reservados todos os direilos.
Confiado como secrete industrial. Nos reservamos todos los derechos.
L&A EA1 R&D
SIEMENS
Check.
Author
Date
Stand.Status
1 .
1 .
1 .
Modified Date Name
Function status
Product status
Document status
20.01.2004
20.01.2004
20.01.2004
Tuth
Tuth
Tuth
Orig.
L&A EA1
Tuth
20.01.2004
Repl. f. Repl. by
00375503-010101TD3
Power supply unit, design
SIPLACE S-27 HM
2
Sheet
Sh.
1
approx. from serial no. 260