S27HM Circuit Diagrams - 第138页
5 - 2 0030844 3-050 101ND 4 D ischarg e board 0032085 4-020 202MD4 745 pri nted c ircuit boa rd, ba ckplane - servo Y1002 SIEMENS L&A Date Author Check. Stand. Name File name: Stat. Modif ied Date Name (Mate rial nu …

5 - 1
5 Printed circuit boards
00300167-020101ND4 Rectifier board, 30V
00300169-020101ND4 Rectifier board, 60V
1.
pflichten zu Schadenersatz. Alle Rechte vorbehalten, ins
besondere für den Fall der Patenterteilung oder GM-Eintragung
wertung und Mitteilung ihres Inhalts nicht gestattet, soweit
Weitergabe sowie Vervielfältigung dieser Unterlage,Ver-
nicht ausdrücklich zugestanden. Zuwiderhandlungen ver-
Proprietary date, company confidential. All rights reserved.
Confie a titre de secret d'entreprise. Tous droits reserves.
Confiado como secrete industrial. Nos reservamos todos los derechos.
Comunicado como segredo empresarial. Reservados todos os direitos.
00300167.21N
Function status
Document status
Product status
Rectifier board, 30V
SMD placement system Siplace S-27 HM
B
1
1
X2rd
X1rd
A4
A
X2
X1
1/1
V2V1
SIEMENS
L&A
Date
Author
Check.
Stand.
Name
File name:
Stat.
Modified
Date
Name
(Material number)
Format A4
Mat. no.: FS PS DS L/F
Sheet
Scale
(a1_1zu1.vsd)
00300167-020101ND4
28.05.1996
28.05.1996
Tu.
Tu.
Tu.28.05.96
28.05.96
28.05.96
1.
2.
GND
GND
VAC
VAC
VAC
VAC
1
4
3
2
6
5
X1 X2
9
4
6
7
8
5
3
2
1
V+
GND
GND
V+
V+
GND
V+
V+
V+
00300169-020101ND4
28.05.1996
28.05.1996
pflichten zu Schadenersatz. Alle Rechte vorbehalten, ins
besondere für den Fall der Patenterteilung oder GM-Eintragung
wertung und Mitteilung ihres Inhalts nicht gestattet, soweit
Weitergabe sowie Vervielfältigung dieser Unterlage,Ver-
SIEMENS
L&A
Date
Author
Check.
Stand.
Name
File name:
Stat.
Modified
Date
Name
(Material number)
Format A4
Mat. no.: FS PS DS L/F
Sheet
Scale
(a1_1zu1.vsd)
X1
4
6
5
3
2
1
GND
VAC
VAC
VAC
VAC
GND
X2
9V+
4
6
7
8
5
3
2
1
GND
GND
V+
V+
GND
V+
V+
V+
Function status
Document status
Product status
00300169.21N
1 .
1 .
2 .
28.05.96 Tu.
28.05.96
28.05.96 Tu.
Tu.
Siplace SMD placement system S-27 HM
Rectifier board, 60V
Install 60V rectifier board in terminal block 00356643-xx only
PLEASE NOTE:
nicht ausdrücklich zugestanden. Zuwiderhandlungen ver-
Proprietary date, company confidential. All rights reserved.
Confie a titre de secret d'entreprise. Tous droits reserves.
Confiado como secrete industrial. Nos reservamos todos los derechos.
Comunicado como segredo empresarial. Reservados todos os direitos.

5 - 2
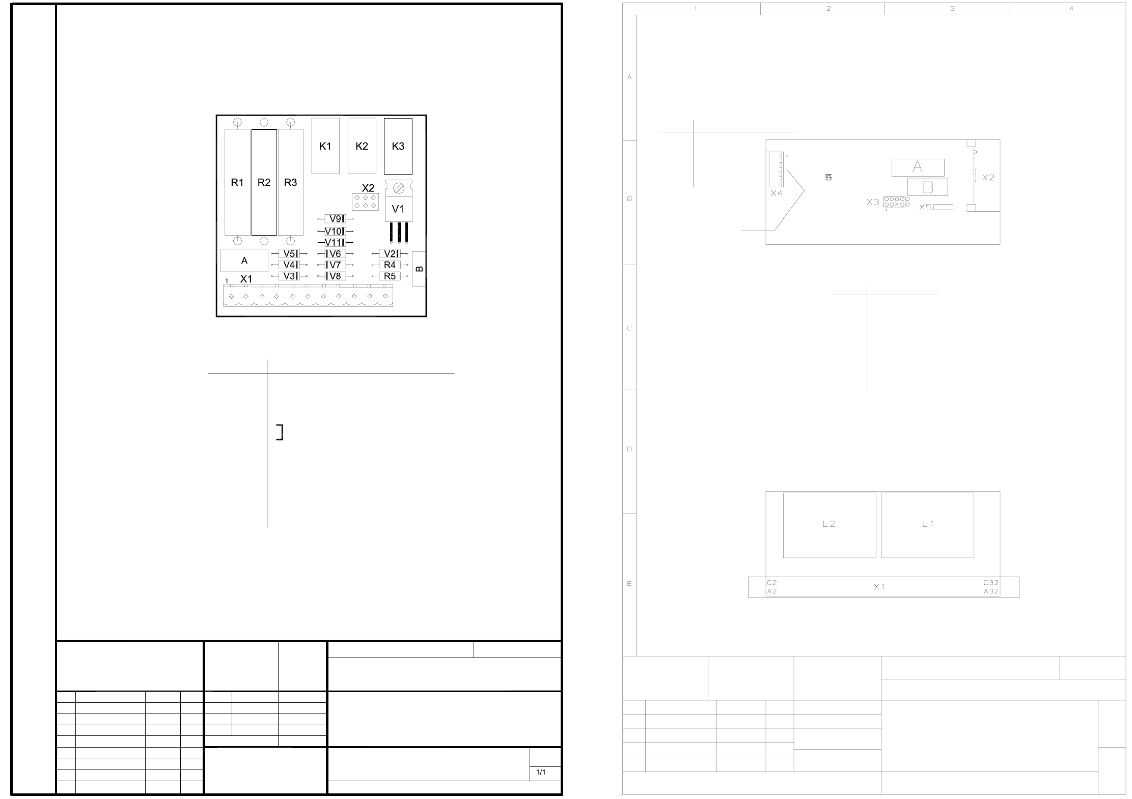
00308443-050101ND4 Discharge board
00320854-020202MD4 745 printed circuit board, backplane - servo Y1002
SIEMENS
L&A
Date
Author
Check.
Stand.
Name
File name:
Stat.
Modified
Date
Name
(Material number)
Format A4
Mat. no.: FS PS DS L/F
Sheet
Scale
(a1_1zu1.vsd)
X1
9 6L+ permanent, 30V-
4
6
7
8
5
3
2
1
1+ X/Y servo
2L+ / 5L+, 70V- / 10V-
7L+ switchable, 30V-
2L+ Lifting table, 70V-
Signaling circuit (K2)
Signaling circuit (K1)
+24V regulated
Old drawing no.: 1710470-Y0034-000-04
pflichten zu Schadenersatz. Alle Rechte vorbehalten, ins
besondere für den Fall der Patenterteilung oder GM-Eintragung
wertung und Mitteilung ihres Inhalts nicht gestattet, soweit
Weitergabe sowie Vervielfältigung dieser Unterlage,Ver-
nicht ausdrücklich zugestanden. Zuwiderhandlungen ver-
Proprietary date, company confidential. All rights reserved.
Confie a titre de secret d'entreprise. Tous droits reserves.
Confiado como secrete industrial. Nos reservamos todos los derechos.
Comunicado como segredo empresarial. Reservados todos os direitos.
Function status
Document status
Product status
28.05.96
28.05.96
28.05.96
Discharge board
SMD placement system Siplace S-27 HM
28.05.1996
28.05.1996
00308443.51N
00308443-050101ND4
1 .
5 .
1 .
Tu.
Tu.
Tu.
GND
3L+ switchable, 30V- tape cutter10
11
02 15.04.96
15.04.96 DO
DO
SIEMENS AG
FSZ MUENCHEN
MS-Dorn
03.07.95
00320854-020202MD4
backplane - servo Y1002
PCB 745
SIPLACE S-27 HM
Sheet
1-
Component diagram, bottom
ANL A441 TD FSZ E
DO15.04.96
Component diagram, top
Wire infeed
Stat. Modified Date Name
Date
Name
Scale 1:1
X3
4
6
7
8
5
3
2
1
Key
X1 / servo amplifier
X2 / axis card
X3 / motor
Supply voltages
Tachometer -
Tachometer +
Motor +
Motor -
n.u.
Motor +
Motor -
4
1
2
3
X4 Supply voltages
+U
GND
-15V
+15V
Motor
pflichten zu Schadenersatz. Alle Rechte vorbehalten, ins
besondere für den Fall der Patenterteilung oder GM-Eintragung
wertung und Mitteilung ihres Inhalts nicht gestattet, soweit
Weitergabe sowie Vervielfältigung dieser Unterlage,Ver-
nicht ausdrücklich zugestanden. Zuwiderhandlungen ver-
Proprietary date, company confidential. All rights reserved.
Confie a titre de secret d'entreprise. Tous droits reserves.
Confiado como secrete industrial. Nos reservamos todos los derechos.
Comunicado como segredo empresarial. Reservados todos os direitos.
Function status
Product status
Doc. status
02
02

5 - 3
00321469-050101ND4 Component illumination (sh. 1 of 2)
00321469-050101ND4 Component illumination (sh. 2 of 2)
V2
R43
V21
R6
R51
R46
V20
R49
MP3
R55
P2
C12
C8
C4
C5
J6
V22
J1
R1
C11
V1
R22
R58
J5
R4
R23
X1
C7
C6
Maximum component height: ON TOP 10.0 mm, ON BOTTOM 14.0 mm
Remove all pins marked with an x.
SIEMENS
L&A EA
MS-DORN
01.10.01
00321469-050101ND4
Component illumination
Component layout
Sheet
1+
X4
R5
V19
R53
C9
C13
J4
C10
R38
V8
V17V18
V10 V9
R30
R21
R31
R13
R20
R29
R12
R39
MS-5208
R45
R54
R44
V15V16 V13V14 V12
R33
R17
V7 V6
R10
R19
R28
R37
R11
R9
R36
R18
R27
V5 V4 V3
R25
R16
R8
R26
R35
R24
R7
R34
R15
R52
P3
V11
R32
R14
R40
R41
V24
J3
R3
R50
V23
R2
J2
MP1 MP2
R56
R48
MP4 MP5
P1
R47
R42
R57
Stat. Modified Date Name
Date
Name
Check.
Stand.
Solder C14 between pin 1 of X3 and milled conductor
C14
Component illumination, steep
Component camera
Connector
X4
X1
Assembly
pflichten zu Schadenersatz. Alle Rechte vorbehalten, ins
besondere für den Fall der Patenterteilung oder GM-Eintragung
wertung und Mitteilung ihres Inhalts nicht gestattet, soweit
Weitergabe sowie Vervielfältigung dieser Unterlage,Ver-
nicht ausdrücklich zugestanden. Zuwiderhandlungen ver-
Proprietary date, company confidential. All rights reserved.
Confie a titre de secret d'entreprise. Tous droits reserves.
Confiado como secrete industrial. Nos reservamos todos los derechos.
Comunicado como segredo empresarial. Reservados todos os direitos.
pflichten zu Schadenersatz. Alle Rechte vorbehalten, ins
besondere für den Fall der Patenterteilung oder GM-Eintragung
wertung und Mitteilung ihres Inhalts nicht gestattet, soweit
Weitergabe sowie Vervielfältigung dieser Unterlage,Ver-
nicht ausdrücklich zugestanden. Zuwiderhandlungen ver-
Proprietary date, company confidential. All rights reserved.
Confie a titre de secret d'entreprise. Tous droits reserves.
Confiado como secrete industrial. Nos reservamos todos los derechos.
Comunicado como segredo empresarial. Reservados todos os direitos.
SIEMENS
L&A EA
MS-DORN
01.10.01
00321469-050101ND4
Component illumination
Component layout
Sheet
2-
Stat. Modified Date Name
Date
Name
Check.
Stand.
X2
C3
C2
X3
C1
The following labels have to be stuck on!
B: Inspection label
A: Identification label
C1 to C3 have to be glued!
C: ESD label
Assembly
Vision board 00344489
Component illumination, flat, medium
Connector
X3
X2