JUKI_RX-6 - 第320页
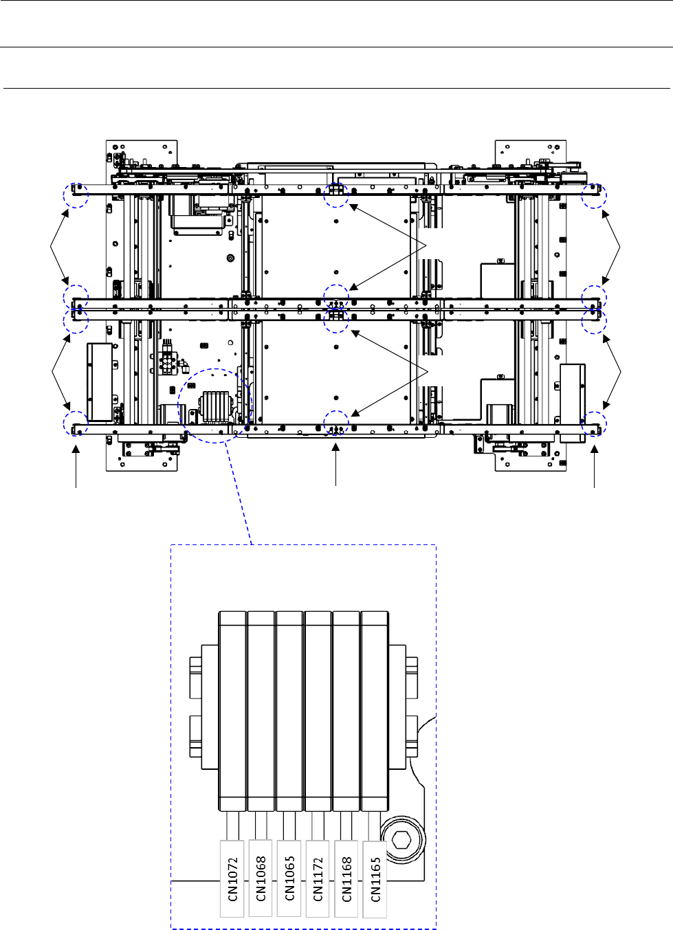
维修调整要领书 17 - 18 17 - 7 光纤传感器的更换 光纤传感器及传 感器放大器的配置如 下图所示。 FL FC FR RL RC RR 前侧通道 后侧 通道 FL RL FR RR FC RC IN/OUT 传感器 IN/OUT 传感器 停止传感器 传感器 放大器配置

维修调整要领书
17-17
气缸(EZ445450001)
夹紧传感器组件(40154792)
※要注意安装朝向
单头活接头
气缸接头
内六角螺栓 M3 L=6
SM6030602TN
夹紧限动器
11.5mm
【以气动抬起的状态】
空隙 0.2mm 以下
夹紧板
保持板

维修调整要领书
17-18
17-7
光纤传感器的更换
光纤传感器及传感器放大器的配置如下图所示。
FL
FC
FR
RL
RC
RR
前侧通道
后侧通道
FL
RL
FR
RR
FC
RC
IN/OUT 传感器
IN/OUT 传感器
停止传感器
传感器放大器配置

维修调整要领书
17-19
17-7-1
传感器放大器的更换
M/C Rev.K 之前 M/C Rev.L 之后的停止感应器(FC/RC)
1) 打开传感器放大器保护罩,扳起光纤插入口附近的手柄,拔出光纤。
2) 将传感器放大器按入光纤插入侧,在按入的状态下抬起光纤插入口一侧并随之卸下放大器。
3) 更换传感器放大器。
4) 请按照【传感器放大器一览表】所示涂抹连接器标记。
5) 安装时请按相反的操作顺序进行。
※ 光纤要插入到传感器放大器的内部。
※ 连接上侧(投光)第 1,3 导轨的 L、第 2,4 导轨的 C,R,连接下侧(受光)第 2,4 导轨的 L、第 1,3
导轨的 C,R。
6) 更换传感器放大器后,请进行【17-7-2 传感器放大器阈值的设定】。
传感器放大器一览表
传感器
货号
连接器标记
FL
40154795
40181870
CN1072 10
11 62 65 68 72 97
FC CN1068 10 11 62 65 68 72 97
FR CN1065 10 11 62 65 68 72 97
RL CN1172 10 11 62 65 68 72 97
RC CN1168 10 11 62 65 68 72 97
RR CN1165 10 11 62 65 68 72 97
拆卸操作【1】
拆卸操作【2】
光纤
锁定状态
解除锁定状态
保护罩
上(投光): 第 1,3 导轨 FL,RL
第 2,4 导轨 FC,RC,FR,RR
下(受光): 第 2,4 导轨 FL,RL
第 1,3 导轨 FC,RC,FR,RR