JUKI_RX-6 - 第339页
维修调整要领书 17 - 37 17 -8- 3 第 3 轨 道 = 第 4 轨道干渉 传 感器 的更换 1) 卸下 安装在 滑动底座侧面的限位 传 感器 托架 R3 -R4 。 2) 卸下限位传感器 进 行更 换。 3) 安装时请按相反 的操作顺序进行。 4) 更换传感器后,请调 整各限位传感器 位置。 ※ 请把限位传感器 与碰块的空隙调整 为 2mm 。 ※ 后侧通道(第 3/ 第 4 轨道)的基板 宽度到 48.5mm 时传感器 …

维修调整要领书
17-36
17-8-2
第 2 轨道=第 3 轨道干渉传感器的更换
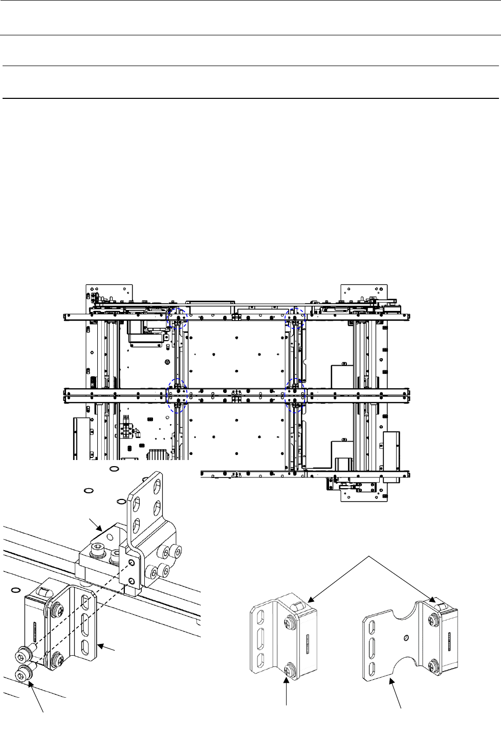
1) 卸下电缆护壳。
2) 卸下安装在滑动底座侧面的限位传感器托架 R2-R3。
3) 卸下限位传感器进行更换。
4) 安装时请按相反的操作顺序进行。
5) 更换传感器后,请调整限位传感器位置。
※ 请把限位传感器与碰块的空隙调整为 2mm。
※ 第 2 轨道与第 3 轨道的各基板滑行面之距离到 44mm 时传感器 ON
使第 2 轨道与第 3 轨道
逐步接近,
距离到 44mm 时 ON
第 3 轨道
第 2 轨道
电缆护壳
第 2 轨道
限位传感器(40154793)
盆头小螺丝 M3X0.5 L=8
SM4030801SC
带垫片内六角螺栓 M4 L=8
SL6040892TN
第 3 轨道
传感器碰块
限位传感器托架 R2-R3

维修调整要领书
17-37
17-8-3
第 3 轨道=第 4 轨道干渉传感器的更换
1) 卸下安装在滑动底座侧面的限位传感器托架 R3-R4。
2) 卸下限位传感器进行更换。
3) 安装时请按相反的操作顺序进行。
4) 更换传感器后,请调整各限位传感器位置。
※ 请把限位传感器与碰块的空隙调整为 2mm。
※ 后侧通道(第 3/第 4 轨道)的基板宽度到 48.5mm 时传感器 ON
使第 3 轨道与第 4 轨道
逐步接近,
距离到 48.5mm 时 ON
第 4 轨道
第 3 轨道
限位传感器托架 R3-R4
限位传感器(40154793)
盆头小螺丝 M3X0.5 L=8
SM4030801SC
带垫片内六角螺栓 M4 L=8
SL6040892TN
传感器碰块
第 4 轨道
第 3 轨道

维修调整要领书
17-38
17-9
支承销检出传感器的更换
17-9-1
支承销检出传感器的更换
1) 卸下支承销传感器托架。(托架有 2 种。)
※ 装有传送限动器的轨道上,带有传感器托架 B。
2) 从传感器托架上卸下支承销检出传感器。
3) 更换支承销检出传感器。
4) 请按照【支承销检出传感器一览表】所示涂抹连接器标记。
5) 安装时请按相反的操作顺序进行。
※ 请注意安装位置和安装方向。
6) 更换后,请进行【17-9-2 支承销检出传感器的设定】。
带垫片内六角螺栓 M3 L=8
SL6030892TN
支承销传感器托架
滑行器构件
支承销检出传感器
40154796・40154797・40154803・40154804
带垫片盆头小螺丝 M3 L=12
SL4031291SC
支承销传感器托架 B