SM411_TechnicalReference(Eng_Ver6) - 第52页
Page SAMSUNG TECHWIN 42 SM411 A ir Ass’y NO. LEVEL P ART NO. P ART NAME Q'TY TYPE Old No. S tock Apply Reference A-1 J90581002A AIR_ASSY J9058100 2A 1 1 J67071009A V ACUUM_GENERA T OR VKMH07A-S448S2-B06 2 2 J671 1 1…

Page
SAMSUNG TECHWIN
41
SM411
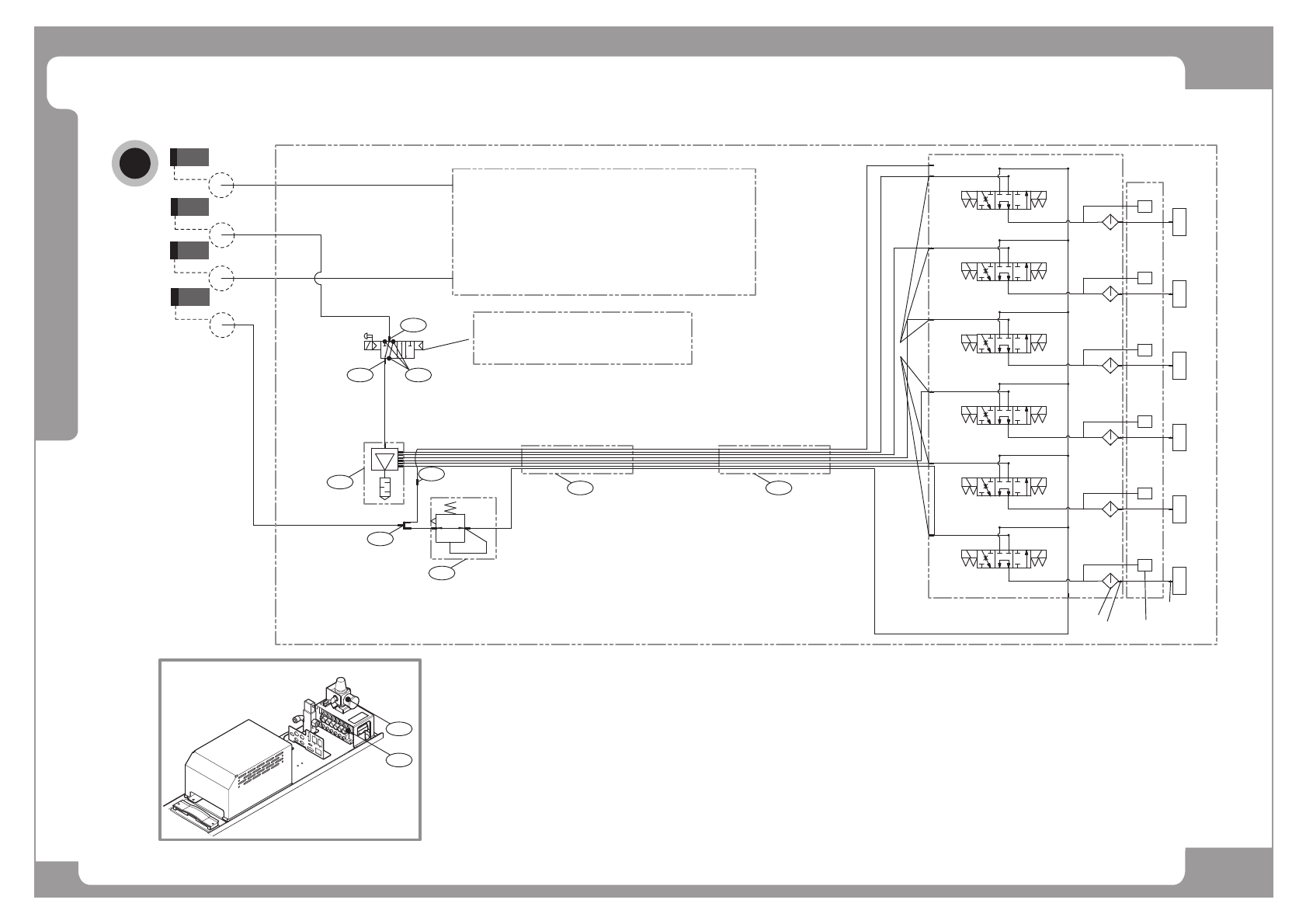
Air Ass’y (5/5)
D
D1
D3
D2
D4
Front Gantry Air Module
HEAD ASSY
U2-4-8*5
J9060412A
HEAD VACUUM
SENSOR SUB B/D
6-J6711180B
RC3-M5M-STN
8
J6702021A
K180-4E1-21-DC24V
U2-4-8*5
1
J90551067A AIR MODULE
6-VA01PEP
34-1U-F
6-BC-03-M5
6-J3204002A
MPX5100AP
6-LF-M5-60-ZK
FSC04-M5C
HEAD1 HEAD2
FSE04-M5C
HEAD5HEAD3 HEAD4 HEAD6
No use
HARNESS ASSY
J9080795A MAIN AIR SOL PWR CABLE ASSY
A2
31
3
A
1
2
A2
31
A2
31
13
A2
A2
31
Rear Gantry Air Module
1
2
3
4
5
6 6
1
7
7
25

Page
SAMSUNG TECHWIN
42
SM411
Air Ass’y
NO. LEVEL PART NO. PART NAME Q'TY TYPE Old No. Stock Apply Reference
A-1 J90581002A AIR_ASSY J90581002A 1
1 J67071009A VACUUM_GENERATOR VKMH07A-S448S2-B06 2
2 J6711140A STRAIGHT FITTING [SS8-1/8] 2
3 J67110157B ELBOW FITTING 2 J6711157A
4 J67110119B UNION Y FITTING 2 J6711119A
5 J6712008A PLUG [PT 1/8] 6
6 J6713048A MULTI TUBE[UML-408 (BL-BK6-BL)] 7
7 J67091007A REGULATOR J67091007A 2
8 J90581001A SM330_MANIFOLD_ASSY J90581001A 1
9 J67111017A DOUBLE_UNIVERSAL_ELBOW_06 KQ2VD06-02S 1
10 J67111018A DOUBLE_UNIVERSAL_ELBOW_08 KQ2VD08-02S 2
11 J1301189 ELBOW FITTING [KQ2L06-02/PL6-02] 2
12 J1301213 PLUG [PT 3/8] 1
13 J6711244A MALE ELBOW[KQ2L12-03] 1
14 J2100009 MANIFOLD [0131-611008] 1
15 J6712013A PLUG[PT 1/4 (SUS)](bio) 1
16 J6711147A STRAIGHT FITTING KQ2H04-M5 1
17 J67090012B REGULATOR 1 J6709012A
18 J32041001A PRESSURE_SENSOR PSA-1(RC1/8) 1 J67101002A
19 J1301187 ELBOW FITTING [KQ2L12/PL12-04] 2 J6711170A
20 J6711028A ELBOW FITTING [KQ2L04-01] 1
21 J67081004B MIST_SEPARATOR_ASSY 1 J67081006A
22 J67111032A MIST_FITTING SQV12-04S 2
23 J67081003A ELEMENT_AIR TAF4000-05-6000 1
24 J67081002A ELEMENT_SEPARATOR PFH4000-0005A-6083 1
25 J6711104A STRAIGHT FITTING[KQ2H04-00/PU4] 2

Page
SAMSUNG TECHWIN
43
SM411
X-Y Frame Ass’y (1/5)
9
9
31
14
17
31
7
10
7
10
7
10
7
10
15
9
6
12
13
40
7
10
42
16
11
8
18
39
38