SM471_TRM(Ver5.9_CS16.18) - 第125页
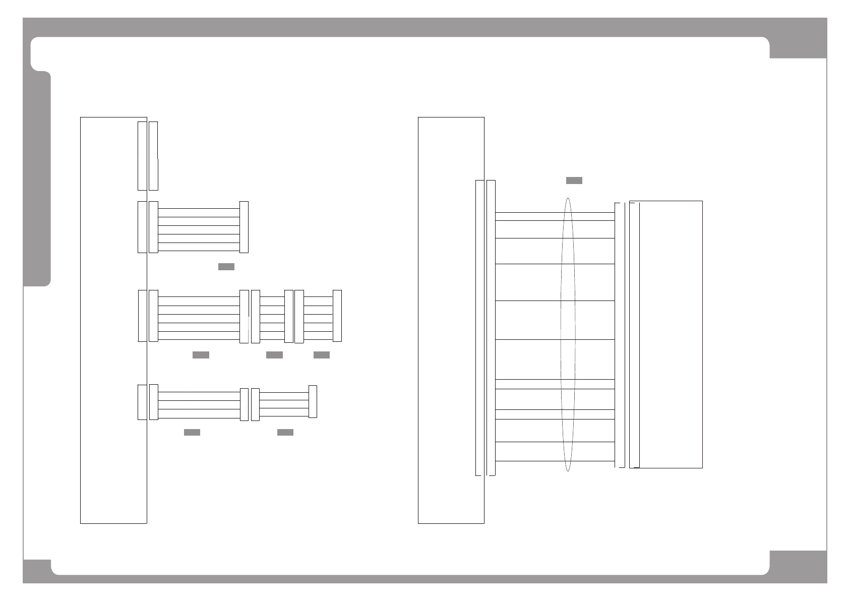
Page HANWHA TECHWIN 121 SM471 Rear Feeder Board Interface NO. PA R T N O . P ART NAME Q'TY Old No. Supply Supp ly L T Reference 1 J9080 0840B FDR INPUT EXT CABLE ASSY SM_FD005 1 SM_FD005 2 AM03-020642A CABLE ASSY -R…

Page
HANWHA TECHWIN
120
SM471
Rear Feeder Board Interface
CN11P
34P
REAR FEEDER I/F
BOARD
REAR FEEDER
INPUT EXT B/D
+24V
GND
GND
+24V
/IO_RESET
+24G
+12G
+12V
CAN_H
CAN_L
CAN_H
CAN_L
/IO_RESET
+24G
+12G
+12V
4
5
6
4
5
6
4P
CN4P
6P
CN3P
4
5
6
4
5
6
11
60
~
60
CN5S
2
2
3
3
CN3S
1
1
6P
CN2P
3
3
CN2S
1
2
1
2
AXIO BOARD #3
CN3
REAR FLAT CABLE
HD-CAN
CN5P
60P
SC-J2R-2
SAFETY CONTROL B/D
CN22
~
4
1
4
1
CN4S
22
33
11
60
60P
~
60
~
CN6P
CN6S
REAR FEEDER BASE
LEFT B/D
REAR FEEDER BASE
RIGHT B/D
FEEDER #1~#29
FEEDER #30~#58
SM_FD004
11
34
~
34
~
CN11S
11
34
~
34
~
CN1PCN11S
34P
60 60
1
60P
~
CN3P
1
~
CN3S
11
60
60P
~
60
~
CN2P
CN2S
FEEDER #30~#58
RIGHT B/D
REAR FEEDER BASE
SM_FD007
FEEDER #1~#29
REAR FEEDER BASE
LEFT B/D
SM_FD006
FEEDER INPUT(#1~#58)
FEEDER INPUT(#59~#116)
~
~
12 12
CN8P
8P
1
CN8S
1
3
4
5
6
2
1
3
2
1
CAN_H
CAN_L
/IO_RESET
+24G
+12G
+12V
4
5
6
SM471_CA201
SM471_CA101-3
3
4
5
6
2
1
A2
B1
A1
A3
B2
B3
A5
B4
A4
A6
B5
B6
A2
B1
A1
A3
B2
B3
SM471_CA105
SM471_CA105-1
SC-J4R-2
SC-J9L-2
SM471_CA202
A5
B4
A4
A6
B5
B6
+24V
GND
GND
3
2
1
4
3
2
1
4
3
2
1
4
SM471_CV101
SM471_SC204
SM_FD005
3
4
5
6
2
1
3
2
1
4
5
6
3
2
1
4
5
6
SM471_CA102-4
REAR FEEDER I/F
BOARD
CN7P
12P
1
CN7S
2
3
4
5
6
7
8
1
2
3
4
5
6
7
8
9
10
11
12
9
10
11
12
1
2
3
4
5
6
7
8
9
10
11
12
1
2
3
4
5
6
7
8
9
10
11
12
SM_FD001
1
2
SM_FD003
NC
^5` ^6`
^4`
^7`
^46`
^8` ^9` ^:`
^;` ^<`
^43`
^44`
^45`

Page
HANWHA TECHWIN
121
SM471
Rear Feeder Board Interface
NO. PART NO. PART NAME Q'TY Old No. Supply Supply LT Reference
1 J90800840B FDR INPUT EXT CABLE ASSY SM_FD005 1 SM_FD005
2 AM03-020642A CABLE ASSY-RFDR-REAR_FLAT_CAN_J4R 1 AM03-005401A SM471_CA105
3 AM03-020680A CABLE ASSY-AXIO_CAN_FDR_UL_J3R_J8L 1 AM03-005400A SM471_CA202
4 AM03-020633A CABLE ASSY-AXIO_BD_3_RFD_CAN_J8L-10L 1 AM03-005402B, AM03-005402C(~#1711)
5 AM03-020642A CABLE ASSY-RFDR-REAR_FLAT_CAN_J4R 1 AM03-005394B SM471_CA101-3
6 AM03-020680A CABLE ASSY-AXIO_CAN_FDR_UL_J3R_J8L 1 AM03-005396A SM471_CA201
7 AM03-020633A CABLE ASSY-AXIO_BD_3_RFD_CAN_J8L-10L 1 AM03-005395B(~#1171)
8 AM03-005432A CABLE ASSY-CONV_I-F_R_FDR_PWR_J2R 1 SM471_CV101
9 AM03-020657A CABLE ASSY-BD_PW_SC_J1R_CONV_SUB_IF-EXT 1 AM03-008726A SM471_SC204
10 AM03-005458B CABLE ASSY-R FDR PWR RELAY CABLE ASSY 2 SM471_FD003
11 EP02-000588A FEEDER CN7 EXT CABLE ASSY 2 SM411N-FD001
12 J90800842C RIGHT FDR SENSOR INPUT CABLE AS 1 SM_FD007
13 J90800839D RIGHT FDR SOL OUTPUT CABLE ASSY 1 SM_FD004

Page
HANWHA TECHWIN
122
SM471
Conveyor Board Interface (1/5)
[1]
[2] [3] [4]
[5] [6]
[7]
1
3
2
1
3
2
I/F BOARD
+24V
GND
GND
+24V
/IO_RESET
+24G
+12G
+12V
CAN_H
CAN_L
CAN_H
CAN_L
/IO_RESET
+24G
+12G
+12V
4
5
6
4
5
6
4P
CN4P
6P
CN3P
4
5
6
4
5
6
11
3
4
2
3
4
2
CN4S
2
2
3
3
CN3S
1
1
6P
CN2P
3
3
CN2S
1
2
1
2
8
7
6
6
8
7
4
5
4
5
4
5
6
3
4
5
6
2
1
F_FEEDER I/F B/D
CN2
3
2
1
FLAT CABLE
CAN
CONVEYOR
8P
CN1P
CN1S
CONVEYOR
I/F BOARD
CN6S
CN6P
24P
READY LP
SM411_CA104
SM471_CA102-4
READY RELAY OUT
22
4
3
5
2
1
22
4
3
5
2
1
START LP
STOP LP
9
9
10
10
21
21
RESET LP
+24V
14
14
16
16
FFD LP
13
13
+24V
RFD LP
15
15
+24V
19
19
17
17
24G
CONV SUB I/F B/D
2
12
3
4
11
7
8
5
6
10
9
1
9
10
6
5
8
7
11
4
3
12
2
1
+24V
CN1S
CN1P
12P
SM33_CV003
for Firmware Downloading
SM471_SC204
CN20
2
4
3
1
SAFETY CONTROL B/D
A2
B1
A1
B2
A6
B5
A5
B6
SC-J1R-1
SM471_CV101
A2
B1
A1
A3
B2
B3
A2
B1
A1
A3
B2
B3
A2
B1
A1
A3
B2
B3
A2
B1
A1
A3
B2
B3
SM471_CA202
SM471_CA102-1
SC-J4R-1
SC-J9L-1