SM471_TRM(Ver5.9_CS16.18) - 第145页
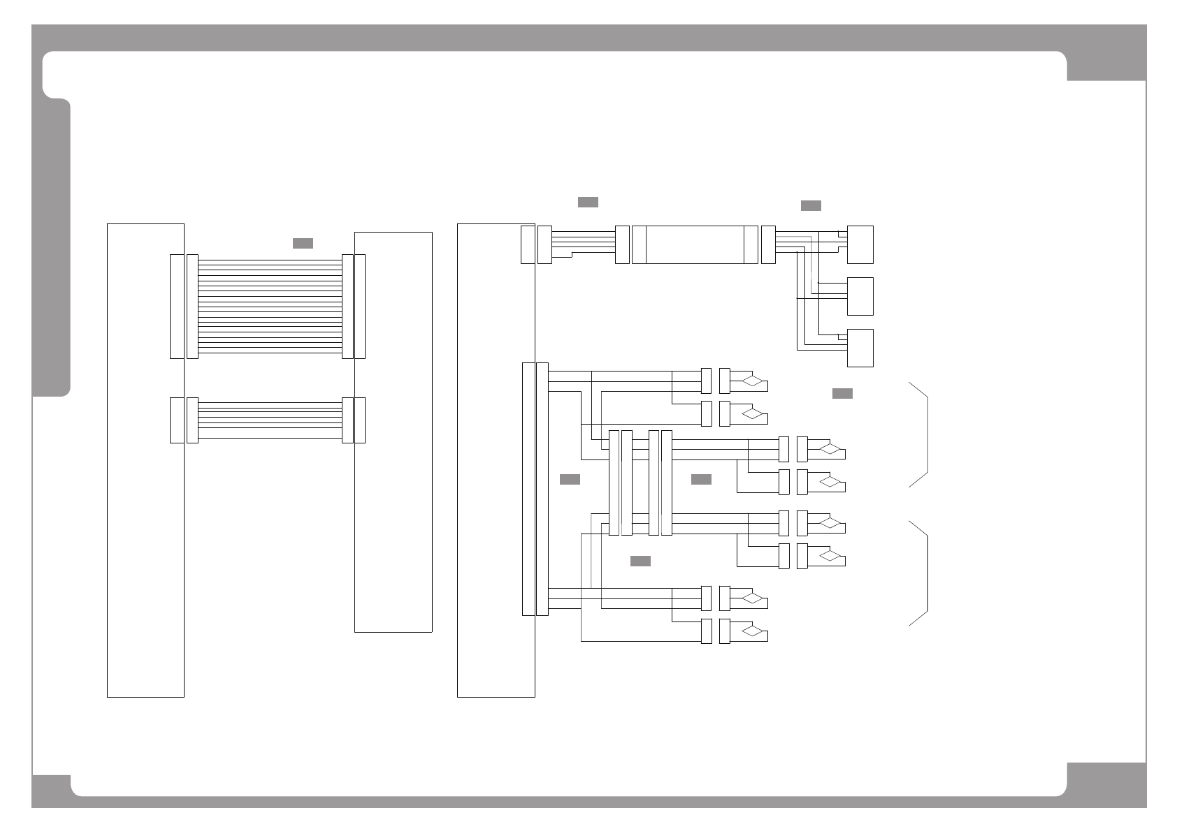
Page HANWHA TECHWIN 141 SM471 Axis Sensor Board Interface (1/3) NO. Lev . P ART NO. P ART NAME Q'T Y Old No. Supply Supply L T Reference 1 AM03-008734A CABLE ASSY -AXIS_SENSOR_BD_ PW 1 SM471_AX 001 2 AM03-004349A CA…

Page
HANWHA TECHWIN
140
SM471
Axis Sensor Board Interface (1/3)
^4`
^9`
^:`
^6`
^7`
^;`
^5`
^8`
CN1
AXIS SENSOR
BOARD
4
2
1
3
10
9
8
7
10
9
8
7
22
6
5
3
4
6
5
3
4
1
CN2
1
4
SM471_AX001
+24V
24G
24G
+24V
2
3
1
2
(SENSOR CONN.)
BLUE
BLACK
BROWN
+24V
OUT
GND
BLUE
BLACK
BROWN
EE-1001
(SENSOR CONN.)
FY1_-LIMIT
L
2
1
3
4
+24V
OUT
GND
+24V
OUT
GND
BLACK
BLUE
BROWN
4
3
FY1_HOME
(SENSOR CONN.)
EE-1001
FY1_+LIMIT
EE-1001
1
3
4
L
1
SM471_AX103-1
L
BLUE
BLACK
BROWN
10 10
BLUE
BLACK
BROWN
99
88
77
66
RY1_-LIMIT
(SENSOR CONN.)
EE-1001
(SENSOR CONN.)
1
3
4
OUT
L
GND
2
+24V
GND
2
55
44
BLUE
BLACK
33
22
CN3
BROWN
11
1
RY1_+LIMIT
RY1_HOME
EE-1001
EE-1001
(SENSOR CONN.)
1
3
4
OUT
+24V
GND
OUT
3
4
+24V
SM411_AX104
FRONT WORK #1 (W1-1)
REAR WORK WIDTH HOME (WW2H)
reserved IN #1
REAR BUT UP (R-BUT)
IN WIDTH HOME (WS1H)
IN SHUTTLE HOME (MS1H)
REAR WORK #1 (W2-1)
CONVEYOR
AXIS SENSOR
BOARD
CN4
PCB IN #2 (S1-2)
BOARD OUT #1 (BO)
PCB IN #1 (S1-1)
CN1
reserved OUT #1
FRONT BUT SOL
FRONT EDGE PUSHER SOL
FRONT WORK STOPPER SOL
FRONT ANC SOL
FRONT STOPPER SOL
A7A7A7A7
REAR WORK STOPPER SOL
REAR EDGE PUSHER SOL
REAR STOPPER SOL
FRONT BUT UP (F-BUT)
FRONT WORK WIDTH HOME (WW1H)
OUT SHUTTLE HOME (MS2H)
OUT WIDTH HOME (WS2H)
REAR WORK #2 (W2-2)
B8B8
B12B12
B15
B13
B14
B15
B14
B13
B10
B11
B9
B10
B11
B9
reserved OUT #2
REAR BUT SOL
REAR ANC SOL
A15A15
B4B4
B6
B7
B5
B6
B7
B5
B2
B3
B1
B2
B3
B1
A11A11
A13
A14
A12
A13
A14
A12
A9
A10
A8
A9
A10
A8
reserved IN #2
B8B8
B12B12
B15 B15
B13
B14 B14
B13
B10B10
B11 B11
B9 B9
A15A15
B4B4
B6B6
B7 B7
B5 B5
B2B2
B3 B3
B1 B1
A11A11
A13A13
A14 A14
A12 A12
A9A9
A10 A10
A8 A8
FRONT WORK #2 (W1-2)
CN5
A3A3
A5
A6
A4
A5
A6
A4
A1
A2
A1
A2
BOARD OUT #2 (BO)
PCB OUT #2 (S2-2)
PCB OUT #1 (S2-1)
A3A3
A5A5
A6 A6
A4 A4
A1A1
A2 A2
CN1
FRONT WORK STOPPER UP (F-STS-UP)
REAR WORK STOPPER UP (R-STS-UP)
REAR WORK STOPPER DN (R-STS-DN)
FRONT WORK STOPPER DN (F-STS-DN)
SM411_CS151-1
LEFT SENSOR BOARD
VCC
VCC
GND
GND
VCC
VCC
GND
GND
VCC
VCC
VCC
VCC
GND
GND
GND
GND
10
9
8
7
6
5
4
3
CN12
2
1
SM411_CS135
CONVEYOR IF BOARD
CN14
9
10
4
7
8
5
6
2
3
1
9
10
4
7
8
5
6
2
3
1
10
9
4
8
7
6
5
2
3
1
FRONT WORK STOPPER UP (F-STS-UP)
FRONT WORK STOPPER DN (F-STS-DN)
FRONT BUT UP (F-BUT)
reserved IN #1
reserved IN #2
REAR WORK STOPPER UP (R-STS-UP)
REAR WORK STOPPER DN (R-STS-DN)
REAR BUT UP (R-BUT)
reserved OUT #2
reserved OUT #1
SACO BOARD CN23
4
2
3
1
10
9
8
7
2
6
5
3
4
1
10
9
8
7
2
6
5
3
4
1
SM471_AX103
SM411_CS136
7
26
28
27
24
25
23
15
19
21
22
20
17
18
16
11
13
14
12
9
10
8
3
5
6
4
1
2
7
26
28
27
24
25
23
15
19
21
22
20
17
18
16
11
13
14
12
9
10
8
3
5
6
4
1
2
SM411_CS151
A7A7
B8B8
B12B12
B15
B13
B14
B15
B14
B13
B10
B11
B9
B10
B11
B9
A15A15
B4B4
B6
B7
B5
B6
B7
B5
B2
B3
B1
B2
B3
B1
A11A11
A13
A14
A12
A13
A14
A12
A9
A10
A8
A9
A10
A8
A3A3
A5
A6
A4
A5
A6
A4
A1
A2
A1
A2
A7A7
B8B8
B12B12
B15
B13
B14
B15
B14
B13
B10
B11
B9
B10
B11
B9
A15A15
B4B4
B6
B7
B5
B6
B7
B5
B2
B3
B1
B2
B3
B1
A11A11
A13
A14
A12
A13
A14
A12
A9
A10
A8
A9
A10
A8
A3A3
A5
A6
A4
A5
A6
A4
A1
A2
A1
A2
AX-CN4-EXT
RIGHT SENSOR BOARD
CONVEYOR
30
29
30
29

Page
HANWHA TECHWIN
141
SM471
Axis Sensor Board Interface (1/3)
NO. Lev. PART NO. PART NAME Q'TY Old No. Supply Supply LT Reference
1 AM03-008734A CABLE ASSY-AXIS_SENSOR_BD_PW 1 SM471_AX001
2 AM03-004349A CABLE ASSY-CONV_RIGHT_IF_BD 1 SM411_CS136
3 AM03-005391A CABLE ASSY-FY_AXIS_SENSOR-EXT 1 SM471_AX103-1
4 AM03-005390A CABLE ASSY-FY_AXIS_SENSOR 1 SM471_AX103
5 AM03-004337B CABLE ASSY-RY_AXIS_SENSOR 1 AM03-004337A SM411_AX104
6 AM03-004348C CABLE ASSY-AXIS_SENSOR_BD_STP-BUT 1 AM03-004348B SM411_CS135
7 AM03-005424A CABLE ASSY-CONV_LEFT_IF_BD_EXT 1 SM411_CS151-1
8 AM03-005422A CABLE ASSY-CONV_LEFT_IF_BD 1 SM471_CS151

Page
HANWHA TECHWIN
142
SM471
Axis Sensor Board Interface (2/3)
CN6
SM471_CS041
CN11
AXIS SENSOR
BOARD
A3
B2
B3
B1
A1
A2
A9
B10
B8
B9
B7
A7
A8
B6
B5
B4
A6
A5
A4
BOARD
B3
B2
B1
A3
CN9
A2
A1
AXIS SENSOR
X1_HOME
Y12_PL
Y11_NL
Y11_PL
Y11_HOME
Y12_HOME
Y12_NL
Y21_NL
Y22_PL
Y22_NL
Y22_HOME
Y21_HOME
Y21_PL
X1_PLUS LIMIT
X1_MINUS LIMIT
X2_MINUS LIMIT
24G
X2_HOME
X2_PLUS LIMIT
+24V
X1-H
X1-P
X1-M
FRONT FEEDER
UNLOCK SENSOR
UNLOCK SENSOR
REARFEEDER
RECEIVER 2
TRANSMITTER 1
TRANSMITTER 2
RECEIVER 1
FFDSEN-T2
FFDSEN-R1
FFDSEN-T1
FFDSEN-R2
3
2
2
1
3
2
1
2
1 1
3
2
1
2
3
1
2
1
3
2
1
2
1
2
3
1
6
5
4
+24V
FFDSEN
FFDSEN
+24V
+24G
+24G
+24V
+24V
+24G
+24V
RFDSEN
+24G
FFDSEN
+24V
TRANSMITTER 1
TRANSMITTER 2
RECEIVER 2
RECEIVER 1
33
+24G
+24V
22
1
RFDSEN-T1
1
+24G
+24V
11
22
RFDSEN-R2
2
2
RFDSEN-T2
11
3
2
3
2
11
RFDSEN-R1
6
4
5
SM471_CS134
SM471_CS134-1
A1
A2
B1
A3
B2
B3
A6
A7
B6
A8
B7
B8
A6
A7
B6
A8
B7
B8
A1
A2
B1
A3
B2
B3
A3
B2
B3
B1
A1
A2
24G
3
5
6
4
1
2
3
5
6
4
1
2
+L/S
GND
+24V
L
EE-1001
+L/S
GND
+24V
L
EE-1001
+L/S
GND
+24V
L
EE-1001
SM471_AX002
X +LIMIT SENSOR
X HOME SENSOR
X -LIMIT SENSOR
SM471_CS134
SM471_CA201
AXIS IO B/D #1
B4
B3
A3
B2
A2
CN10
B1
A1
B4
B3
A3
B2
A2
B1
A1
A9
B10
B8
B9
B7
A7
A8
B6
B5
B4
A6
A5
A4
B3
B2
B1
A3
A2
A1
OUT SHUTTLE HOME
IN SHUTTLE HOME
IN WIDTH HOME
OUT WIDTH HOME
GND
F WORK WIDTH HOME
R WORK WIDTH HOME
30
20
13
19
8
14
7
17
30
16
18
14
13
15
12
10
8
11
9
7
6
4
2
5
3
1
SM471_CS050
3
5
6
4
1
2
3
5
6
4
1
2
#2F-FL-1
FRONT FLAT CABLE #2
30
20
13
19
8
14
7
17
30
16
18
14
13
15
12
10
8
11
9
7
6
4
2
5
3
1
CN7
CN9
SM471_CS050
^4`
^6`
^7`
^9` ^:`
^9`
^5`