PTS-XP243E-08JE - 第165页
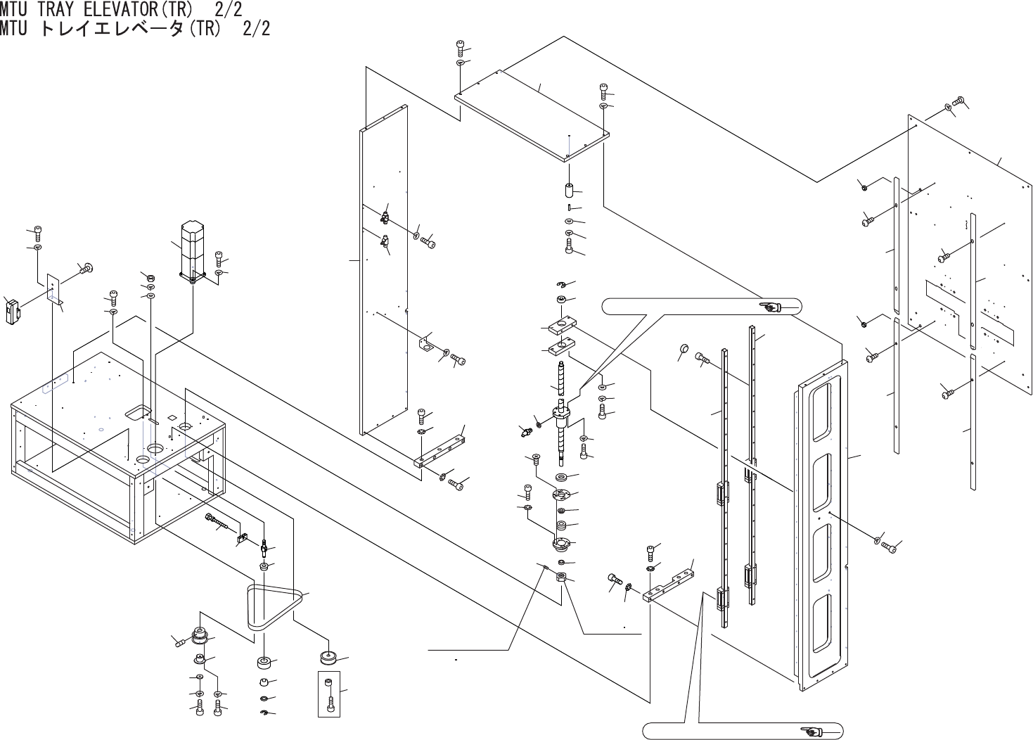
MTU TRAY ELEVATOR(TR) 2/2 MTU トレイエレベータ (TR) 2/2 No. Drg.No. & Code No. QTY Description Rating Materials Remarks 番号 図番 & コード番号 個 数 品名 規格 材質 備考 1 DNTR3612 1 PLATE, UPPER プレート 上 FE 1.1 H5326A 6 BOLT, HEX SOCKET ボルト…

A
Ref.MTU MAGAZINE RACK
Ref.MTU MAGAZINE RACK
50
51
52
85
97
98
95
96
18
19
20
66
67
68
55
59
84
89
53
69
90
57
58
54
56
21
91
17
89
88
34
33
32
28
28
73
29
6
7
5
7
6
47
82
48
81
42
83
43
44
11
45
3
4
39
40
41
46
79
2
80
38
77
78
37
62
61
9
10
8
10
9
60
12
16
13
14
15
1
49
74
76
75
74
93
1.1
93.1
100
101
101
102
103
104
105
100
25
27
26
99
99
1.2
1.1
1.2
1.9N m
LOCTITE242
13.7N m
164
PTS-XP243E-08JE

MTU TRAY ELEVATOR(TR) 2/2
MTU トレイエレベータ(TR) 2/2
No. Drg.No. & Code No. QTY Description Rating Materials Remarks
番号 図番 & コード番号 個数 品名 規格 材質 備考
1 DNTR3612 1 PLATE, UPPER プレート 上 FE
1.1 H5326A 6 BOLT, HEX SOCKET ボルト 六角穴 M06X025 ゼンネジ FE
1.2 W1024A 6 WASHER, LOCK ワッシャ スプリング 6M/M FE
2 DNTR6140 1 BALL SCREW ボールネジ OT
3 H5302A 3 BOLT, HEX SOCKET ボルト 六角穴 M05X020 FE
4 W1023A 3 WASHER, LOCK ワッシャ スプリング 5M/M FE
5 DNTR3531 1 BLOCK ブロック FE
6 H5324A 8 BOLT, HEX SOCKET ボルト 六角穴 M06X020 FE
7 W1013A 8 WASHER, CONICAL ワッシャ 皿 M- 6-H FE
8 DNTR3540 1 BLOCK ブロック FE
9 H5324A 7 BOLT, HEX SOCKET ボルト 六角穴 M06X020 FE
10 W1013A 7 WASHER, CONICAL ワッシャ 皿 M- 6-H FE
11 DETR3320 1 STOPPER ストッパ PL
12 DETR3330 1 STOPPER ストッパ PL
13 H5294A 1 BOLT, HEX SOCKET ボルト 六角穴 M04X030 FE
14 W1022A 1 WASHER, LOCK ワッシャ スプリング 4M/M FE
15 W1041A 1 WASHER, FLAT ワッシャ 平 4M/MX0.8X9(1W-4) FE
16 DETR3340 1 COLLAR カラー FE
17 DETR3360 1 SHAFT シャフト FE
18 N1089A 1 NUT, HEX ナット 六角 M 8 P=1.25 FE
19 W1025A 1 WASHER, LOCK ワッシャ スプリング 8M/M FE
20 W1046A 1 WASHER, FLAT ワッシャ 平 4W- 8 FE
21 DETR3370 1 BLOCK ブロック FE
25 DNTR6083 1 COVER カバー FE
26 K5261H 6 SCREW, HEX SOCKET BUTTON 小ネジ 六角穴ボタン M05X012 FE
27 W1023A 6 WASHER, LOCK ワッシャ スプリング 5M/M FE
28 DETR6062 2 GUIDE, RAIL ガイド レール OT
29 H5289A 36 BOLT, HEX SOCKET ボルト 六角穴 M04X012 FE
32 DNTR3312 1 PLATE, SIDE プレート サイド FE
33 H5327A 2 BOLT, HEX SOCKET ボルト 六角穴 M06X030 FE
34 W1024A 2 WASHER, LOCK ワッシャ スプリング 6M/M FE
37 DNTR3571 1 BLOCK ブロック FE
38 DNTR3580 1 HOLDER, BEARING ホルダ ベアリング FE
39 H5326A 2 BOLT, HEX SOCKET ボルト 六角穴 M06X025 ゼンネジ FE
40 W1024A 2 WASHER, LOCK ワッシャ スプリング 6M/M FE
41 W1045A 2 WASHER, FLAT ワッシャ 平 4W- 6 FE
42 DNTR3551 1 HOLDER, BEARING ホルダ ベアリング FE
43 H5288A 4 BOLT, HEX SOCKET ボルト 六角穴 M04X010 FE
165
PTS-XP243E-08JE

MTU TRAY ELEVATOR(TR) 2/2
MTU トレイエレベータ(TR) 2/2
No. Drg.No. & Code No. QTY Description Rating Materials Remarks
番号 図番 & コード番号 個数 品名 規格 材質 備考
44 W1011A 4 WASHER, CONICAL ワッシャ 皿 M- 4-L FE
45 DNTR3560 1 RETAINER, BEARING 押え ベアリング FE
46 K5359E 4 SCREW, HEX SOCKET COUNTERSUNK 小ネジ 六角穴皿 M04X008 FE
47 DETR6230 1 COLLAR カラー FE
48 DETR6240 1 COLLAR カラー FE
49 DNTR3602 1 PLATE, SIDE プレート サイド FE
50 GFTR3020 1 PANEL, CONNECTOR パネル コネクタ FE
51 H5287A 2 BOLT, HEX SOCKET ボルト 六角穴 M04X008 FE
52 W1022A 2 WASHER, LOCK ワッシャ スプリング 4M/M FE
53 DETR6520 1 PULLEY プーリ OT
54 DETR6540 1 PULLEY, MOTOR プーリ モータ OT
55 N4028A 1 SCREW, HEX SOCKET SET ネジ 六角穴止め M04X006 クボミサキ FE
56 DETR6550 1 CAP キャップ AL
57 H5275A 4 BOLT, HEX SOCKET ボルト 六角穴 M03X008 FE
58 W1021A 4 WASHER, LOCK ワッシャ スプリング 3M/M FE
59 DETR6560 1 PULLEY プーリ FE
60 DETR6580 1 BKT, WIRING BKT 配線 FE
61 H5288A 2 BOLT, HEX SOCKET ボルト 六角穴 M04X010 FE
62 W1022A 2 WASHER, LOCK ワッシャ スプリング 4M/M FE
66 IGK1040 1 COLLAR, SPACER カラー スペーサ FE
67 H5305A 1 BOLT, HEX SOCKET ボルト 六角穴 M05X030 FE
68 W1023A 1 WASHER, LOCK ワッシャ スプリング 5M/M FE
69 IPB0420 1 COLLAR カラー FE
73 K20089 36 CAP キャップ C04 OT
74 K5335A 2 CONTROLLER, SPEED コントローラ スピード JSU4 OT
75 H5280A 4 BOLT, HEX SOCKET ボルト 六角穴 M03X020 FE
76 W1021A 4 WASHER, LOCK ワッシャ スプリング 3M/M FE
77 S1031A 1 CIR-CLIP サークリップ STW 10 OT
78 H4175A 1 BEARING ベアリング 6000ZZ OT
79 N2034E 1 NIPPLE, GREASE ニップル グリス GP-BM-6(P=1.0) OT
80 S30600 1 SPACER スペーサ M-6G OT
81 H4209W 1 BEARING ベアリング 7001ATYNDBMP5 OT
82 N1039A 1 NUT, LOCK ナット ロック WBK12L-01 OT
83 N4027A 1 SCREW, HEX SOCKET SET ネジ 六角穴止め M04X005 クボミサキ FE
84 H3326C 1 BUSHING ブシュ PSL-D-10 OT
85 SAM6850 1 MOTOR, AC SERVO モータ ACサーボ OT
88 H4568K 1 BELT ベルト 537-3GT-15 OT
89 H4116D 2 BEARING ベアリング RF-2280HH OT
166
PTS-XP243E-08JE