NPM-D3 20151225 - 第28页
1-D 本体部:NPM-D3 Main Body :NPM-D 3 パーツレイアウト Kit No. キット 品番 Kit Name キット名称 N610160755AA セクションNo. PARTS LAYOUT Section No. - - S7 ( KN610160755AA-14-4 )

Ref
No.
Remarks R
1
Q'ty
1-C
本体部:NPM-D3
Main Body:NPM-D3
イラスト
No.
Part No.
品 名品 番 数量
R
2
パーツリスト
Kit No.
キット品番
Kit Name
キット名称
N610160755AA
Part Name
備 考
セクションNo.
PARTS LIST
Section No.
R
3
WASHER
8
1 N210188340AA
BRACKET
1
2 N210190220AC
COVER
1
3 N210190548AA
BRACKET
1
4 N210190432AB
COVER
1
5 N210190433AB
BRACKET
1
6 N210190822AA
COVER
1
7 N210188328AB
BRACKET
1
8 N210188781AB
BRACKET
2
9 KXFB02RRA00
BRACKET
1
10 N210191489AA
BRACKET
2
11 N210191490AB
BRACKET
1
12 N210190226AB
BRACKET
1
14 N210116497AB
COVER
1
15 N210192870AA
BRACKET
1
16 N210187181AA
SCREW
5
17 N510018277AA
Cross recessed Truss head machine screw M4X5-4.8 A2J (Trivalent)
COVER
2
18 N238109139E 109-139E
JOINT
1
19 KXF0DUBAA00 KK3S-08E
BOLT
71
20 N510017528AA
SSS 003 Hexagon socket button head screw M4X4-10.9 A2J (Trivalent)
BOLT
11
21 N510017534AA
SSS 003 Hexagon socket button head screw M4X6-10.9 A2J (Trivalent)
FAN
1
22 N510041110AA 109L0624H4J03
FAN
1
23 N510041111AA 109L0624H4J04
SPACER
2
24 N510020115AA ASF-490E
CABLE-SUPPORT
4
25 KXFP6J9XA00 KR7G5
BOLT
2
26 N510017536AA
SSS 003 Hexagon socket button head screw M4X8-10.9 A2J (Trivalent)
DRAIN
1
27 N510049783AA 9021
SCREW
2
28 N510018251AA
Cross recessed Truss head machine screw M3X5-4.8 A2J (Trivalent)
GROMMET
1
29 N510056669AA C-30-SG-46A-EP-UL
S6
--
( KN610160755AA-14-3 )

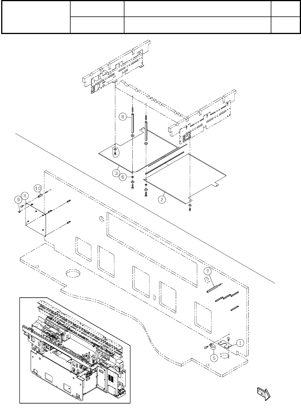
1-D
本体部:NPM-D3
Main Body:NPM-D3
パーツレイアウト
Kit No.
キット品番
Kit Name
キット名称
N610160755AA
セクションNo.
PARTS LAYOUT
Section No.
--
S7
( KN610160755AA-14-4 )

Ref
No.
Remarks R
1
Q'ty
1-D
本体部:NPM-D3
Main Body:NPM-D3
イラスト
No.
Part No.
品 名品 番 数量
R
2
パーツリスト
Kit No.
キット品番
Kit Name
キット名称
N610160755AA
Part Name
備 考
セクションNo.
PARTS LIST
Section No.
R
3
PLATE
1
1 N210091217AA
COVER
1
2 N210133594AB
COVER
1
3 N210195320AA
PLATE
1
4 N210188349AB
CLIP
1
5 KXF0E0V6A00 NK-12N
SPACER
2
6 N510031811AA CB-502E
SPACER
5
7 N510017067AA ASF-460E
SPACER
2
8 N510037917AA ASF-595E
SPACER
5
9 N510028373AA ASF-307E
SPACER
4
10 N510017063AA ASF-420E
S8
--
( KN610160755AA-14-4 )