QP-242E-11 - 第199页
QP-242E P ARTS LIST ver1 1 5 3 . モジュールコンベア( B * - 8 * * - R →L ) ( B H P P ) 5 3 . M o d u l e c o n v e y o r ( B * - 8 * * - R →L ) ( B H P P ) 5 3 - 1 5 3 . モジュールコンベア( B * - 8 * * - R →L ) ( B H P P ) 5 3 . M o d u l …

52.モジュールコンベア(B*-8**-L→R)(BHPP)
52.Module conveyor(B*-8**-L→R)(BHPP)
番号 図番 & コード番号 個数 品名 規格 備考
No. Drg.No. & Code No. QTY Description Rating Remarks
160 K5169W
SCREW, C/R COUNTERSUNK
小ネジ 十穴皿
M2X6L(クロ)
161 .
BOLT, HEX SOCKET
ボルト 六角穴
M4X25L
162 A1042Z 2 AMPLIFIER アンプ HPX-H1-019
163 BHPP6162 1 RETAINER, RAIL 押え レール
164 BHPP6172 1 RETAINER, RAIL 押え レール
165 BHPP6180 1 RETAINER, RAIL 押え レール
166 BHPP6190 1 RETAINER, RAIL 押え レール
167 BHPP6150 1 PLATE プレート
168 BHPP6140 1 PLATE プレート ・
QP-242E PARTS LIST ver11
52 - 5
52.モジュールコンベア(B*-8**-L→R)(BHPP)
52.Module conveyor(B*-8**-L→R)(BHPP)

QP-242E PARTS LIST ver11
53.モジュールコンベア(B*-8**-R→L)(BHPP)
53.Module conveyor(B*-8**-R→L)(BHPP)
53 - 1
53.モジュールコンベア(B*-8**-R→L)(BHPP)
53.Module conveyor(B*-8**-R→L)(BHPP)
Ref.33-7
タテx173.205
Ref.31-1
Ref.31-1
Ref.31-1
Ref.33-7
3
1
16
72
18
23
72
105
98
94
113
2
4
5
22
89
15
75
64
73
65
73
8
63
113
95
118
55
14
17
89
113
94
23
128
62
21
77
78
105
100
20
85
116
105
72
68
113
96
97
104
27
134
113
94
26
56
101
106
111
117
117
72
66
72
28
39
104
95
39
104
95
39
104
95
95
104
39
95
104
39
95
104
39
113
95
95
113
28
82
71
24
25
71
82
71
71
67
74
67
74
126
130
K
99
114
99
114
D
114
99
J
114
99
72
68
113
96
97
104
27
127
113
94
26
56
101
106
111
117
117
72
66
72
A
F
B
114
130
99
114
C
A
B
D
C
J
K
90
53
54
95
113
165
59
167
94
38
163
91
112
13
113
95
94
91
112
13
60
58
53
54
90
6
30
119
124
57
76
76
31
119
124
57
9
10
12
121
12
10
38
54
53
124
57
119
31
60
91
112
13
90
59
76
7
13
112
91
95
113
94
164
76
124
57
119
30
9
94
113
95
90
58
166
168
53
54
121
163
54
54
54
54
RUBBER BELT
BHPP6060
29
124
57
104
95
29
124
57
57
124
104
95
29
29
57
104
95
124
86
114
99
32
79
109
161
33
80
81
112
131
104
95
135
103
129
109
104
94
109
104
94
114
99
E
E
136
137
138
139
104
94
109
104
94
109
104
94
HELPS Option
35
34
H
152
153
154
155
156
157
158
103
108
160
159
109
104
94
156
160
G
G
H
50
120
87
162
162
F
G
G
61
61
61
61
x8
208
176
165
175
161
175
161
175
161
183
162
176
167
175
161
13
13
B
A
139
26

53.モジュールコンベア(B*-8**-R→L)(BHPP)
53.Module conveyor(B*-8**-R→L)(BHPP)
番号 図番 & コード番号 個数 品名 規格 備考
No. Drg.No. & Code No. QTY Description Rating Remarks
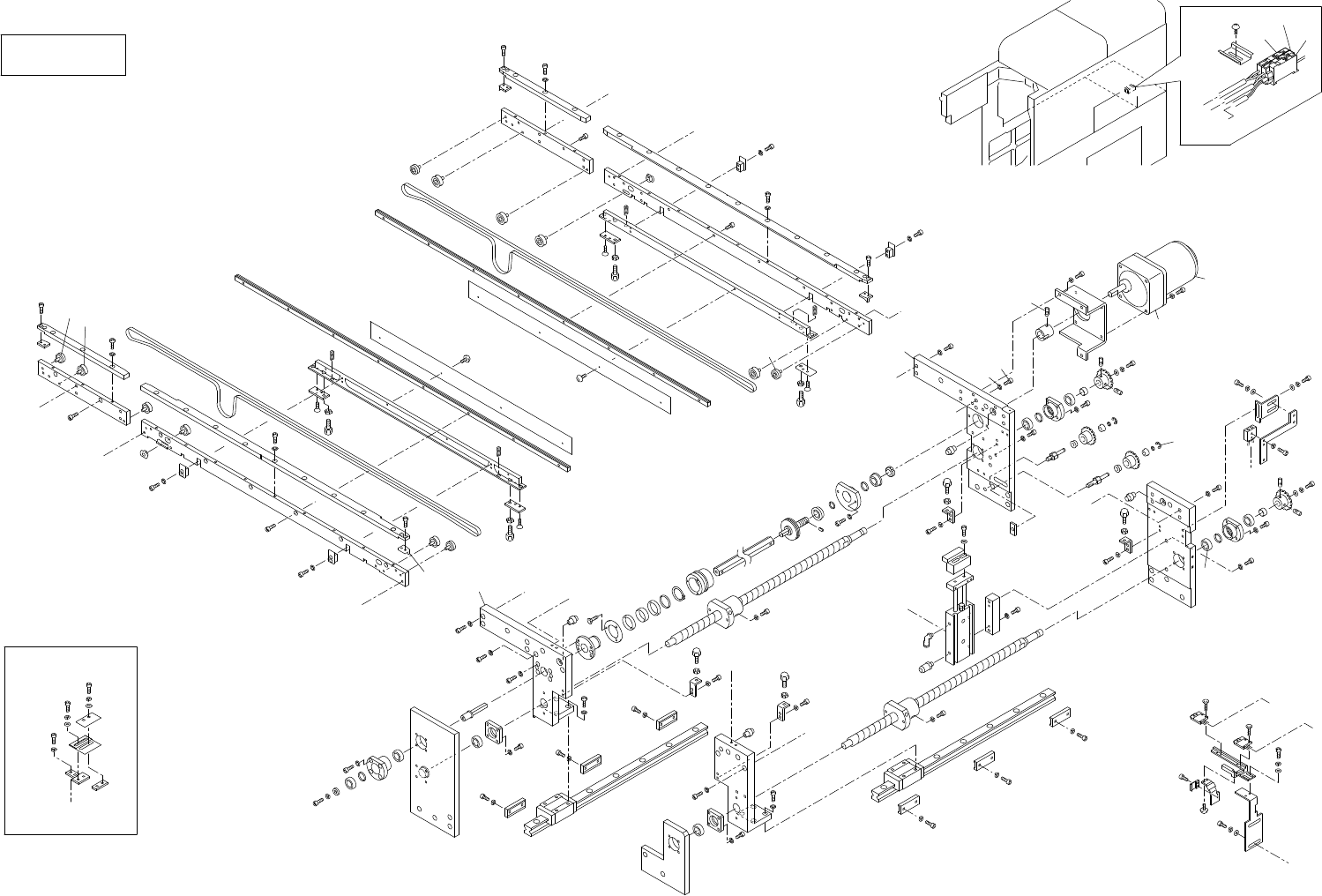
1 BHPP6202 1 BKT BKT
2 BHPP1023 1 BKT BKT
3 BHPP4031 1 PLATE プレート
4 BHPP6232 1 BKT BKT
5 BHPP4362 1 BKT BKT
6 BHPP1071 1 PLATE プレート
7 BHPP1061 1 PLATE プレート
8 BHPP1080 1 HOLDER ホルダ
9 BHPP1091 2 PLATE プレート
10 BHPP6052 2 GUIDE, BELT ガイド ベルト
12 BHPP1120 2 PLATE プレート
13 BHPP1131 4 GUIDE ガイド
14 BHPP1140 1 SHAFT シャフト
15 BHPP4050 1 PULLEY プーリ
16 BHPP4070 1 SHAFT シャフト
17 BHPP4090 1 HOLDER, BEARING ホルダ ベアリング
18 BHPP4191 1 HOLDER ホルダ
20 BHPP1210 1 COUPLING カップリング
21 BHPP4102 1 BKT BKT
22 K11384 1 COLLAR カラー SWR8
23 BHPP1260 2 COLLAR カラー
24 BHPP4220 1 SHAFT シャフト
25 BHPP1280 1 SHAFT シャフト
26 BHPP1290 2 COLLAR カラー
27 BHPP4111 2 BALL SCREW ボールネジ
28 BHPP1310 2 GUIDE ガイド
29 BHPP1320 4 BKT BKT
30 BHPP1331 2 PLATE プレート
31 BHPP1341 2 PLATE プレート
32 BHPP1371 1 BLOCK ブロック
33 BHPP4421 1 STOPPER ストッパ
34 BHPP1770 1 BKT BKT
35 BHPP1780 1 BKT BKT
38 BHPP6060 2 CONVEYOR, BELT コンベア ベルト
39 BHPP1450 6 PLATE プレート
50 BHPP1880 1 RAIL レール
53 BHPP1790 4 PULLEY プーリ
QP-242E PARTS LIST ver11
53 - 2
53.モジュールコンベア(B*-8**-R→L)
53.Module conveyor(B*-8**-R→L)(BHPP)