QP-242E-11 - 第205页
54.基板リフタ(F*-***)(BHPP) 54.Board lifter(F*-***)(BHPP) 番号 図番 & コード番号 個数 品名 規格 備考 No. Drg.No.& Code No. QTY Description Rating Remarks 1 BHPP0026 1 PLATE プレート 2 BHPP0032 1 PLATE プレート 4 BHPP1941 2 PLATE プレート 5 BH…

QP-242E PARTS LIST ver11
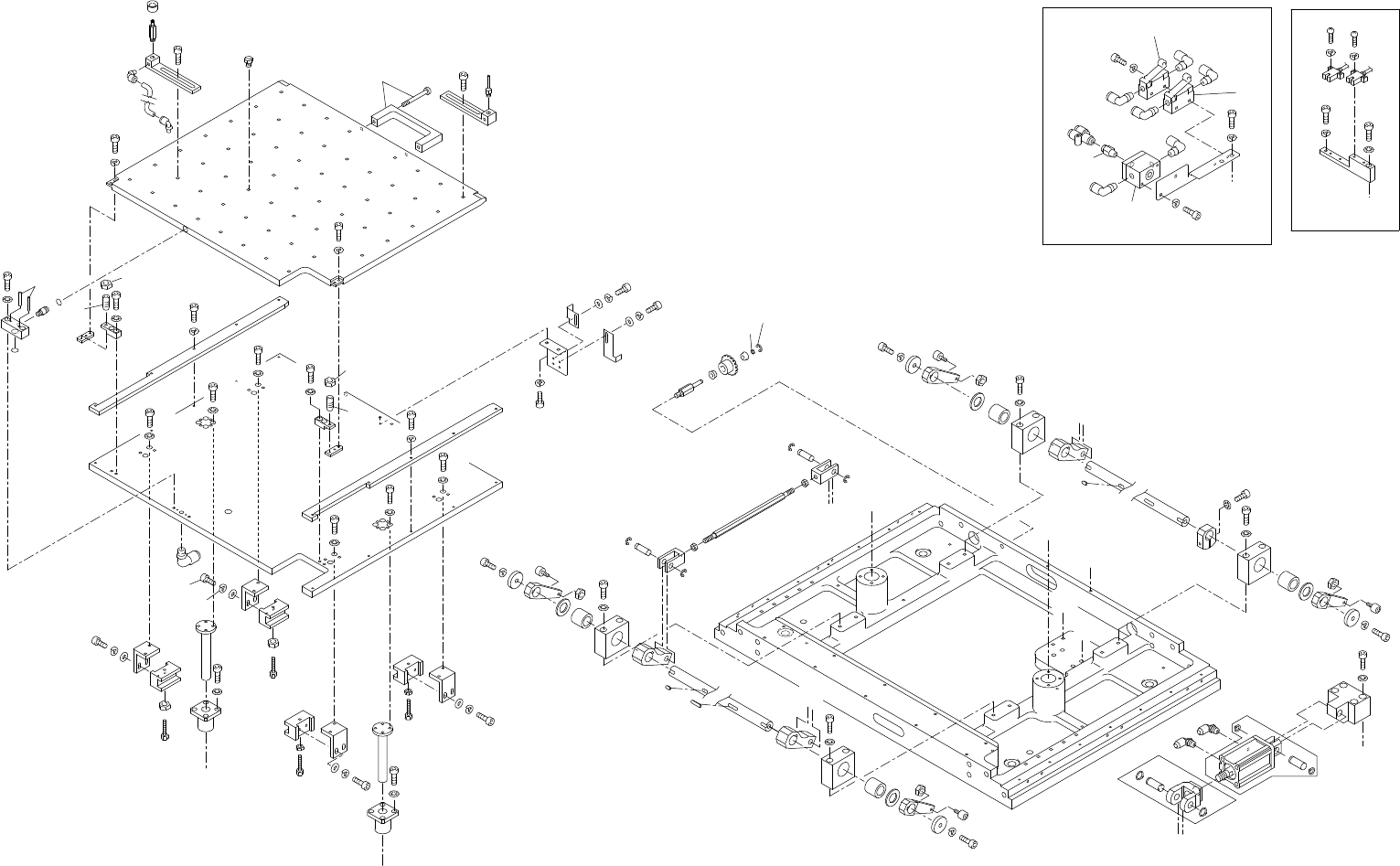
54.基板リフタ(F*-***)(BHPP)
54.Board lifter(F*-***)(BHPP)
54 - 1
54.基板リフタ(F*-***)(BHPP)
54.Board lifter(F*-***)(BHPP)
Ref.33-7
タテx173.205
Ref.31-1
Ref.31-1
Ref.31-1
Ref.33-7
1
2
6
5
5
6
4
4
15
18
18
7
7
7
7
8
8
8
8
52
52
19
44
20
43
45
45
42
67
54
78
59
75
75
59
67
56
75
58
75
57
75
58
75
59
67
54
78
67
56
58
75
57
75
58
75
71
67
53
78
72
68
59
78
72
68
59
78
52
72
68
59
52
78
68
59
72
21
23
17
71
67
53
16
58
68
G
F
63
21
22
47
63
92
14
41
41
A
80
80
67
67
62
75
59
68
35
46
75
57
57
75
35
48
48
90
91
33
34
34
13
B
68
61
69
63
34
34
33
34
88
87
89
57
68
34
49
9
9
10
11
52
25
25
24
9
9
10
50
25
25
24
26
27
29
40
40
28
29
40
40
A
36
36
36
36
51
B
C
E
E
D
76
64
76
64
75
61
76
64
76
64
79
F
G
86
30
31
32
32
37
37
37
37
38
38
38
38
39
39
39
39
12
C
D
70
65
78
70
65
66
77
70
65
78
78
70
65
81
82
83
82
84
85
93
86
x7.5
208
176
165
175
161
175
161
175
161
183
162
176
167
175
161
13
13
B
A
139
26

54.基板リフタ(F*-***)(BHPP)
54.Board lifter(F*-***)(BHPP)
番号 図番 & コード番号 個数 品名 規格 備考
No. Drg.No.& Code No. QTY Description Rating Remarks
1 BHPP0026 1 PLATE プレート
2 BHPP0032 1 PLATE プレート
4 BHPP1941 2 PLATE プレート
5 BHPP0060 2 BKT BKT
6 BHPP0070 2 PLATE プレート
7 BHPP0090 4 BKT BKT
8 BHPP0100 4 GUIDE ガイド
9 BHPP0110 4 ARM アーム
10 BHPP0120 2 ARM アーム
11 BHPP0140 1 JOINT ジョイント
12 BHPP0370 1 BKT BKT
13 BHPP0161 1 BKT BKT
14 BHPP0170 1 BLOCK ブロック
15 BHPP0180 1 BKT BKT
16 BHPP0190 1 DOG ドッグ
17 BHPP0200 1 DOG ドッグ
18 BHPP0290 2 GUIDE ガイド
19 BHPP0220 1 PIN ピン
20 BHPP0230 1 BLOCK ブロック
21 BHPP0240 6 BKT BKT
22 BHPP0250 2 PIN, BACKUP ピン バックアップ
23 BHPP0260 4 PIN, BACKUP ピン バックアップ
24 BHPP0340 2 SHAFT シャフト
25 BHPP0330 4 HOUSING ハウジング
26 PPT0580 1 DOG ドッグ
27 NPT0700 1 KNUCKLE ナックル
28 NPT0710 1 KNUCKLE ナックル
29 NPT0770 2 PIN ピン
30 S2125T 1 CYLINDER, AIR シリンダ エアー CQ2D32-40DCM
31 N1001X 1
KNUCKLE
ナックル Y-G04
32 Y3049W 2
UNION, ELBOW
ユニオン エルボ KJL06-01S:白
33 H1063G 2
VALVE, MECHANICAL
バルブ メカニカル VM121-01-01
34 Y3078A 6
UNION, ELBOW
ユニオン エルボ KQ2L06-01S
35 H4422Z 2
BEARING, BALL
ベアリング ボール SMK12GUU
36 H4391A 4
BEARING, NEEDLE
ベアリング ニードル TA1520Z
37 K1108A 4
CAM FOLLOWER
カムフォロア CF04
38 W1061Z 4 WASHER, FLAT ワッシャ 平 SSWA26-2.0
QP-242E PARTS LIST ver11
54 - 2
54.基板リフタ(F*-***)(BHPP)
54.Board lifter(F*-***)(BHPP)

54.基板リフタ(F*-***)(BHPP)
54.Board lifter(F*-***)(BHPP)
番号 図番 & コード番号 個数 品名 規格 備考
No. Drg.No.& Code No. QTY Description Rating Remarks
39 K1138Z 4 COLLAR カラー R10
40 S1024A 4
CIR-CLIP
サークリップ ST-EW-6
41 S4040X 2
SENSOR, PHOTO
センサ フォト EE-SPX306-W2A
42 A5090A 1
O RING
Oリング P6
43 A5091A 1
O RING
Oリング P7
44 S2170F 1 JOINT, ONE-TOUCH ジョイント ワンタッチ TL6-M6
45 H3165A 2
PLUNGER, BALL
プランジャ ボール BST-4
46 H2044A 2
PIN, SPRING
ピン スプリング 2゚X15
47 H1189A 2
PAD
パット VP-15RS
48 A4042A 4
ELBOW
エルボ PL6-M5M
49 BHPP0275 1 BASE ベース
50 BHPP0360 1 ARM アーム
51 N1088A 1
NUT, HEX
ナット 六角
M6-L
52 H5174A
BOLT, HEX
ボルト 六角
M4X40
53 H5273A
BOLT, HEX SOCKET
ボルト 六角穴
M3X5L
54 H5275A
BOLT, HEX SOCKET
ボルト 六角穴
M3X8L
56 H5278A
BOLT, HEX SOCKET
ボルト 六角穴
M3X15L
57 H5287A
BOLT, HEX SOCKET
ボルト 六角穴
M4X8L
58 H5288A
BOLT, HEX SOCKET
ボルト 六角穴
M4X10L
59 H5289A
BOLT, HEX SOCKET
ボルト 六角穴
M4X12L
61 H5292A
BOLT, HEX SOCKET
ボルト 六角穴
M4X20L
62 H5293A
BOLT, HEX SOCKET
ボルト 六角穴
M4X25L
63 H5299A
BOLT, HEX SOCKET
ボルト 六角穴
M5X12L
64 H5307A
BOLT, HEX SOCKET
ボルト 六角穴
M5X40L
65 H5322A
BOLT, HEX SOCKET
ボルト 六角穴
M6X15L
66 H5329A
BOLT, HEX SOCKET
ボルト 六角穴
M6X35
67 W1021A
WASHER, LOCK
ワッシャ スプリング 3M/M
68 W1022A
WASHER, LOCK
ワッシャ スプリング 4M/M
69 W1023A
WASHER, LOCK
ワッシャ スプリング 5M/M
70 W1024A
WASHER, LOCK
ワッシャ スプリング 6M/M
71 W1042A
WASHER, FLAT
ワッシャ 平
4W-3
72 W1043A
WASHER, FLAT
ワッシャ 平
4W-4
75 W1011A
WASHER, CONICAL
ワッシャ 皿
M-4-L
76 W1012A
WASHER, CONICAL
ワッシャ 皿
M-5-L
77 W1013A
WASHER, CONICAL
ワッシャ 皿
M-6-H
78 N1080A
NUT, HEX
ナット 六角
M4 P=0.7
79 N1085A
NUT, HEX
ナット 六角
M6 P=1.0
QP-242E PARTS LIST ver11
54 - 3
54.基板リフタ(F*-***)(BHPP)
54.Board lifter(F*-***)(BHPP)