QP-242E-11 - 第233页
63.1.本体(BHAB) 63.1.Body(BHAB) 番号 図番 & コード番号 個数 品名 規格 備考 No. Drg. No. & Code No. QTY Description Rating Remarks 74 H5361A BOLT, HEX SOCKET ボルト 六角穴 M10X30L 75 W1026A WASHER, LOCK ワッシャ スプリング 10M/M 76 BHAB0492 1 …

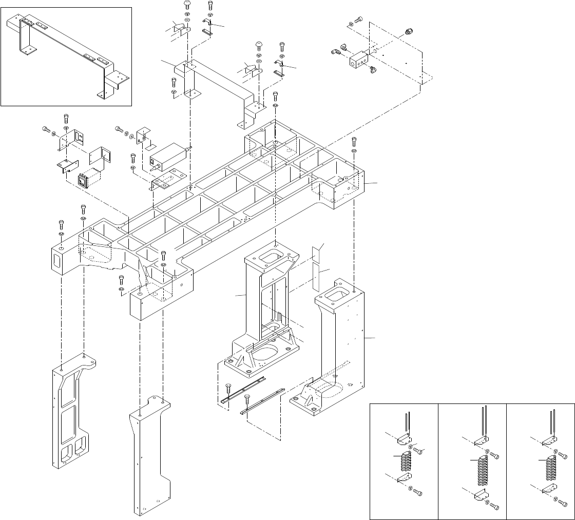
63.1.本体(BHAB)
63.1.Body(BHAB)
番号 図番 & コード番号 個数 品名 規格 備考
No.
Drg. No. & Code No.
QTY Description Rating Remarks
6 BHAB0070 1 BKT BKT **-6**
7 BHAB0081 1 BKT BKT
8 BHAB0091 1 BKT BKT
9 BHAB0101 6 COLLAR カラー
10 BHAB0110 2 PIN ピン
11 BHAB0120 2 WASHER ワッシャ
14 BHAB0196 1 BED ベッド **-6**
20 BHAB0480 2 BLOCK, LOCATING ブロック 位置決め
24 S3070B 2
SLIDER
スライダ FBL56H+711L
25 BHAB0600 2 BLOCK, LEVELING ブロック レベリング h=912
26 GGA8020 6 BLOCK, LEVELING ブロック レベリング h=900
27 BB43880 4 BLOCK, LEVELING ブロック レベリング h=912
28 GGA8060 4 BLOCK, LEVELING ブロック レベリング h=920
29 GGA8050 4 BLOCK, LEVELING ブロック レベリング h=930
30 GGA8030 4 BLOCK, LEVELING ブロック レベリング h=940,950
31 GGA8040 4 BLOCK, LEVELING ブロック レベリング h=965
32 GGA8011 6 BOLT, LEVELING ボルト レベリング
33 N1101A 6
NUT, HEX
ナット 六角
M16 3-Type
41 H5342A
BOLT, HEX SOCKET
ボルト 六角穴
M8X25L
43 H5418A
BOLT, HEX SOCKET
ボルト 六角穴
M16X60L
47 W1029A
WASHER, LOCK
ワッシャ スプリング 16M/M
50 W1049A
WASHER, FLAT
ワッシャ 平
4W-16
51 W1014A
WASHER, CONICAL
ワッシャ 皿
M-8-H
53 .
SCREW, HEX SOCKET SET
小ネジ 六角穴止め M6X45L
55 .
SCREW, HEX SOCKET BUTTON
小ネジ 六角穴ボタン M4X5L
59 BHAB5040 1 BKT BKT **-7**
60 BHAB5019 1 BED ベッド **-7**
62 BHAB0610 2 BLOCK, LEVELING ブロック レベリング h=920
63 BHAB0640 2 BLOCK, LEVELING ブロック レベリング h=965
64 BHAB0630 2 BLOCK, LEVELING ブロック レベリング h=940,950
65 BHAK0910 1 COVER カバー
66 BHAK0920 COVER カバー *I-***
67 . SCREW, TRUSS 小ネジ トラス M4X8L
68 . SCREW, TRUSS 小ネジ トラス M6X12L
69 BHAB6012 1 BASE ベース **-8**
70 BHAB6050 1 BKT BKT **-8**
73 .
WASHER, LOCK
ワッシャ スプリング 6M/M
QP-242E PARTS LIST ver11
63 - 2 63.1.本体(BHAB)
63.1.Body(BHAB)

63.1.本体(BHAB)
63.1.Body(BHAB)
番号 図番 & コード番号 個数 品名 規格 備考
No.
Drg. No. & Code No.
QTY Description Rating Remarks
74 H5361A
BOLT, HEX SOCKET
ボルト 六角穴 M10X30L
75 W1026A
WASHER, LOCK
ワッシャ スプリング 10M/M
76 BHAB0492 1 PLATE, GUIDE プレート ガイド
77 BHAB0502 1 PLATE, GUIDE プレート ガイド
78 H5322A
BOLT, HEX SOCKET
ボルト 六角穴
M6X15L
79 BHAB5070 1 BOLT, STUD ボルト スタッド **-7**
80 BHAB0690 1 BKT BKT
81 H5288A
BOLT, HEX SOCKET
ボルト 六角穴
M5X10L
82 W1023A
WASHER, LOCK
ワッシャ スプリング 5M/M
83 H5287A
BOLT, HEX SOCKET
ボルト 六角穴
M4X8L
84 W1022A
WASHER, LOCK
ワッシャ スプリング 4M/M
85 BHPP5180 1 GUIDE ガイド **-8** **-7**
86 H5299A
BOLT, HEX SOCKET
ボルト 六角穴
M5X12L **-8** **-7**
87 W1023A
WASHER, LOCK
ワッシャ スプリング 5M/M **-8** **-7**
88 BHPP5170 1 GUIDE ガイド **-8** **-7**
89 K5257H SCREW,HEX SOCKET BUTTON 小ネジ 六角穴ボタン M4X12L **-8** **-7**
90 H5416A
BOLT, HEX SOCKET
ボルト 六角穴
M16X50L
91 N1100A NUT ナット M16 P=2.0
QP-242E PARTS LIST ver11
63 - 3 63.1.本体(BHAB)
63.1.Body(BHAB)

A
B
B
A
*S-7**
**-8**
B
B
A
**-8**
*I-7**
A
*I-6**
39
44
35
69
56
46
49
56
46
49
39
44
68
68
42
52
42
52
42
52
42
52
42
52
42
52
1
82
44
48
22
23
37
21
45
40
2
3
5
83
84
85
86
4
12
11
54
54
16
16
19
19
36
44
38
44
38
44
38
19
19
17
17
65 66
44
38
19
19
44
38
44
38
18
18
15
61
67
46
58
57
57
34
70
35
69
34
70
*S-6**
71
73
74
74
74
75
46
76
72
44
38
81
44
78
79
77
83
QP-242E PARTS LIST ver11
63 - 4
63.2.本体(BHAB)
63.2.Body(BHAB)
63.2.本体(BHAB)
63.2.Body(BHAB)