QP-242E-11 - 第239页
64.1.本体エアー配管図(BHWB) 64.1.Pneumatic circuit diagram(BHWB) 番号 図番 & コード番号 個数 品名 規格 備考 No. Drg.No. & Code No. QTY Description Rating Remarks 52 H3153T 2 PLUG, HEX SOCKET プラグ 六角穴 R1/4 53 H3153M 1 PLUG, HEX SOCKET フ…

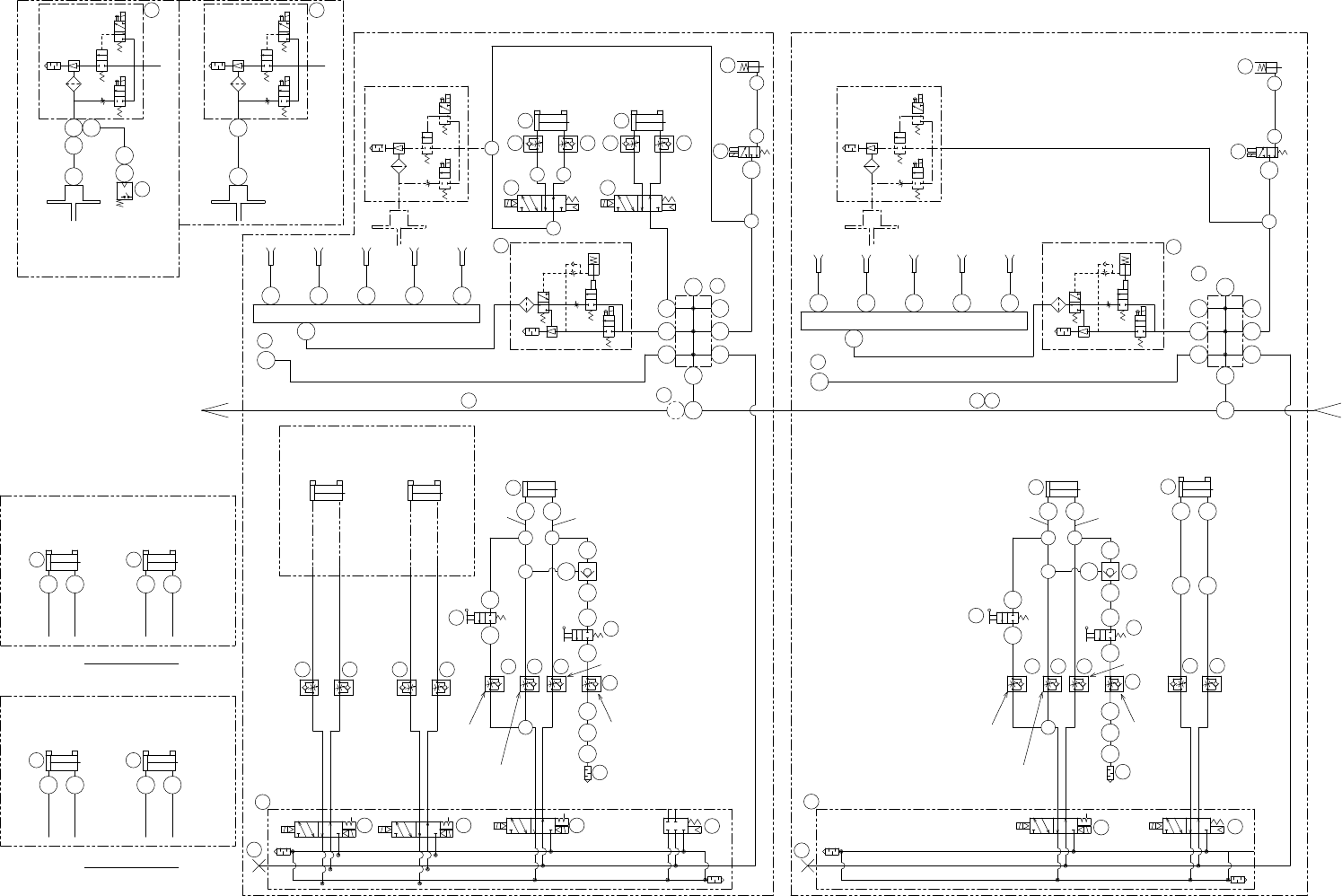
64.1.本体エアー配管図(BHWB)
64.1.Pneumatic circuit diagram(BHWB)
番号 図番 & コード番号 個数 品名 規格 備考
No. Drg.No. & Code No. QTY Description Rating Remarks
1 K1159A 1
COUPLER
カプラ 400PM
2 H1059E 1
VALVE, STOP
バルブ ストップ RP-LL 1/2B
3 K2027R 1
KEY
キー C1000-50
4 H3032H 1
FILTER REGULATOR
フィルタレギュレータ AW4000-06BCG-R
5 S3157Z 1
SW, PRESSURE
SW プレッシャ IS3010-02L5
6 K1160A 1 COUPLER カプラ 400SF
7 K1158A 1
COUPLER
カプラ 400PF
8 H10243 1
VALVE
バルブ VV5Q11-04-X353
9 . 1 VALVE バルブ SOL VQ1101-5
10 . 3 VALVE バルブ SOL VQ1201-5
11 . 1 PLUG プラグ KQP08-X15
16 K5335E 10
CONTROLLER, SPEED
コントローラ スピード JSU6
17 H1063G 2
VALVE, MECHANICAL
バルブ メカニカル VM121-01-01
18 S2126L 1
CYLINDER, AIR
シリンダ エアー CXSM10-K6869-35
19 S2125H 1
CYLINDER, AIR
シリンダ エアー CQ2D25C-J6140-40
20 BHAB0140 1 MANIFOLD, AIR マニホールド エアー
21 H1006R 1 EJECTOR エジェクタ VDBL10P6-08SA
22 A4001C 1 EJECTOR エジェクタ VGH12E-FM56L-FK-ST1
23 H1024E 1
VALVE
バルブ IN-334-61
25 H1124T 1
VALVE, SOL
バルブ SOL VQ110-5L-M5
26 S21215 1
CYLINDER, AIR
シリンダ エアー CQ2B12-5T
27 H1050H 1
VALVE, CHECK
バルブ チェック C250-01-16W
28 S1053F 1
SILENCER
サイレンサ KM-11
29 K1161A 1
COUPLER
カプラ 400SH
30 S2100Z 1 CYLINDER, AIR シリンダ エアー CDQ2A-12-15DM-A73L
31 BHPM1310 1 CYLINDER, AIR シリンダ エアー
32 S21004 1 CYLINDER, AIR シリンダ エアー CDQSB25-30DCM-A93L
42 A4085F 1 ELBOW, MALE AND FEMALE エルボ オスメス GF-SL-1/2
43 N20293 2 NIPPLE ニップル GF-RNI-3/4X1/2
44 T4036A 1 TEE ティー 1/2,
45 N20292 1 NIPPLE ニップル GF-RNI-1/2X1/4
46 Y3086T 3
UNION, HALF
ユニオン ハーフ KQ2H16-04S
47 Y3081E 1
UNION, ELBOW
ユニオン エルボ KQ2L16-00
48 Y3081H 1 UNION, ELBOW ユニオン エルボ KQ2L16-04S
49 Y3074Z 1
UNION
ユニオン KQ2T16-00
50 Y3079T 3
UNION, ELBOW
ユニオン エルボ KQ2L08-02S
51 Y3079A 1 UNION, ELBOW ユニオン エルボ KQ2L06-02S
QP-242E PARTS LIST ver11
64 - 2
64.1.本体エアー配管図(BHWB)
64.1.Pneumatic circuit diagram(BHWB)

64.1.本体エアー配管図(BHWB)
64.1.Pneumatic circuit diagram(BHWB)
番号 図番 & コード番号 個数 品名 規格 備考
No. Drg.No. & Code No. QTY Description Rating Remarks
52 H3153T 2
PLUG, HEX SOCKET
プラグ 六角穴
R1/4
53 H3153M 1
PLUG, HEX SOCKET
プラグ 六角穴
R1/2
54 Y3070A 5
UNION
ユニオン KQ2T06-00
55 Y3082Z 2
UNION, HALF
ユニオン ハーフ KQ2H04-06
56 Y3049E 1
UNION, ELBOW
ユニオン エルボ KJL04-M5
57 Y3062T 1
UNION, HALF
ユニオン ハーフ KJH04-M5
58 Y3049A 4
UNION, ELBOW
ユニオン エルボ KQL06-M5
59 Y3051A 8
UNION, ELBOW
ユニオン エルボ KQL06-01S
60 S2170E 1 JOINT, ONE-TOUCH ジョイント ワンタッチ TL6-M6
61 A4042A 5
ELBOW
エルボ PL6-M5M
62 S21651 1 JOINT, ROTARY ジョイント ロータリ IN-346-103
63 Y3049Z 1
UNION, ELBOW
ユニオン エルボ KQL04-M5
64 Y30559 1
UNION, HALF
ユニオン ハーフ KQH04-M5
65 Y3056A 1
UNION, HALF
ユニオン ハーフ KQH06-M5
66 Y3037X 1
UNION
ユニオン KQ2F06-01
67 Y3056E 1
UNION, HALF
ユニオン ハーフ KQH06-01S
68 Y3097H 1
UNION, ELBOW
ユニオン エルボ KQ2L06-99
69 N2031A 1
NIPPLE
ニップル M-5H-6
70 N2033X 1
NIPPLE
ニップル KQ2N06-99
73 BHWB0040 1 TUBE, NYLON チューブ ナイロン *S-6**
75 BHWB0060 1 TUBE, NYLON チューブ ナイロン *S-8**
76 S4033H 1 SENSOR PRESSURE センサ 圧力 PSE511-M5 Parts pickup check(Option)
77 Y3021D 1
UNION
ユニオン LH-2FM5-M5 Parts pickup check(Option)
78 Y3044L 2
UNION
ユニオン M-5HLH-4 Parts pickup check(Option)
79 Y3044A 1
UNION
ユニオン M-5E Parts pickup check(Option)
QP-242E PARTS LIST ver11
64 - 3
64.1.本体エアー配管図(BHWB)
64.1.Pneumatic circuit diagram(BHWB)

φ25x40
下
up
上
Module conveyor
board clamp
モジュールコンベア基板クランプ
down
上昇低速
low speed
release
φ6
φ6
P6 φ6
P5 φ6
P14
上昇高速
high speed
release
下降低速
low speed
release
下降高速
high speed
release
16
161616
16161616
19
5858
5454
59
6754
59
59
59
70
68
66
28
59
59
54
M5 M5
φ6
P12 P15
φ6
φ6
P10
φ6
P7
φ6
P13
φ6
P16 φ6
P17 φ6
P8
P7
P8
φ6
34
33
36
64
63
65
54
53
52
51
50
46
50
50
71
23
MFU
26
25
21
B2
φ16
B2
φ8
B2
φ16
B2
φ8
B2
φ4
φ4
H2
φ6
B2
φ6
B2
前のモジュ−ルから
From the
last module
Lower
Lower
Raise
Raise
φ4
F3
次のモジュ−ルへ
To the next module
38
40
φ10x30
3-way changeover valve
ON/OFF
3方向切換バルブ(フラックス)
上
up
下
down
M5
M5
A
B
F4
φ4
61
60
P12
φ6
M5
61
P12
φ6
P12
φ6
P12
φ6
P12
φ6
P12
φ6
P12
φ6
P12
φ6
P12
φ6
P12
φ6
P12
φ6
M5
61
M5
61
M5
61
M5
M6
1/4
1/4
1/4
1/2
1/2
BABABABA
φ8
B2
P11φ6
17
17
P9
17
P9
up
上下
down
モジュールコンベア基板ストッパ
φ10x35
Module conveyor
board stopper
φ25x40
下
up
上
Module conveyor
board clamp
モジュールコンベア基板クランプ
down
上昇
Raise
下降
Lower
上昇低速
low speed
release
φ6
φ6
P6 φ6
P5 φ6
P1 φ6
P2 φ6
φ6
P4
φ4
P4
P14
上昇高速
high speed
release
下降低速
low speed
release
下降高速
high speed
release
56
55
57
55
18
16
161616
16
16
19
P3P3
φ4
φ6
58
58
5454
59
67
54
59
59
59
70
68
66
28
59
59
54
M5 M5M5 M5
φ6
P12 P15
φ6
φ6
P10
φ6
P13
φ6
P16 φ6
P17 φ6
P8
P7
P12
φ6
14
12
15
64
63
65
54
53
52
51
50
46
50
50
52
23
MFU
26
25
21
49
B2
φ16
B2
φ8
B2
φ16
B2
φ8
B2
φ6
φ4
H2
φ6
B2
φ6
B2
Lower
Lower
Raise
Raise
61
60
P12
φ6
M5
61
M5
61
M5
61
M5
61
M5
M6
1/4
1/4
1/4
1/2
1/2
B
A
B
A
φ8
B2
P11φ6
17
37
φ4
F1
41414141
39
φ16x55
Flax head
up/down
フラックスヘッド上下
下
down
上
up
M5
M5
A
B
F2
φ4
B2
φ6
54
B2
φ6
B2
φ6
72 72
58
20
49
24
閉
close
開
open
上昇
Raise
下降
Lower
M6 φ6
M5 φ6
M2 φ6
M1 φ6
M8
φ6
M3
φ6
M4
φ6
M7
φ6
353535
φ20x30 φ12x15
下 上
up open
Type B,C
up/down
Nozzle change shutter
open/close
ノズルチェンジ シャッタ−開閉
閉開
closedown
1/31/3 M5 M5
30
31
5858
59
59
M8
φ6
M3
φ6
M4
φ6
M7
φ6
M8
φ6
M3
φ6
M4
φ6
M7
φ6
φ20x30 φ12x15
下 上
up open
Nozzle change
up/down
Nozzle change shutter
open/close
ノズルチェンジ シャッタ−開閉ノズルチェンジ上下
閉開
closedown
M5M5 M5 M5
30
32
58585858
ノズルチェンジ上下
Nozzle change
Type A
20
27
(Flax)
Nozzle changer
Nozzle Changer
73
75
74
*S-7** *I-6** *I-8**
69
22
62
H1
φ6
77
76
62
B1
H3
φ4
B1
69
78
78
79
φ6
H1
Parts pickup check
(Option)
Standard
22
13
ノズルチェンジャ
Nozzle changer
175
QP-242E PARTS LIST ver11
64 - 4
64.2.本体エアー配管図(BHWB)
64.2.Pneumatic circuit diagram(BHWB)
64.2.本体エアー配管図(BHWB)
64.2.Pneumatic circuit diagram(BHWB)