QP-242E-11 - 第310页
82.MTU-71E 空トレイ回収ボックス(BHTC) 82.MTU-71E Empty tray box(BHTC) 番号 図番 & コード番号 個数 品名 規格 備考 No. Drg. No. & Code No. QTY Description Rating Remarks 1 BHTC3510 1 BKT BKT 2 BHTC3520 1 GUIDE ガイド 3 BHTC3530 1 GUIDE ガイド…

QP-242E PARTS LIST ver11
82.MTU-71E 空トレイ回収ボックス(BHTC)
82.MTU-71E Empty tray box(BHTC)
82 - 1
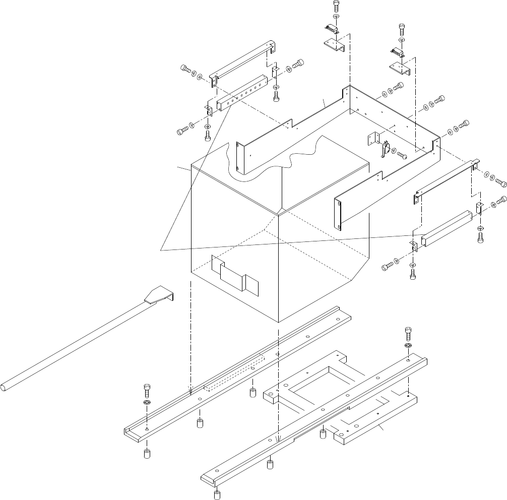
82.MTU-71E 空トレイ回収ボックス(BHTC)
82.MTU-71E Empty tray box(BHTC)
Ref.33-7
タテx173.205
Ref.31-1
Ref.31-1
Ref.31-1
Ref.33-7
15
19
24
26
10
17
23
23
16
12
11
23
16
23
17
20
24
26
18
23
25
20
24
26
7
13
23
16
16
23
13
7
8
14
23
29
17
23
23
16
11
10
19
24
26
23
16
23
17
12
9
6
22
28
4
4
4
4
4
4
27
21
3
2
1
5
x8
208
176
165
175
161
175
161
175
161
183
162
176
167
175
161
13
13
B
A
139
26

82.MTU-71E 空トレイ回収ボックス(BHTC)
82.MTU-71E Empty tray box(BHTC)
番号 図番 & コード番号 個数 品名 規格 備考
No.
Drg. No. & Code No.
QTY Description Rating Remarks
1 BHTC3510 1 BKT BKT
2 BHTC3520 1 GUIDE ガイド
3 BHTC3530 1 GUIDE ガイド
4 BHTC3540 6 COLLAR カラー
5 BHTC3550 1 BOX BOX
6 BHTC3560 1 HANDLE ハンドル
7 BHTC3570 2 BKT BKT
8 BHTC3580 1 BKT BKT
9 BHTC3590 1 BKT BKT
10 BHTC3600 2 BKT, SENSOR BKT センサ
11 BHTC3610 2 BKT, SENSOR BKT センサ
12 BHTC3620 2 BKT, SENSOR BKT センサ
13 M1010Z 2
MAGNET CATCH
マグネットキャッチ TL-78S
14 S3172T 1 SW, MICRO SWマイクロ V-5435D
15 S4032C 1 SENSOR センサ PJ-S08
16 H5273A
BOLT, HEX SOCKET
ボルト 六角穴
M3X5L
17 H5274A
BOLT, HEX SOCKET
ボルト 六角穴
M3X6L
18 H5276A
BOLT, HEX SOCKET
ボルト 六角穴
M3X10L
19 H5287A
BOLT, HEX SOCKET
ボルト 六角穴
M4X8L
20 H5288A
BOLT, HEX SOCKET
ボルト 六角穴
M4X10L
21 H5298A
BOLT, HEX SOCKET
ボルト 六角穴
M5X10L
22 H5329A
BOLT, HEX SOCKET
ボルト 六角穴
M6X35L
23 W1021A
WASHER, LOCK
ワッシャ スプリング 3M/M
24 W1022A
WASHER, LOCK
ワッシャ スプリング 4M/M
25 W1040A
WASHER, FLAT
ワッシャ 平
3M/MX0.5X7
26 W1041A
WASHER, FLAT
ワッシャ 平
4M/MX0.8X9(1W-4)
27 W1012A
WASHER, CONICAL
ワッシャ 皿
M-5-L
28 W1013A
WASHER, CONICAL
ワッシャ 皿
M-6-H
29 . SCREW, C/R PAN 小ネジ 十穴鍋 M3X15L ・
QP-242E PARTS LIST ver11
82 - 2
82.MTU-71E 空トレイ回収ボックス(BHTC)
82.MTU-71E Empty tray box(BHTC)

QP-242E PARTS LIST ver11
83.MTU-71E エアー機器(BHWB)
83.MTU-71E Air device(BHWB)
83 - 1
83.MTU-71E エアー機器(BHWB)
83.MTU-71E Air device(BHWB)
Ref.33-7
タテx173.205
Ref.31-1
Ref.31-1
Ref.31-1
Ref.33-7
10
2
9
5
6
6
7
12
11
8
1
3
4
x10.5
208
176
165
175
161
175
161
175
161
183
162
176
167
175
161
13
13
B
A
139
26