ACT - Accuracy Check Tool User Manual - 第96页
ACT - Accurac y Check Tool / Us er Man ual 06/2015 Edition 8 2 Prerequisites an d Overview of Parts 2.1 Software Requir ements Machine ty pes SIPLACE Pro SIPLACE with SSW 7xx SIPLACE w ith SSW 6xx Additional software Imp…

ACT - Accuracy Check Tool / User Manual 06/2015 Edition
7
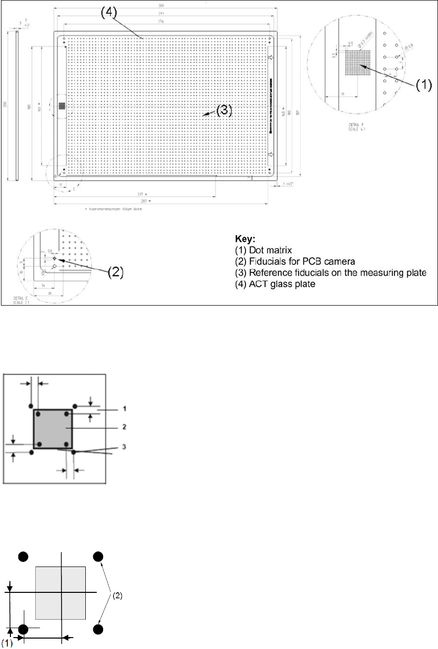
Figure 1-2: Drawing of ACT plate
Example of glass components:
Key:
(1) x-, y, θ offset
(2) Glass component
(3) Reference fiducials
Figure 1-3: Relative position (offset) of component to the outer fiducials on the glass plate (example of glass component)
Example of ceramic components (Cerampads):
Key:
(1) x-, y offset
(2) Reference fiducials on the ACT
measuring plate
Figure 1-4: Relative position (offset) of component to the outer fiducials on the glass plate (example of ceramic component
(Cerampad))

ACT - Accuracy Check Tool / User Manual 06/2015 Edition
8
2 Prerequisites and Overview of Parts
2.1 Software Requirements
Machine types SIPLACE Pro SIPLACE with SSW
7xx
SIPLACE with SSW
6xx
Additional
software
Importing tables and
boards *.sipro files.
See section 3.2.
X Setup depending of
version required.
See section3.2.
Table 2-1: Software requirements
*)
Recommendation: station software from 707.1 SP1 Hotfix 2 with SIPLACE Pro from 11.1.
2.2 Contents "Accuracy Test Device ACT" (Item No. 03068036-01)
Item description Item number Quantity
ACT glass plate with protective lid and
calibration certificate
03056448-01 1 x
Glass components CC02-05, 60 X in
ACT waffle pack tray
03072236-01 1 tray magazine with 60 CC02-
05 components
X-table holder 03069882-01 1 x
S-table holder 03059289-01 1 x
Ceramic components (Cerampads) on
tapes
003539505-02 4 reels with 5,000 components
each (= 20,000)
ACT intervention guard, complete 03073250- 01 1 x
Adhesive foil, cut to size 03071883-01 20 x
CD with user manual, placement
programs, installation file
00196351-03 1 x
Vacuum nozzle 00334547-01 1 x
Case 03072228-01 1 x
Table 2-2: Contents "Accuracy Test Device ACT"
NOTICE
The measuring plate and the special components have been specially designed for the
ACT. The measuring plate has global fiducials for PCB position recognition, fiducials for
component position measurement and a grid array, dot matrix (see Figure 1-2
), defined
as inkspot in SIPLACE Pro.
In each glass component, 3 of 4 fiducials are integrated for measuring the component
position. The special components used depend on the head or camera type fitted (see
section 4.1).

ACT - Accuracy Check Tool / User Manual 06/2015 Edition
9
2.2.1 Options / Spare Parts
Item description Item number Quantity
Glass component CC02-005 (single) 00338002-01 Glass component (single)
Glass component CC07-500 (single) 00338000-02 Optional glass component
(single)
1)
Cerampads 2x2 mm in blister tape (for
use in dust-free rooms)
03116117-01 Reel with 2 500 components
Base ACT magazine, complete 03069924-01 Empty magazine (tray) without
cover
Cover for ACT magazine, complete 03069888-01 Cover for ACT magazine (tray)
Cover for glass plate, complete 03056782-01 Cover for glass plate
(Calibration Board)
Light plate 03056307-01 Plate on the underside of the
glass plate
Knurled screw DIN 464 M4 x 16 03031104-01 For closing the glass plate
Knurled screw DIN 464 M4 x 12 03031103-01 For closing the magazine (tray)
Tray in Conveyor for ACT option See chapter 5
Consists of:
Tray glass1, complete 03058749-01 Empty tray with space for 117
glass components of size
18x18 mm
Cover for tray AVS, complete 03063446-01 Cover for tray mentioned
above
Knurled screw DIN 464 M4 x 12 03031103-01 For closing the magazine (tray)
Long adapter (4 knurled screws
included)
03056010S01 For connecting tray and glass
plate (for single lane conveyor)
Table 2-3: Options / Spare parts
NOTICE
1)
Optional glass components CC07-500
The optional CC07-500 glass components, item no. [00338000-02] were offered as
option for measuring the SST25 (FC camera) up to station software version 707.1.
As of station software version 707.1 and SIPLACE Pro 11.x, this component is not
supported anymore.
Instead, a component description CC02-05_FC is available in SIPLACE Pro as of
version 11.x.