LmrXP142机械手册.pdf - 第130页
Notes: Part 6 Chapter 1 Leveling the Machine Edition 3.0 6-1-2 XP-142E Mechanical Reference

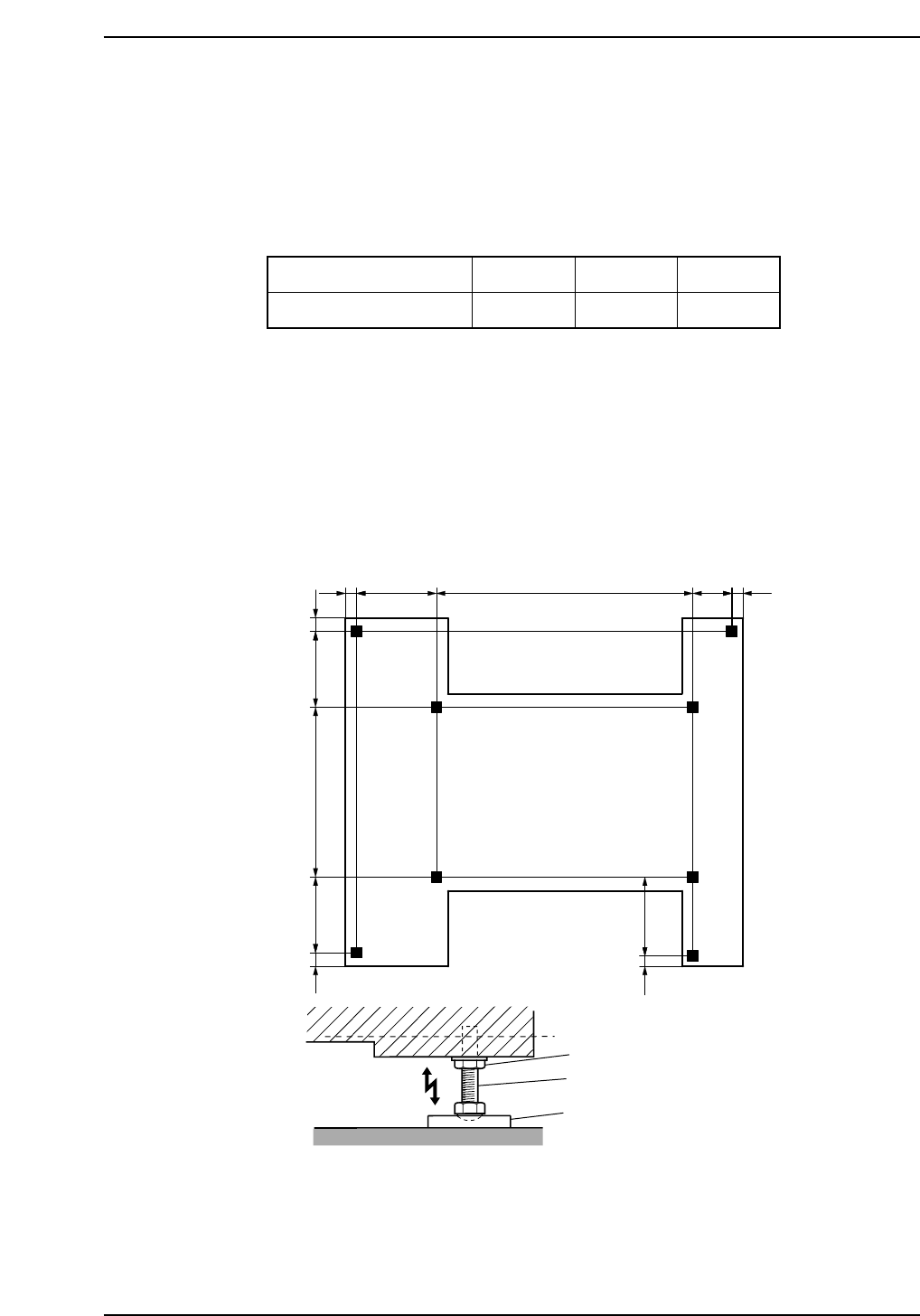
1. Leveling the Machine
Point
Set leveling sheets in the positions shown below, and adjust the machine until it is level.
Ensure that leveling sheets match the board conveyance height.
Procedure
1. Position the leveling sheets according to the positions indicated below.
2. Position a pair of sprit levels on the base of the machine (vertical and horizontal
directions).
3. Adjust the height of each leveling bolt so that the machine is level and the
conveyance height is correct.
4. When the machine is level, tighten the lock nuts and double-check the position.
XP1MS001E
(mm)
293 942 143 4141
5050 278624278
29038
Lock nut
Leveling bolt
Leveling sheet
Table01E
Board conveyance height
Leveling sheet height
900
16
units (mm)
950
60
965
75
Part 6 Chapter 1 Leveling the Machine
Edition 3.0 6-1-1 XP-142E Mechanical Reference

Notes:
Part 6 Chapter 1 Leveling the Machine
Edition 3.0 6-1-2 XP-142E Mechanical Reference

2. Connecting the Air
Point
Connect the air hose to the machine and adjust the pressure regulator to the correct value
(0.5 MPa).
Note: The hose is not supplied by Fuji.
Procedure
Connecting the Air Supply Hose
1. Close the air valve lever.
2. Connect the air supply hose.
3. Open the valve lever.
Valve lever
Open
Close
XP1MS202E
XP1MS201E
30SH socket (for 3/8" hose)
0.5 MPa
or more
Hose
30PM plug
Lever
Knob
Part 6 Chapter 2 Connecting the Air
Edition 3.0 6-2-1 XP-142E Mechanical Reference