CM212-M - 第17页
Ref No. Remark s R 1 Q'ty 1-B 本 体部 Main Body イラスト No. Part No. 品 名 品番 数量 R 2 パーツリスト Kit N o . キット品 番 Kit Name キット名称 N610023989AB Part Name 備 考 セクションNo. PARTS LIST Section No. R 3 SHAFT 2 16 N210021374AB BRACKET 1 40…

1-B
本
体部
Main Body
パーツレイアウト
Ki
t
N
o
.
キット
品番
Kit Name
キット名称
N610023989AB
セクションNo.
PARTS LAYOUT
Section No.
--
M3
( KN610023989AB-19-2 )

Ref
No.
Remarks
R
1
Q'ty
1-B
本
体部
Main Body
イラスト
No.
Part No.
品 名品番 数量
R
2
パーツリスト
Kit N
o
.
キット品
番
Kit Name
キット名称
N610023989AB
Part Name
備 考
セクションNo.
PARTS LIST
Section No.
R
3
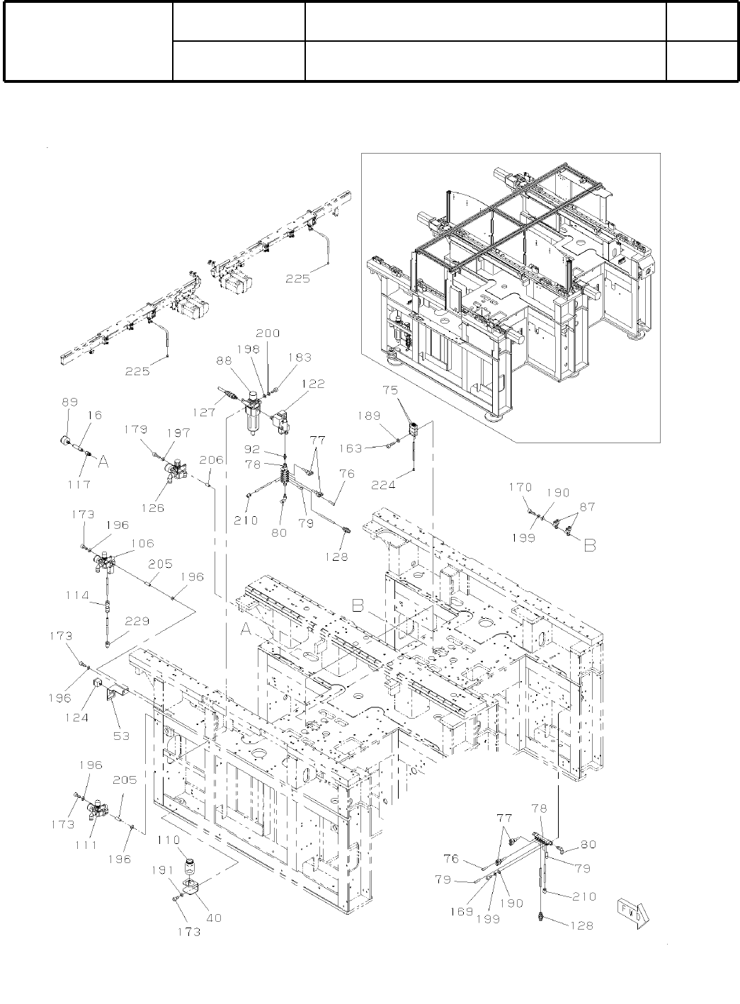
SHAFT
2
16 N210021374AB
BRACKET
1
40 N210028681AA
BRACKET
1
53 N210021413AE
BLOCK
4
75 KXF0A7RAA00 VQ1000-FPG-C6C6
PLUG
6
76 KXF02CRAA00 KQP-06
JOINT
6
77 KXF02EEAA00 KQX06-08
MANIFOLD
2
78 KXF02A2AA00 KM12-08-03-10
PLUG
5
79 KXF02CSAA00 KQP-08
JOINT
2
80 KXF02CMAA00 KQL12-03S
JOINT
4
87 KXF02DLAA00 KQU04-06
REGULATOR
1
88 N510010273AA AWM40-03BD-R-X2108
GAUGE
2
89 KXF0E1H0A00 GZ46-K-02
NIPPLE
1
92 KXF0568AA00 Nipple 3/8
REGULATOR
1
106 N510010253AA AR20-02BG-1RY-X2152
BOTTLE
1
110 KXF07M8AA00 5-010-03
REGULATOR
1
111 N510010254AA AR20-02BG-RY-X2152
JOINT
4
114 KXF02AXAA00 KQH06-00
JOINT
2
117 KXF09MKAA00 KQE06-02
VALVE
1
122 KXFX061NA00 VP544-1D-03A-X278(DDA)
SWITCH
1
124 N510010256AA ISE30-C4H-25-MB
REGULATOR
2
126 N510010255AA ARP3000-02B-R-X540
HOSE
1
127 N510002541AA OUA8X12-5M-03B
JOINT
2
128 KXF0DUAAA00 KCE08-00
BOLT
4
163 N510017323AA
Hexagon socket head cap screw M3X30-10.9 A2J (Trivalent)
BOLT
2
169 N510017361AA
Hexagon socket head cap screw M4X30-10.9 A2J (Trivalent)
BOLT
2
170 N510017364AA
Hexagon socket head cap screw M4X35-10.9 A2J (Trivalent)
BOLT
8
173 N510017386AA
Hexagon socket head cap screw M5X10-10.9 A2J (Trivalent)
BOLT
4
179 N510017428AA
Hexagon socket head cap screw M6X12-10.9 A2J (Trivalent)
BOLT
2
183 N510017465AA
Hexagon socket head cap screw M8X12-10.9 A2J (Trivalent)
WASHER
4
189 N510018494AA
Round finish plain washer 3 10H A2J (Trivalent)
WASHER
4
190 N510018497AA
Round finish plain washer 4 10H A2J (Trivalent)
WASHER
2
191 N510018499AA
Round finish plain washer 5 10H A2J (Trivalent)
WASHER
10
196 N510020100AA Thick washer for M5
WASHER
4
197 N510020101AA Thick washer for M6
WASHER
4
198 N510020102AA Thick washer for M8
WASHER
4
199 N510018330AA Spring lock washer No.2 4 S A2J (Trivalent)
WASHER
4
200 N510018336AA Spring lock washer No.2 8 S A2J (Trivalent)
SPACER
4
205 N510015029AA BSB-518E
SPACER
4
206 N510015030AA BSB-610E
CAP
4
210 N510002688AA KQ2C08-00
RING
4
224 KXF089MAA00 R4X0.5
RING
2
225 KXF08ZYAA00 R2.5X0.5
CAP
4
229 N434KQ2C0600 KQ2C06-00
M4
--
( KN610023989AB-19-2 )

1-C
本
体部
Main Body
パーツレイアウト
Ki
t
N
o
.
キット
品番
Kit Name
キット名称
N610023989AB
セクションNo.
PARTS LAYOUT
Section No.
--
M5
( KN610023989AB-19-3 )