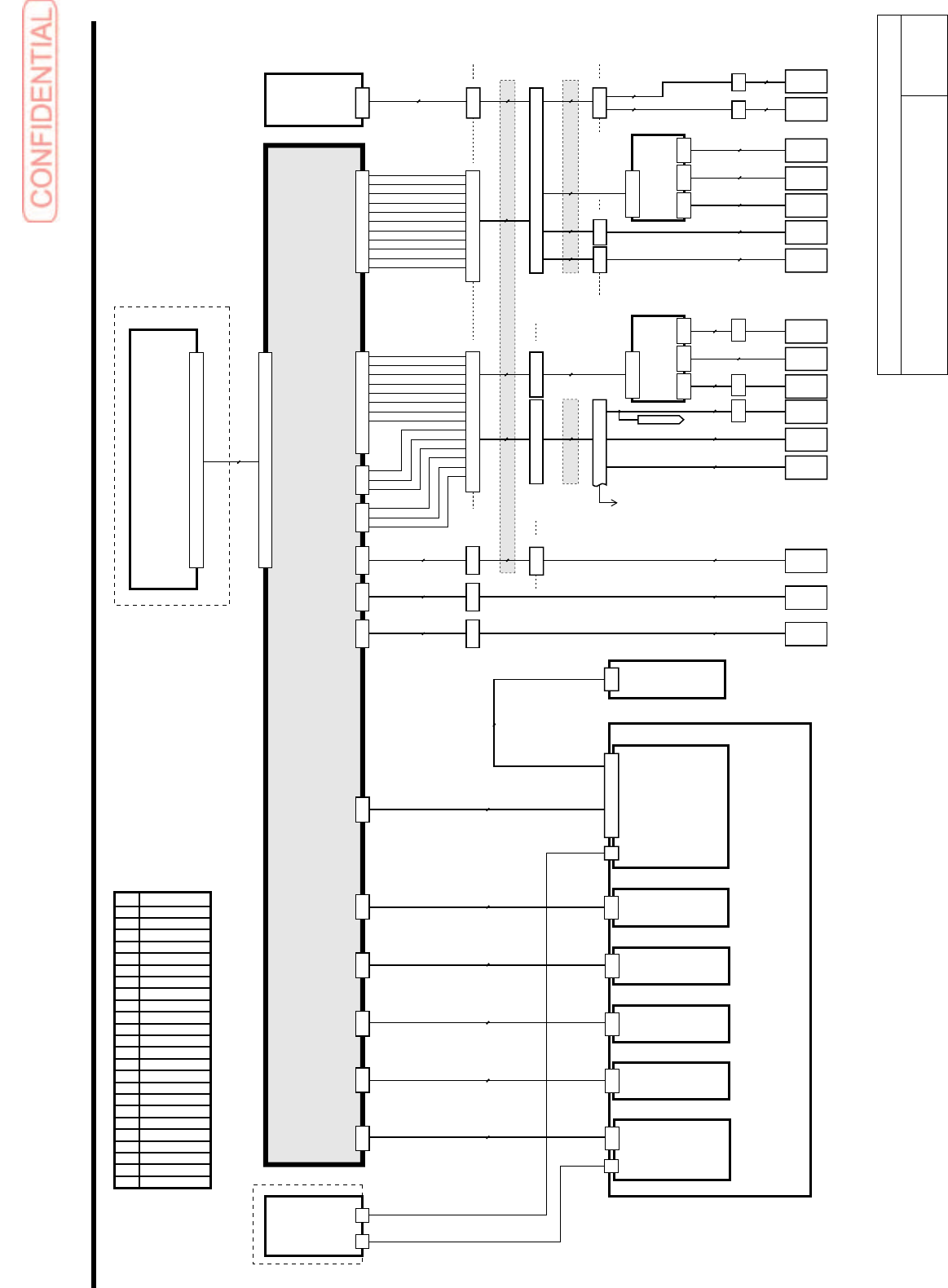
MAN00000772_SI-G200BB_SVCPDFA - 第467页
Motor Control CDGB-10703-01 YF-Axis Servo Driver Peripheral Circuit SHEET 1/1 CP5 MC1 PS1 L N FG + - PA 0 /P A0 PB0 /PB0 PC0 /PC0 SG FG FG 3 4 6 7 8 9 23 24 17 18 19 20 21 22 16 1 2 3 4 5 6 7 8 ALM + ALM - +24V IN P-OT N…

Motor Control
CDGB-10702-01
IF2 LS Board (Rear) Peripheral
Circuit
SHEET
2/2
+24V
OUT
GND
+24V
OUT
GND
+24V
OUT
GND
SERVO UNIT
(Refer:CDGB-10303)
1
I
30
1
I
30
1
I
30
1
I
30
1
I
30
1
I
8
1
I
8
1
I
8
1
I
8
1
I
8
1
I
8
SERVO I/F UNIT
SY-EX 2 BOARD R
(Refer:CDGB-10701)
8
7
8
8
8
8
8
Z
JEPMC-6002-04 (YASKAWA)
Z
JEPMC-6002-04 (YASKAWA)
YR-CW1
YR-CW
YR-CCW
YR-CCW
YR-ORG
YR-ORG
LBR-3
LBR-4
LBR-2
33
3
3
33
3
1
2
3
1
2
3
1
2
3
1
2
3
1
2
3
1
2
3
YR-CW
1
2
3
CN36 EXR-36
+24
ALM1+
ALM1-
+24V
ALM2+
ALM2-
+24V
ALM3+
ALM3-
+24V
ALM4+
ALM4-
+24V
ALM5+
ALM5-
+24V
ALM6+
ALM6-
+24V
ALM7+
ALM7-
+24V
ALM8+
ALM8-
G24
+24V
1
2
3
7
8
9
13
14
15
19
20
21
26
27
28
32
33
34
38
39
40
44
45
46
50
25
1
2
3
4
5
6
7
8
9
10
11
12
13
14
15
16
17
18
19
20
21
22
23
24
25
26
IF2 LS BOARD R
LBR-1 CN1
CN3
LBR-18
1
2
3
CN18
LBR-19
1
2
3
CN19
CN2
CN4
CN6 LBR-6 LS1R XSR
1
2
3
4
5
6
7
8
9
10
11
12
13
14
15
1
2
3
4
5
6
7
8
9
10
11
5
9
1
2
3
4
5
7
8
9
1
2
3
4
5
6
7
8
9
1
2
3
4
5
6
FLSR
9
FSEN2R(1/2)
5
3
3
1
2
3
4
5
X
LSR-1 CN1
XR-L
SB
CN2
CN3
CN4
1
2
3
1
2
3
1
2
3
XLSR-2
XLSR-3
XLSR-4
3
3
3
Y FLAT
RBT
CABLE
1
2
3
XR-CCW
1
2
3
XR-ORG
1
2
3
PH-ORGR
+24V
OUT
GND
XR-CCW
+24V
OUT
GND
XR-CW
+24V
OUT
GND
XR-ORG
+24V
OUT
GND
FR-ORG
+24V
OUT
GND
FR-CW
3
4
6
7
8
9
23
24
16
I
22
1
I
9
PORT2
PORT1
PCR-MCPORT2
PCR-MCPORT1
SYMC 2 BOARD
DV-R11
DRIVER UNIT
(Refer:CDGB-10304)
PC UNIT (REAR)
CN10 LBR-10
CN16 LBR-16
CN11 LBR-11
CN12 LBR-12
CN13 LBR-13
CN15 LBR-15
50
SV-RTR1
SV-YR1
SV-YR6A
SV-RNR6A
SV-XR1
SV-RNR1
SV-FR1
SV-HR1
(Refer:CDGB-10709)
J3
CN1
CN1
CN6A
CN6A
CN1
CN1
CN1
CN1
EXECF-J3
(Refer:CDGB-10710)
(Refer:CDGB-10714)
(Refer:CDGB-10712)
(Refer:CDGB-10711)
(Refer:CDGB-10713)
DRV-YR
SGDS-15A12A
EX 2 ENCODER BOARD F
(Refer:CDGB-10709)
DRV-XR
SGDS-08A12A
DRV-HR
SGDS-02A12A
DRV-FR
SGDS-02A12A
DRV-RNR
SGDS-02A12A
DRV-RTR
SGDS-04A12A
1st
CONNECTION
PANEL
2nd
CONNECTION
PANEL
A
QS
P
R
J
CK
D
3
+24V
OUT
GND
FR-CCW
L
M
N
C
3
3
3
1
2
3
4
5
HLSR-1 CN1
HR-LSB
CN2
CN3
CN4
1
2
3
1
2
3
1
2
3
HLSR-2
HLSR-3
HLSR-4
3
3
RTRS
RNRS
1
2
3
1
2
3
PDR-U
1
2
3
3
5
CN7 LBR-7 LS2R
PD1R
SEN2R
1
2
3
4
5
6
7
8
9
10
11
12
1
2
3
4
5
6
7
8
9
10
11
5
6
7
8
9
10
11
12
13
14
15
11
44
X CABLE
CONDUIT
X CABLE
CONDUIT
+24V
OUT
GND
HR-CCW
+24V
OUT
GND
HR-CW
PDR-U
PUSHER
UPPER
REAR
PDR-L
PUSHER
LOWER
REAR
+24V
OUT
GND
HR-ORG
+24V
OUT
GND
RTR-ORG
+24V
OUT
GND
RNR-ORG
3rd
CONNECTION
PANEL
3rd
CONNECTION
PANEL
D
D
D
G
H
C
F
BCD
E
T
U
V
W
Y
X
A
B
C
D
E
F
G
H
J
K
L
M
N
P
Q
R
S
T
U
V
W
X
Y
Z
1-833-312-21
1-833-456-21
1-833-493-23
1-833-503-22
1-833-297-2
1-833-320-21
1-833-318-2
1-833-319-2
1-833-418-21
1-833-313-21
1-833-314-21
1-833-315-21
1-833-416-21
1-833-459-21
1-833-460-21
1-833-417-21
1-833-493-23
1-833-404-21
1-833-409-21
1-833-409-21
1-833-411-21
1-833-413-21
1-833-414-21
1-829-548-11
REF CABLE PARTS NO.
1
2
3
4
1
2
3
4
PDR
4
2
2
1
2
3
4
1
2
3
4
2
PDR-L
1
2
2
TO FSEN2R
(Refer:CDGB-10701(3/4))
(Refer:CDGB-10701(3/4))

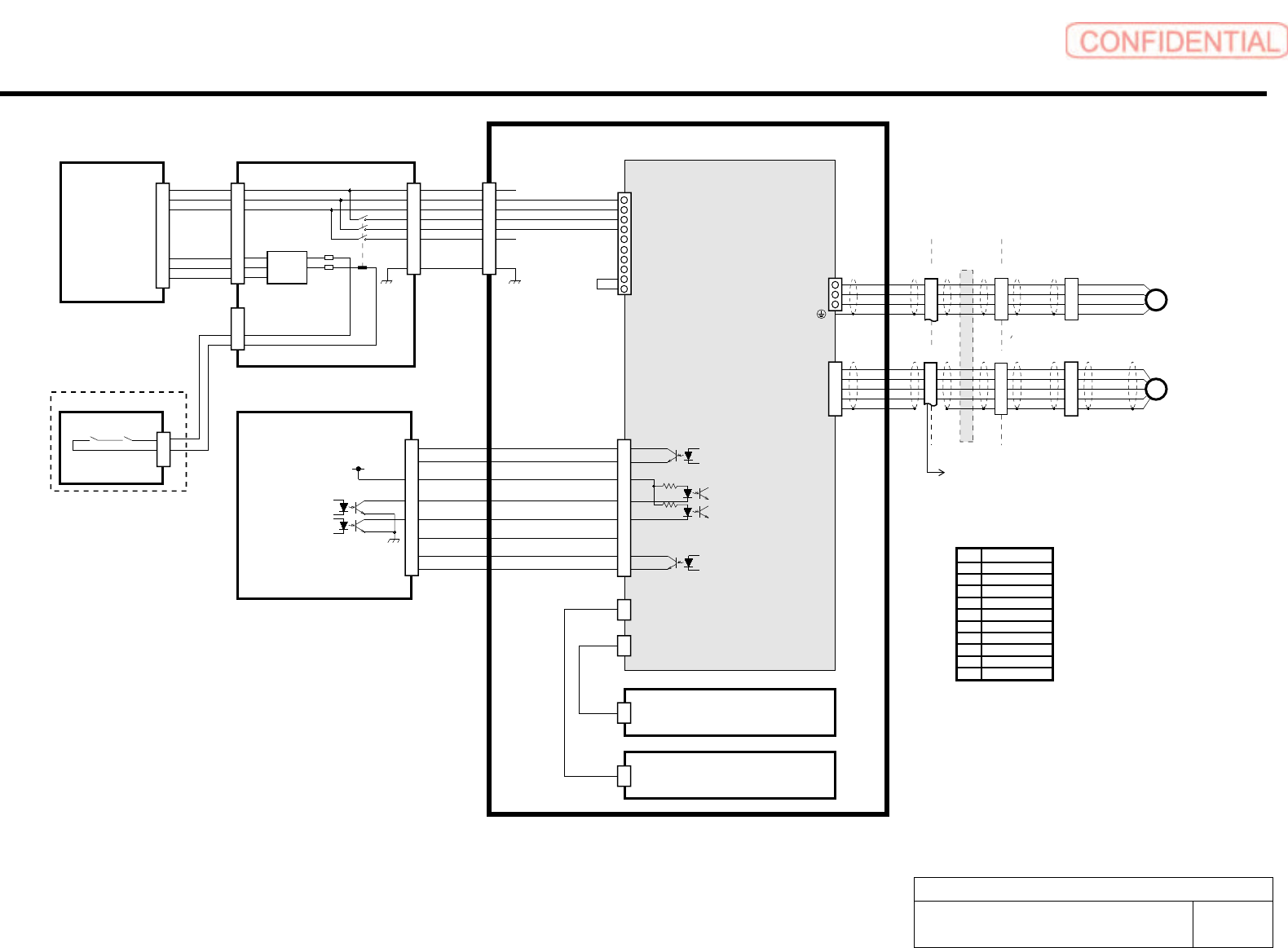
Motor Control
CDGB-10703-01
YF-Axis Servo Driver Peripheral
Circuit
SHEET
1/1
CP5
MC1
PS1
L
N
FG
+
-
PA0
/PA0
PB0
/PB0
PC0
/PC0
SG
FGFG
3
4
6
7
8
9
23
24
17
18
19
20
21
22
16
1
2
3
4
5
6
7
8
ALM +
ALM -
+24V IN
P-OT
N-OT
/DEC
/SO2+
/SO2-
L1C
L2C
L1
L2
L3
B1
B2
B3
+1
+2
SV-YFP
500
501
503
504
505
DRV-YF
SGDS-15A12A
DRV-XF (Refer:CDGB-10704)
1
2
5
6
FG
CN2 SV-YF2
YFE
YF ENCODE
R
1
2
3
4
5
PG5V
PG0V
PS
*PS
1
2
3
4
YFM
U
V
W
B1
B2
SV-YFM
(1/2)
SV-YFM
(2/2)
SERVO
UNIT
(FRONT)
(R
e
f
er:
CDGB
-
10303)
DRIVER UNIT
(Refer:CDGB-10304)
DV-ACOUT1
1
2
3
4
5
6
7
8
9
POWER UNIT
(Refer:CDGB-10401)
PW-2
1
2
3
4
5
6
DV-ACIN1
1
2
3
4
5
6
DV-EMG1
1
2
3
4
1
2
3
4
5
6
7
8
9
SV-ACIN F
500
501
502
503
504
505
PC UNIT (FRONT)
IF2 LS BOARD F (Refer:CDGB-10702)
EX 2 ENCORDER BOARD R
SYMC 2 BOARD
CN10 LBF-10
YF MOTOR
SV-YF1 CN1
SV-YF6A CN6A
SV-YF6B CN6B
SV-XF6A CN6A
PORT1
PCF-
MCPORT1
YF AXIS MOTOR
assembly
YF AXIS ENCODER
assembly
F
E
E
M
A 1-833-285-11
REF CABLE PARTS NO.
B 1-833-296-11
C 1-833-858-11
D 1-833-404-12
E
F
1-833-457-12
1-833-458-11
G
1-829-548-11
H
1-829-548-21
A B
D
G
JEPMC-W6002-04 (YASKAWA)
JEPMC-W6002-A5
H
(YASKAWA)
I/O UNIT1
SAFETY RELAY BOARD
(Refer:CDGB-10605)
CN21 SR-21
CR16DCR14D
1
2
3
C
1
2
3
4
5
6
7
8
9
FG
J3 EXECR-J3
YF-R
1
2
YF-R

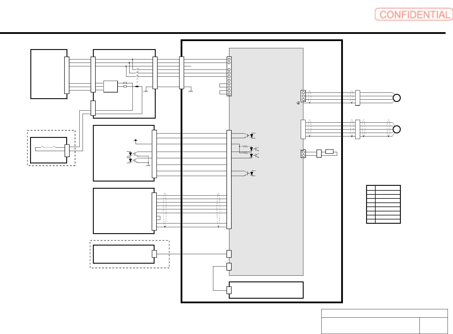
Motor Control
CDGB-10704-01
XF-Axis Servo Driver Peripheral
Circuit
SHEET
1/1
CP5
MC1
PS1
L
N
FG
+
-
3
4
6
7
8
9
23
24
1
2
3
4
5
6
7
8
ALM +
ALM -
+24V IN
P-OT
N-OT
/DEC
/SO2+
/SO2-
L1C
L2C
L1
L2
L3
B1
B2
B3
+1
+2
SV-XFP
501
502
503
504
DRV-XF
SGDS-08A12A
DRV-HF (Refer:CDGB-10705)
1
2
5
6
FG
CN2 SV-XF2
PG5V
PG0V
PS
*PS
U
V
W
SV-XFM
SERVO
UNIT
(FRONT)
(Refer:CDGB-10303)
DRIVER UNIT
(Refer:CDGB-10304)
DV-ACOUT1
1
2
3
4
5
6
7
8
9
POWER UNIT
(Refer:CDGB-10401)
PW-2
1
2
3
4
5
6
DV-ACIN1
1
2
3
4
5
6
DV-EMG1
1
2
3
4
1
2
3
4
5
6
7
8
9
SV-ACIN F
500
501
502
503
504
505
IF2 LS BOARD F
(Refer:CDGB-10702)
CN11 LBF-11
SV-XF1 CN1
SV-XF6A CN6A
SV-XF6B CN6B
SV-HF6A CN6A
DRV-YF (Refer:CDGB-10703)
SV-YF6B CN6B
H
E
F
F
J
G
XF ENCODE
R
1
2
3
4
5
XF MOTOR
XF AXIS
MOTOR
assembly
XF AXIS
ENCODER
assembly
E
M
A 1-833-285-11
REF CABLE PARTS NO.
B 1-833-296-11
C 1-833-858-11
D 1-833-409-12
E
F
1-833-405-12
G
1-833-493-13
H
1-833-407-11
J
1-833-300-11
1-833-299-11
K
1-829-548-21
A B
D
FM1(1/2) XFM2 XFM
FE1(1/2) XFE2 XFE
Y FLAT
RBT CABLE
1st CONNECTION
PANEL
2nd CONNECTION
PANEL
1
2
3
4
1
2
3
4
1
2
3
4
1
2
3
4
5
1
2
3
4
JEPMC-W6002-A5 (
K
K
YASKAWA)
JEPMC-W6002-A5
(YASKAWA)
I/O UNIT1
SAFETY RELAY BOARD
(Refer:CDGB-10605)
CN21 SR-21
1
2
3
C
CR16DCR14D
(Refer:CDGB-10706)