MAN00000772_SI-G200BB_SVCPDFA - 第478页
Motor Control CDGB-10714-01 RNR-Axis Servo Driver Peripheral Circuit SHEET 1/1 MC2 CP5 L N FG + - PS1 CR16D CR14D 3 4 6 7 8 9 23 24 1 2 3 4 5 6 7 8 ALM + ALM - +24V IN P-OT N-OT /DEC /SO2+ /SO2- L1C L2C L1 L2 B1 B2 - SV-…

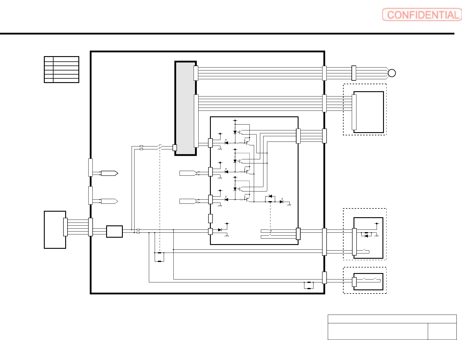
Motor Control
CDGB-10713-01
RTR-Axis Servo Driver Peripheral
Circuit
SHEET
1/1
CP5
MC2
PS1
L
N
FG
+
-
CR16DCR14D
3
4
6
7
8
9
23
24
1
2
3
4
5
6
7
8
ALM +
ALM -
+24V IN
P-OT
N-OT
/DEC
/SO2+
/SO2-
L1C
L2C
L1
L2
B1
B2
-
SV-RTRP
551
552
554
555
DRV-RTR
SGDS-04A12A
DRV-FR (Refer:CDGB-10712)
1
2
5
6
FG
CN2 SV-RTR2
PG5V
PG0V
PS
*PS
U
V
W
SV-RTRM
S
ERV
O
UNIT
(
REAR
)
(
Re
f
er:
C
D
G
B-10303
)
I/O UNIT1
SAFETY RELAY BOARD
(Refer:CDGB-10605)
CN21 SR-21
1
2
3
DRIVER UNIT
(Refer:CDGB-10304)
DV-ACOUT2
1
2
3
4
5
6
7
8
9
POWER UNIT
(Refer:CDGB-10401)
PW-6
1
2
3
4
5
6
DV-ACIN2
1
2
3
4
5
6
DV-EMG1
1
2
3
4
1
2
3
4
5
6
7
8
9
SV-ACIN R
550
551
552
553
554
555
IF2 LS BOARD R
(Refer:CDGB-10702)
CN15 LBR-15
SV-RTR1 CN1
SV-RTR6A CN6A
SV-RTR6B CN6B
SV-FR6B CN6B
DEA-R (JZDP-D003-000)
DEAR-1 CN1
H
K
E
F
F
J
G
RTR ENCODER
1
2
3
4
5
RTR MOTOR
MOTOR
assembly
RTR AXIS
RTR AXIS
ENCODER
assembly
E
M
A 1-833-286-11
REF CABLE PARTS NO.
B 1-833-296-21
C 1-833-858-11
D 1-833-413-22
E
F
1-833-406-22
G
1-833-493-23
H
1-833-408-21
J
1-833-504-23
K
1-833-301-21
1-833-503-22
L
1-833-285-11
M
1-829-548-21
A B
C
D
RM2(2/3) RM3(1/2) RTRM
RE2(2/3) RE3(1/2) RTRE
Y FLAT
RBT CABLE
X CABLE
CONDUIT
1st CONNECTION
PANEL
3rd CONNECTION
PANEL
5
6
7
8
1
2
3
4
1
2
3
4
1
2
3
4
5
6
7
8
FJ
RTR NOZZLE
DIRECT
ENCODER
1
2
3
4
5
6
7
8
FG
DE
DER3 DER2 DER1
1
2
3
4
5
6
7
8
FG
1
2
3
4
5
6
7
8
FG
JEPMC-W6002-A5 (YASKAWA)
SV-RTR4 CN4
1
2
5
6
FG
+5V
0V
S
/S
FG
6
2
5
1
CN2 DEAR-2
4
2
3
11
1
9
7
14
FG
+5V
0V
+SIN
-SIN
+COS
-COS
+REF
-REF
4
PW-2
44
L
DV-ACIN1
M
(Refer:CDGB-10711,
CDGB-10714)
(Refer:
CDGB-10714)

Motor Control
CDGB-10714-01
RNR-Axis Servo Driver Peripheral
Circuit
SHEET
1/1
MC2
CP5
L
N
FG
+
-
PS1
CR16DCR14D
3
4
6
7
8
9
23
24
1
2
3
4
5
6
7
8
ALM +
ALM -
+24V IN
P-OT
N-OT
/DEC
/SO2+
/SO2-
L1C
L2C
L1
L2
B1
B2
-
SV-RNRP
550
552
553
555
DRV-RNR
SGDS-02A12A
1
2
5
6
FG
CN2 SV-RNR2
PG5V
PG0V
PS
*PS
U
V
W
SV-RNRM
SERVO
UNIT
(REAR)
(Refer:CDGB-10303)
DRIVER UNIT
(Refer:CDGB-10304)
DV-ACOUT2
1
2
3
4
5
6
7
8
9
POWER UNIT
(Refer:CDGB-10401)
PW-6
1
2
3
4
5
6
DV-ACIN2
1
2
3
4
5
6
DV-EMG1
1
2
3
4
1
2
3
4
5
6
7
8
9
SV-ACIN R
550
551
552
553
554
555
IF2 LS BOARD R
(Refer:CDGB-10702)
CN16 LBR-16
SV-RNR1 CN1
SV-RNR6A CN6A
SV-RNR6B CN6B
H
E
F
F
J
G
A 1-833-286-11
REF CABLE PARTS NO.
B 1-833-296-21
C 1-833-858-11
D 1-833-414-22
E
F
1-833-406-22
G
1-833-493-23
H
1-833-408-21
J
1-833-504-23
1-833-503-22
K
1-833-285-11
L
1-829-548-11
A B
D
RM2(3/3) RM3(2/2)
RE2(3/3) RE3(2/2)
Y FLAT
RBT CABLE
X CABLE
CONDUIT
1st CONNECTION
PANEL
9
10
11
12
5
6
7
8
9
5
6
7
8
9
9
10
11
12
13
14
15
RNR ENCODER
1
2
3
4
5
RNR MOTOR
RNR AXIS
MOTOR
assembly
RNR AXIS
ENCODER
assembly
E
M
RNRM
RNRE
3rd CONNECTION
PANEL
1
2
3
4
I/O UNIT1
SAFETY RELAY BOARD
(Refer:CDGB-10605)
CN21 SR-21
1
2
3
C
PW-2
44
K
DV-ACIN1
(Refer:CDGB-10711, CDGB-10713)
(Refer:CDGB-10713)
PC UNIT (REAR)
SYMC 2 BOARD
POR
TRAY JOINT UNIT
TY-ML
T2
PCR-
MCPORT2
L
JEPMC-W6002-04 (YASKAWA)

Motor Control
CDGB-10715-01
Conveyor Adjustment Motor Driver
Peripheral Circuit
SHEET
1/1
DRIVER UNIT (Refer:CDGB-10501)
POWER UNIT
(Refer:CDGB-10401)
PS1
DC SUPPLY
24V/14A
EMG I/L BOARD F
(Refer:CDGB-10601)
DRV-AD
CONVEYOR ADJUST
MOTOR DRIVER
CN2 AD-2
1
2
3
4
5
CN3 AD-3
1
2
3
4
11
12
+5V
CW
+5V
CCW
TIM
GND
13
14
O.H.
GND
+24
GND
1
2
AD-1 CN1
+24B4
G24B4
+24B3
G24B3
CR1CP3
ALARM I/F BOARD
ALM-1 CN1
1
2
3
208
209
LED1
+24V
LED3
LED2
ALM-2 CN2
1
2
3
ALM-3 CN3
1
2
3
CN4
1
2
3
CN6 ALM-6
1
2
3
4
5
D1
CR1
LED5
ALM-7 CN7
1
2
D2
CN5 ALM-5
DV-18
1
2
3
4
5
1
2
3
4
5
AD
PM
CONVEYOR
ADJUST
MOTOR
SERVO I/F UNIT
SY-EX 2 BOARD F
(Refer:CDGB-10701)
EXF-17 CN17
1
2
3
4
9
10
5
6
7
8
11
12
R5V
CW1
R5V
CCW1
TIM1
R0V
DV-16
1
2
3
4
5
6
DV-21
1
2
3
4
5
(N.C.)
(N.C.)
I/O UNIT2
SAFETY RELAY BOARD
(Refer:CDGB-10605)
I/O UNIT1
DV-EMG2
ELF-10 CN10
1
2
3
4
1
2
3
4
213
CR10
CR38
+24V
G24V
CR16D
CR14D
SR-21 CN21
1
2
3
4
1
2
3
1
2
3
4
DV-EMG1
212
MC1
PW-2
1
2
3
4
5
6
1
2
3
4
5
6
DV-ACIN1
203
204
E
L
N
FG
+
-
CP5
+24B7
G24B7
+24B
G24B
213
CR1
CR2
CABLE PARTS NO.
A
C
E
D
B
A
B
C
D
E
1-833-285-11
1-829-454-11
1-833-401-11
1-833-298-11
1-833-858-11
REF .
MC2
D10
DV-9
FROM
PARTS CONVEYOR
(FRONT, OPTION)
1
2
3
4
5
6
DV-10
FROM
PARTS CONVEYOR
(REAR, OPTION)
1
2
3
4
5
6
TO ALM-2
FORM DV-9
TO ALM-3 FORM DV-10