Schmtic_NXT_03_ - 第150页
I / F 麵 C N 2 I / F B O A R D C N 2 B C B C N 6 P R E V I O U S I / F B O A R D B C B C N 7 I / F « C N 2 9 I / F B O A R D C N 2 9 B C B C N 9 2 M ^ I / F 2 M B A S E I / F B C B C N 1 2 2 IVK - 遞 2 M B A S E P O W E R …


I
/
F
麵
CN
2
I
/
F
BOARD
CN
2
BCBCN
6
PREVIOUS
I
/
F
BOARD
BCBCN
7
I
/
F
«
CN
29
I
/
F
BOARD
CN
29
BCBCN
9
2
M
^
I
/
F
2
M
BASE
I
/
F
BCBCN
12
2
IVK
-
遞
2
M
BASE
POWER
BCBCN
1
X
012
+
24
VME
+
24
VM
2
A
1
R
100
2
X
013
2
GM
2
GM
2
GM
A
2
S
100
X
0
U
+
24
VM
2
3
3
M
153
B
3
3
B
1
T
100
4
+
24
VM
2
4
Mil
10
4
X
012
4
GM
B
2
M
181
+
24
VM
5
5
GM
5 5
X
013
5
6
+
24
-
VM
2
6
Mil
11
6
X
0
U
6
GM
CPU
BOX
電源
CPU
BOX
POWER
BCBCN
4
+
24
VM
5
7
GM
7
M
171
7
後工程心
$
7
-
〕
工
-
又麵
NEXT
I
/
F
BOARD
BCBCN
8
8
+
24
-
VM
5
8
Ml
74
8
GM
M
175
9
GM
9
9
FAN
1
AL
R
101
10
+
24
VM
5
1 0
1 0
FAN
2
AL
2
S
101
+
24
VME
FAN
3
AL
3
GM
12 12
+
24
VM
4
2
GM
12
FAN
4
AL
BOARD
VACUUM
PUMP
BCBCN
3
13 13
X
012
3
14
14
X
013
4
FAN
1
15
15
X
0
U
5
BCBCN
10
16 16
6
R
101
+
24
VM
2
17 17
2
5101
18 18
2
GM
3
T
101
4
3
FAN
1
AL
2
M
^
-
XI
/
F
2
M
BASE
I
/
F
BCBCN
5
PARTS
VACUUM
PUMP
BCBCN
2
FAN
2
BCBCN
11
+
24
VM
2
GM
+
24
-
VM
5
R
101
+
24
VMB
3
2
GM
2
S
101
4
GM
3
FAN
4
AL
3
T
101
4
NAME
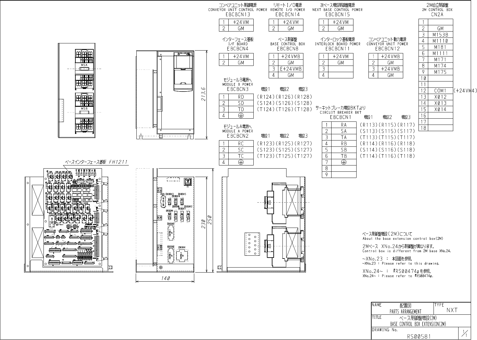
端子板結線図
TERMINAL
DIAGRAM
TYPE
NXT
TITLE
2
IVK
-
又制御盤
2
M
BASE
CONTROL
BOX
DRAWING
No
.
%
RS
00572

二外制御
■
原
CONVEYOR
UNIT
CONTROL
POWER
REMOTE
I
/
O
POWER
EBCBCN
13
次又増設制繼源
NEXT
BASE
CONTROL
POWER
EBCBCN
15
2
M
自立制御盤
2
M
CONTROL
BOX
CN
2
A
U
石
-
卜
I
/
O
電源
EBCBCN
14
1
+
24
VM
1
+
24
VM
1
+
24
VM
2
GM
2
GM
2
GM
2
GM
3
M
153
B
心夕
m
麵
I
/
F
BOARD
EBCBCN
4
《
-
又制御盤
BASE
CONTROL
BOX
EBCBCN
8
心夕
-
□
、
夕夕基板看源
INTERLOCK
BOARD
POWER
EBCBCN
1 1
]
>
^
;
P
:
Z
二
W
卜動力
l
'
源
CONVEYOR
UNIT
POWER
EBCBCN
12
4
Ml
110
5
M
181
I
田
H
田
I
6
Mini
1
+
24
VM
+
24
VMB
+
24
VM
+
24
VMB
ml
7
M
171
2
GM
2
GM
2
GM
2
GM
Ml
74
8
3
E
+
24
VMB
3
3
+
24
VMB
-
-
9
M
175
4
4
4
GM GM
10
MODULE
B
POWER
EBCBCN
3
増設
1
E
_
鑑
2
鑑
3
(
+
24
Vlv
4
)
12
C
0
M
1
(
R
124
)
(
R
126
) (
R
128
)
(
S
124
)
(
S
126
) (
S
128
)
(
T
124
)
(
T
126
) (
T
128
)
RD
13
X
012
2
SD
14
X
013
廿
-
牛外
〕
V
-
力驗
BKTcW
CIRCUIT
BREAKER
BKT
EBCBCN
1
ftsi
X
0
U
MSB
3
TD
15
^
T
~
~
T
^
w
A
16
鑑
2
纖
3
17
(
R
113
)
(
R
115
) (
R
117
)
(
Sm
) (
S
115
) (
S
1
17
)
(
T
113
)
(
T
115
) (
T
117
)
(
R
114
)
(
R
116
)
(
R
118
)
(
SIU
)
(
S
116
) (
SI
18
)
(
T
114
)
(
T
116
) (
T
118
)
RA
mm
MODULE
A
POWER
EBCBCN
2
増設彳
増設
2
増設
3
1
I
RC
|
(
R
123
)
(
R
125
)
(
R
127
)
2
~
SC
(
S
123
)
(
S
125
)
(
S
127
)
3
~
TC
(
T
123
) (
T
125
) (
T
127
)
18
2
SA
-
f
|
l
3
TA
4
RB
5
SB
6
TB
wy
夕
-
y
工
-
m
板
FHJ
2
U
A
1
8
。
!
讎靈恩
。
9
®
|
|
o
3
二
—
°
m
'
Lyi
^
T
'
m
ii
'
niin
'
f
%
IL
^
I
iiTh
o
x
-
;
(
制
Wl
設
(
2
M
)
(
:
OLVC
o
o
About
the
base
extension
control
box
(
2
M
)
o
o
o
13
O
-
L
IS
:
o
o
Control
box
is
different
from
2
M
base
XNo
.
24
-
.
o
o
XNo
.
23
:
本図面纖
XNo
.
23
:
Please
refer
to
this
drawing
.
o
H
El
XNo
.
24
:
RS
00474
纖
。
XNo
.
24
:
Please
refer
to
RS
00474
J
•
140
NAME
TYPE
配置図
NXT
PARTS
ARRANGEMENT
TITLE
又制
Wi
設
⑽
BASE
CONTROL
BOX
[
XTENSIQN
(
2
M
)
DRAWING
No
.
X
RS
00581