Schmtic_NXT_03_ - 第81页
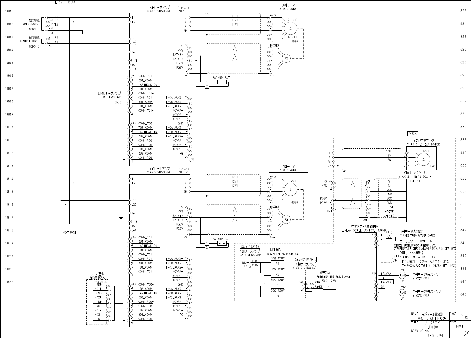
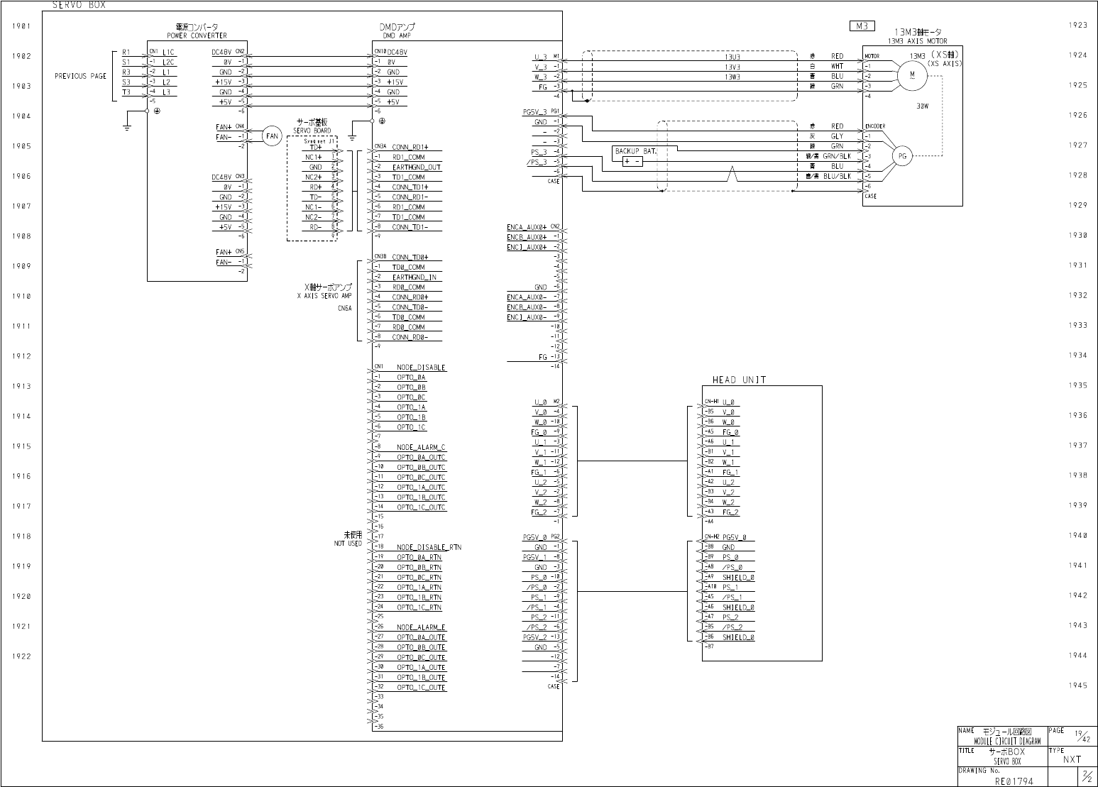
S L R V O B O X 1923 M 3 DMD 7 > ^ DMD AMP 190 I 電源 ] : > 八 - 夕 POWER CONVERTER 13 M 斑 - 夕 13 M 3 AXIS MOTOR CN 1 Lie DC 48 V ⑽ 丄 ^ CN 10 DC 48 V R 1 ( X S 軸 ) ( XS AXIS ) 1924 赤 RED 1902 13 M 3 V I . MOTOR U 3 13 …

SLKVG
BOX
X
軸 石
-
夕
X
AXIS
MOTOR
xm
-
t
:
yyy
X
AXIS
SERVO
AMP
(
11
SA
1
)
N
1
/
1 1
1823
180
I
f
J
2
R
3
'
MOTOR
1 1
U
1
LI
V
W
<
>
動力福
POWER
SOURCE
MCBCNI
5
(
HMD
S
3
1
1
V
1
L
2
1824
1802
-
3
T
3
1 1
W
1
M
-
B
1
-
2
㊉
<
>
-
B
2
1
825
制御看源
CONTROL
POWER
1803
M
1
/
11
Ji
R
1
-
5
L
1
C
100
W
-
6
SI
L
2
C
PS
CN
2
-
2
ENCODER
MCBCN
17
A
a
八
1826
1804
-
5
/
PS
O
®
-
D
:
-
6
BAT
(
+
)
PG
BAT
(
-
)
-
3
丄
-
3
61
/
+
1827
1805
PG
5
V
B
2
PG
0
V
5
-
2
1828
1806
CN
6
A
C
0
NN
—
RD
1
+
CASE CASE
BACKUP
BAT
.
RD
1
C
0
MM
EARTHGND
OUT
2
1829
18 07
-
3
TD
1
—
C
0
MM
Dm
^
-
ir
:
7
yy
DMD
SERVO
AMP
C
0
NN
TD
1
+
ENCA
一
AUX
0
+
CN
4
C
0
NN
RD
1
-
i
1830
18 08
RD
1
C
0
MM
ENCB
AUX
0
+
CN
3
B
TDUCOMM
ENCI
AUX
0
+
XCVRA
+
-
3
C
0
NN
—
TD
1
183
1
18 09
XCVRB
+
XCVRC
+
CN
6
B
CONN
_
TD
0
+
18 32
18
10
TD
0
COMM
ENCA
AUX
0
-
EARTHGND
IN
ENCB
AUX
0
-
\
ms
\
-
3
ENCI
_
AUX
0
-
'
i
RD
0
—
COMM
18 33
丫軸
UZPt
-
夕
Y
AXIS
LINEAR
MOTOR
18
11
-
4
XCVRA
-
-
10
CONN
RD
0
+
-
5
XCVRB
-
-
l
上
CONN
—
TD
0
-
-
6
XCVRC
-
TD
0
COMM
12
M
1
12
U
1
18 34
18 12
U
?
-
7
FG
-
13
RD
0
COMM
12
V
1
V
$
-
14
-
8
CONN
—
RD
0
-
v
CASE
12
W
1
W
-
9
18 35
㊉
^
18 13
丫 軸 石
-
夕
Y
AXIS
MOTOR
1
KW
ym
-
jKyyy
Y
AXIS
SERVO
AMP
(
12
SA
1
)
N
1
/
12
丫 軸
u
二 儿
Y
AXIS
LINEAR
SCALE
f
'
MOTOR
12
U
1
18 36
I
8
U
LI
v
w
<
>
㊉
c
>
(
I
2
LIS
1
)
PS
CN
2
;
Y
SCALE
12
V
1
S
L
2
-
3
12
W
1
/
PS
S
/
-
2
vcc
18 37
18 15
GN D
-
5
-
9
PG
5
V
VCC
L
1
C
-
6
PG
0
V
GND
18 38
18 16
L
2
C
PS
CN
2
ENCODER
+
TEST
A
A
-
5
-
5
CA
/
PS
-
TEST
々
㊉
-
6
-
6
BATC
+
)
SHIELD
18 39
18 17
3
C
PG
-
3
BAT
(
-
)
CASE
-
臟卸麵
LI NE AR
SCALE
CONTROL
BOARD
B
2
PG
0
V
1
840
1818
丫赃
-
夕
S
)
l
碼
S
Y
AXIS
TEMPERATURE
CHECK
(
Rl
)
NEXT
PAGE
-
2
Hwi
~
l
CN
6
A
CONN
一
RD
1
+
CASE CASE
BACKUP
BAT
.
$
廿
-
$
又夕
黥検出
:
90
°
C
黥賴
:
8
S
#
C
)
(
TEMPERATURE
CHECK
ALARM
:
96
TC
ALARM
0
FF
:
87
C
】
丫 軸 夕 離 碼
S
,
2
T
1
Y
AXIS
TEMPERATURE
CHECK
K
型熱電対
(
75
-
AI
^
U
0
°
C
)
THERMOCOUPLE
TYPE
K
(
ALARM
SET
140
*
0
THERMISTOR
RD
1
C
0
MM
1841
1819
-
2
EARTHGND
OUT
SGDS
-
10
A
71
A
2
回生抵抗
REGENERATING
RESISTANCE
50
Q
120
W
-
3
TD
1
C
0
MM
Y
AXIS
SERVO
AMP
-
4
C
0
NN
TD
1
+
1
842
I
820
-
5
ENCA
_
AUX
0
+
CN
4
SGDZ
-
BS
HK
|
CONN
.
RDI
-
>
12
B
1
Bl
/
吟
-
6
RD
1
C
0
MM
ENCB
AUX
0
+
Y
AXIS
SERVO
AMP
Rl
㈣
2
B
2
ENCI
_
AUX
0
+
-
2
TDUCOMM
1843
1
82
1
50
Q
120
W
FAN
I
-
8
XCVRA
+
-
3
C
0
NN
TD
1
回生抵抗
REGENERATING
RESISTANCE
50
Q
120
W
{
FAN
)
-
廿
-
纖
SERVO
BOARD
CN
4
+
24
VAA
丫 軸 夕 冷 却
〕
Y
AXIS
FAN
1
R
2
-
9
-
4
XCVRB
+
GA
50
Q
120
W
XCVRC
+
-
5
EV
1844
1
822
Synq
net
J
2
•
CN
1
I
+
24
VAA
^
REGI
CN
6
B
CONN
_
TD
0
+
GND
-
6
RD
+
R
3
Rl
-
Bi
-
3
REG
3
GA
FAN
2
NC
1
+
TD
0
COMM
ENCA
AUX
0
-
(
FAN
)
-
50
Q
120
W
-
B
3
丫軸芒
-
夕冷印
〕
7
>
2
Y
AXIS
FAN
2
-
8
GND
I
-
2
EARTHGNDJN
ENCB
AUX
0
-
1845
R
4
-
3
-
9
NC
2
+
RD
0
—
COMM
ENCI
AUX
0
-
EV
•
6
TD
+
1
XCVRA
-
CONN
RD
0
+
-
5
CONN
—
TD
0
-
XCVRB
-
-
6
NC I
-
TD
0
—
COMM
=
Ey
:
i
_
儿回
_
MODULE
CIRCUIT
DIAGRAM
NAME
PAGE
NC
2
-
RD
0
—
COMM
%
:
8
CONN
_
RD
0
-
-
14
TD
-
TITLE
TYPE
廿
-
#
BOX
SERVO
BOX
-
9
NXT
DRAWING
No
.
%
RE
01794

SLR V OBOX
1923
M
3
DMD
7
>
^
DMD
AMP
190
I
電源
]
:
>
八
-
夕
POWER
CONVERTER
13
M
斑
-
夕
13
M
3
AXIS
MOTOR
CN
1
Lie
DC
48
V
⑽
丄
^
CN
10
DC
48
V
R
1
(
XS
軸
)
(
XS
AXIS
)
1924
赤
RED
1902
13
M
3
VI
.
MOTOR
U
3
13
U
3
SI
L
2
C
0
V
0
V
白
WHT
V
」
13
V
3
R
3
4
c
2
L
1
GND
-
2
-
2
GND
M
裔
PREVIOUS
PAGE
BLU
-
2
-
2
W
3
13
W
3
+
15
V
-
3
+
15
V
GND
丄
—
+
5
V
S
3
L
2
1
925
1903
緑
GRN
FG
_
3
l
-
3
T
3
L
3
GND
-
4
-
4
-
5
+
5
V
-
5
I
30
W
々
㊉
-
6
-
6
P G I
PG
5
V
」
1926
1904
■
6
®
GND
赤
RED
FAN
+
CN
4
^
ENCODER
SERVO
BOARD
FAN
「
灰
GLY
Synq
net
J
1
■
TD
+
1927
1905
緑
GRN
-
2
-
2
CONN
—
RDH
BACKUP
BAT
.
-
4
PS
_
3
8
/
黒
GRN
/
BLK
PG
-
3
NC
1
+
RD
1
C
0
MM
-
5
/
PS
一
3
青
BLU
-
4
GND
EARTHGND
OUT
-
6
1928
1906
i
/
I
BLU
/
BLK
DC
48
V
CN
3
-
3
-
5
NC
2
+
TD
1
C
0
MM
CASE
-
4
-
6
0
V
RD
+
C
0
NN
TDH
-
5
CASE
GND
TD
-
C
0
NN
—
RD
1
-
1929
1907
+
I
5
V
NC
1
RD
1
C
0
MM
NC
2
-
TDI
C
0
MM
GND
ENCA
_
AUX
0
-
l
CN
2
+
5
V
C
0
NN
TD
1
-
1 930
1 90 8
ENCB
AUX
0
+
ENCI
AUX
0
+
FAN
+
CN
5
CN
3
B
CONN
—
TD
0
+
-
3
>
5
FAN
-
193
1
1 90 9
-
4
TD
0
COMM
-
5
EARTHGND
IN
X
AXIS
SERVO
AMP
RD
0
—
COMM
1 93 2
1 9
1 0
CONN
RD
0
+
-
8
CONN
TD
0
-
ENCB
—
AUX
0
-
CN
6
A
-
6
ENCI
_
AUX
0
-
'
I
1 93 3
1 9
1 1
-
10
RD
0
COMM
-
8
CONN
RD
0
-
-
9
-
12
1 93 4
1 91 2
F G
-
1 3
-
14
N
0
DE
DISABLE
OPTO
0
A
HE A D
UN I T
1 93 5
19
13
-
2
OPTO
0
B
OPTO
0
C
CN
-
Hl
y
_
0
U
—
0
◦
PT
0
—
1
A
L
-
B
5
V
一
0
V
0
1 93 6
I
9
U
◦
PT
0
1
B
W
0
W
0
0
PT
0
1
C
-
A
5
FG
一
0
FG
一
0
-
A
6
U
1
U
1
1 93 7
1 91 5
-
8
NODE
一
ALARM
C
-
Bl
V
」
V
」
-
9
OPTO
0
A
OUTC
W
_
1
-
12
-
B
2
W
1
0
-
6
-
A
1
FG
_
1
FG
1
1 93 8
1 91 6
OPTO
0
C
OUTC
U
2
-
A
2
u
_
2
-
12
1
OPTO
1
A
OUTC
-
2
V
一
2
V
一
2
-
13
OPTO
1
B
—
OUTC
W
2
W
2
1 93 9
1 91 7
-
14
0
PTQ
1
C
0
UTC
A
3
FG
—
2
FG
—
2
-
15
-
A
4
-
16
未使用
NOT
USED
1
940
1 918
-
17
CN
-
H
2
PG
5
V
0
PG
5
V
一
0
-
18
二昍
GND
NODE
_
DISABLE
_
RTN
GND
-
B
9
OPTO
0
A
RTN
PG
5
V
1
PS
0
1 94 1
1 91 9
-
20
OPTO
0
B
RTN
/
PS
-
0
-
21
PS
_
0
-
10
OPTO
0
C
RTN
SHIELDJ
-
22
-
2
10
OPTO
1
A
RTN
/
PS
一
0
PS
1
1
942
I
920
PS
」
4
-
23
J
^
A
5
/
PS
」
SHIELD
-
0
OPTO
1
B
RTN
-
24
-
4
-
A
6
OPTO
1
C
RTN
/
PS
」
-
25
PS
_
2
/
PS
_
2
-
6
-
A
7
PS
—
2
1 943
I
9 2
1
B
5
/
P S
2
-
27
PG
5
V
_
2
-
13
-
B
6
OPTO
0
A
OUTE
SHIELD
0
-
28
-
5
-
B
7
OPTO
0
B
OUTE
GND
1 944
1
9 22
-
29
-
12
OPTO
0
C
OUTE
-
30
0
PTQ
1
A
0
UTE
-
14
-
31
0
PTQ
1
B
0
UTE
1 945
-
32
CASE
OPTO
1
C
OUTE
-
33
-
34
-
35
-
36
儿回
_
MODULE
CIRCUIT
DIAGRAM
NAME
PAGE
%
TITLE
TYPE
廿
-
#
BOX
SERVO
BOX
NX T
DRAWING
No
.
%
RE
01794

—
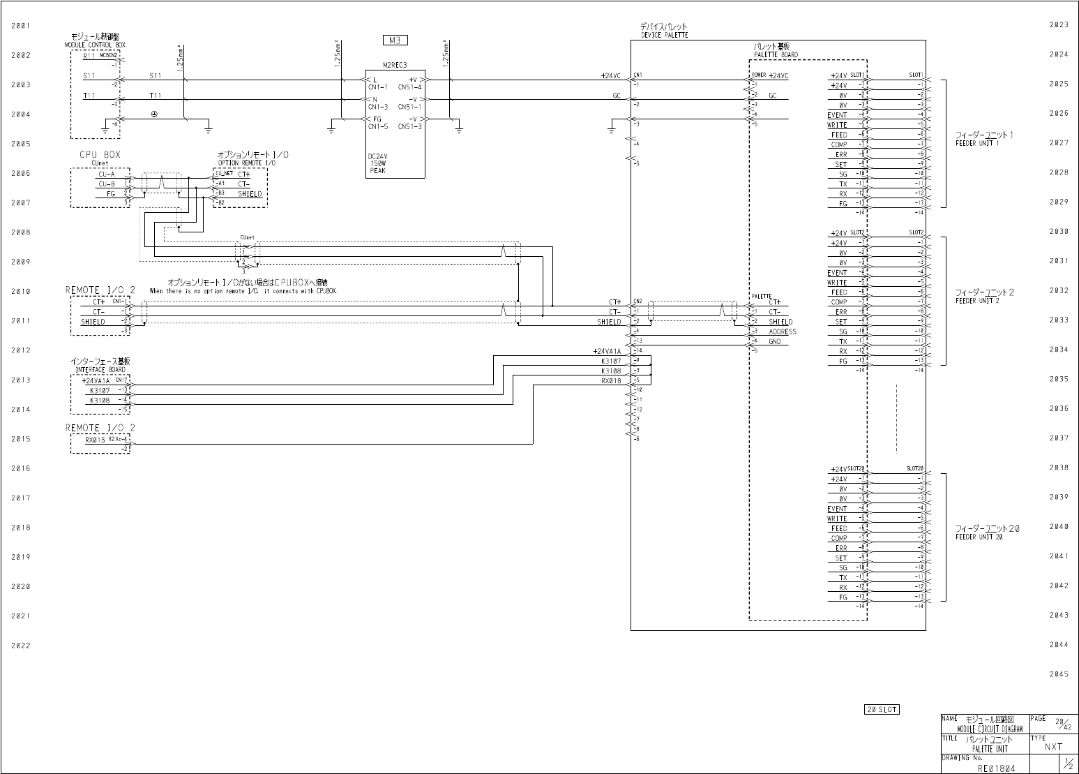
儿制御盤
MODULE
CONTROL
BOX
f
"
'
RlT
'
MCBCI
S
11
Til
M
3
E
C
\
1
M
2
REC
3
+
V
CN
1
-
1
CN
51
-
4
<
<
N
CN
1
-
3
CN
51
-
1
-
V
<
<
FG
-
V
>
>
CN
1
-
5
CN
51
-
3
才
,
开
_
卜
I
/
O
OPTION
REMOTE
I
/
O
E
""
CT
-
T
"""
!
CPU
BOX
CUnet
DC
24
V
I
50
W
PEAK
CU
-
A
A
CU
-
B
FG
SHIELD
3
r
-
y
CUnet
A
才为
ay
宂
-
卜
I
/
Om
«
JCPUBOX
/
\
gS
REMOTE
I
/
O
2
When
there
is
no
option
remote
1
/
0
.
it
connects
with
CPUBOX
.
CT
+
CN
1
-
1
.
A
CT
-
SHIELD
心 夕 工
-
又 麵
INTERFACE
BOARD
+
24
VA
1
A
K
3107
K
3108
-
>
1
rr
-
>
5
:
RE
_
M
0
TE
_
I
/
0
2
:
R X
0 1
B
R
2
Xc
-
2023
DEVICE
PALETTE
八
V
外麵
PALETTE
BOARD
2024
^
CNI
POWER
+
24
VC
SLOT
卜
SLOT
I
+
24
VC
+
24
-
V
<
;
2025
+
24
V
-
2
GC
GC
0
V
-
2
-
3
0
V
2026
EVENT
J T T
^
WRITE
>
r
-
夕
-
]
二外
1
FEEDER
UNIT
1
-
6
2027
1
-
8
ERR
-
9
SET
2028
-
10
SG
TX
-
12
RX
2029
FG
2030
+
24
V
SL
0
T
2
^
SL
0
T
2
+
24
V
-
2
0
V
203
1
0
V
EVENT
WRITE
2032
-
夕
-
2
二外
2
FEEDER
UNIT
2
FEED
PALETTE
CT
+
CT
+
-
8
CT
-
CT
-
ERR
2033
-
9
SHIELD
SHIELD
SET
-
3
-
10
ADDRESS
SG
-
13
GND
TX
2034
-
14
-
12
+
24
VA
1
A
K
3107
K
3108
RX
01
B
RX
-
13
FG
-
14
2 03 5
-
10
-
11
2 03 6
-
12
2 03 7
20 0
I
200 2
2 00 3
2 00 4
2 00 5
2 00 6
2 00 7
2 00 8
2 00 9
20
1
0
2 01
1
2 0 1 2
2 01 3
2 0
1 4
2 015
2 03 8
20
16
SLOT
20
^
0
V
-
V
SLOT
20
+
24
V
+
24
V
-
2
2 03 9
2 0
1
7
-
3
0
V
EVENT
WRITE
2 040
刃
-
夕
_
]
二外
20
FEEDER
UNIT
20
20
1
8
COMP
IE
2 041
2 0
1
9
S ET
-
10
S G
T X
2 04 2
20 20
R X
-
1 2
-
12
-
13
F G
-
14
2 04 3
20 2
1
2044
-
20 22
2 04 5
2 0
S LO T
儿回
_
MODULE
CIRCUIT
DIAGRAM
NAME
PAGE
%
TITLE
TYPE
八
V
外
:
Z
二外
PALETTE
UNIT
NXT
DRAWING
No
.
RE
01804
ziLnCNl
ziLnCSJ
'
㊉