00191024-01 - 第466页
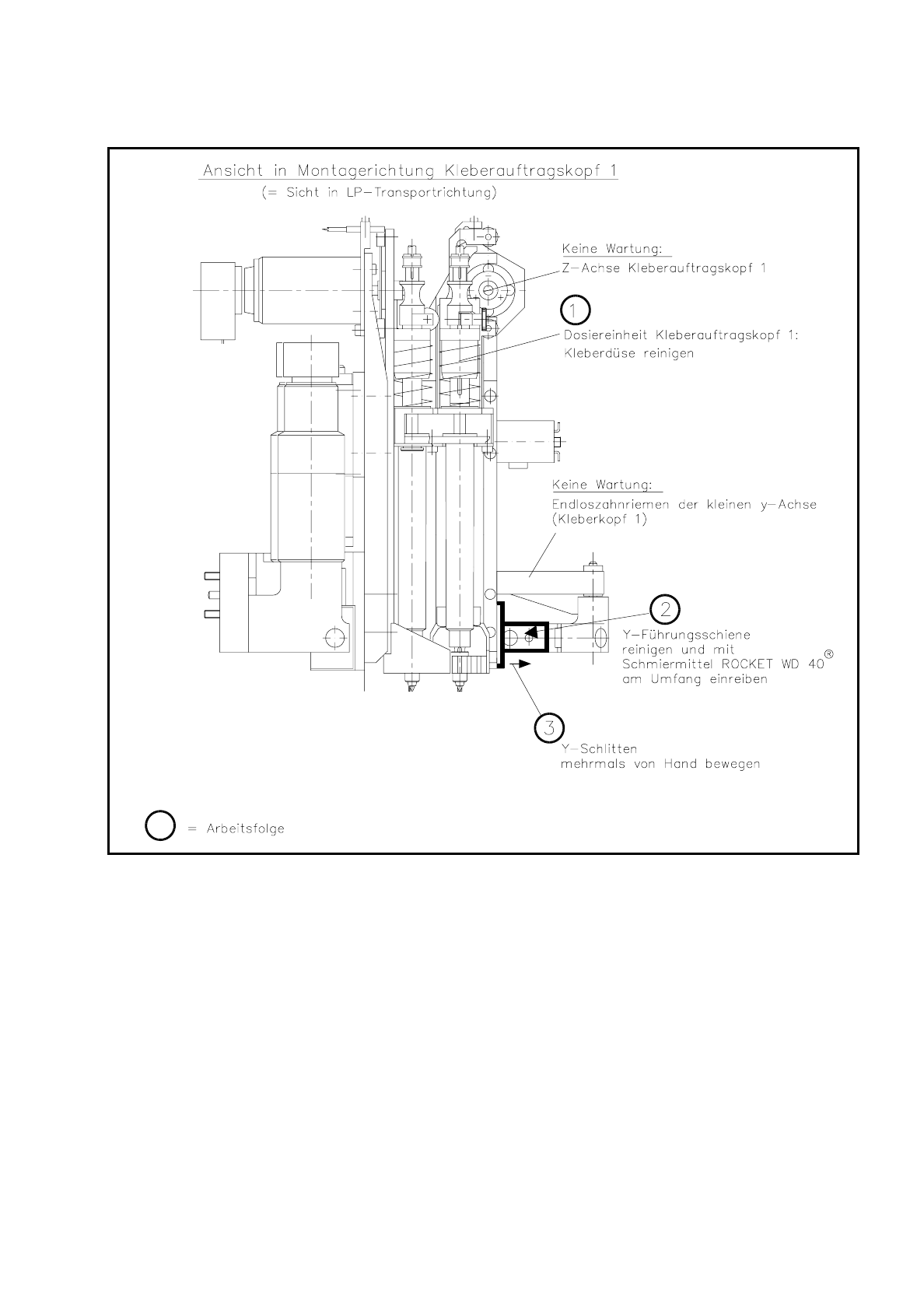
Betriebsanleitung SIPLACE 80 S/F/G 9 Instandhaltung Ausgabe 07/97 ab Softwareversion SR.010.xx 9. 9 Kleberauftragskopf 1, 2 und 3 9 - 10 3 Abb. 9.9.3 Wartungsarbeiten am Kleberauftragskopf 1

9 Instandhaltung Betriebsanleitung SIPLACE 80 S/F/G
9.9 Kleberauftragskopf 1, 2 und 3 Ausgabe 07/97 ab Softwareversion SR.010.xx
9 - 102
●
Fahren Sie den Kleberauftragskopf in die Serviceposition. Siehe Einzelfunktionen Abschnitt 10.7.4.1 die-
ser Betriebsanleitung
GEFAHR
OOO
Schalten Sie den Automaten am Hauptschalter aus und trennen Sie ihn von der Netzversorgung.
●
Öffnen Sie die entsprechende Schutzhaube/-türe.
●
Reinigen Sie die Führungsschiene der kleinen x-Achse (Kleberkopf 2) mit einem trockenen, sauberen
Tuch.
●
Bringen Sie mit einem neuen Tuch eine geringe Menge ROCKET WD 40
am Umfang der Schiene auf
(siehe Abb. 9.9.2). Bewegen Sie den Schlitten von Hand und entfernen Sie überschüssiges öl.
●
Warten Sie anschließend in gleicher Weise die Führungsschiene der kleinen y-Achse des Kleberkopfs 1
(siehe Abb. 9.9.3).
Der Kleberkopf 3 besitzt keine zu wartende Führungsschiene.

Betriebsanleitung SIPLACE 80 S/F/G 9 Instandhaltung
Ausgabe 07/97 ab Softwareversion SR.010.xx 9.9 Kleberauftragskopf 1, 2 und 3
9 - 103
Abb. 9.9.3 Wartungsarbeiten am Kleberauftragskopf 1

9 Instandhaltung Betriebsanleitung SIPLACE 80 S/F/G
9.9 Kleberauftragskopf 1, 2 und 3 Ausgabe 07/97 ab Softwareversion SR.010.xx
9 - 104
9.9.3 Klebstoffkartuschen ausbauen und Kleberdüsen reinigen
9.9.3.1 Klebstoffkartuschen ausbauen und Kleberdüse abnehmen
Abb. 9.9.4 Klebstoffkartusche ausbauen und Kleberdüse abnehmen (für 10ml Kartusche)
Legende zu Abb. 9.9.4 Arbeitsfolge zu Abb. 9.9.4
HINWEIS:
Die Abstandshalter der Kleberköpfe 1 und 2 sind identisch
1 Konische Kleberdüse
2 Abstandshalter
3 Federring
4 Zylindrische Kleberdüse
5 Abstandshalter
6 Kleberdüse mit Abstandshalter
A Rändelschraube lösen
B An Kartusche gegenhalten
C Dosiereinheit hier fassen und nach oben ziehen
D Kartusche etwas ausschwenken und nach oben entnehmen
E Abstandshalter unter Drehung nach unten abziehen
F Kleberdüse abschrauben