AX501维修手册 - 第303页

4022 593 52701/1 × 1 󱯉 08.01 AX-301/501  AX-3/5 B.91 B05.fm 󱠁 B5 󱞵  B5.5.5.2 带集成变压器的供电单元,电路图  102 󳎛󱍙󱈊 󱈊󲫄

100%1 / 802
󱠁
B5
󱞵
󱯉
4022 593 52701/1
×
1
B.90 AX-301/501 AX-3/5 08.01

B05.fm
变压器,电路图
󱍙󰐄󰼝󰐁
󱈊󱍙󲶽󱈊󲫄󲣌󲚖 B5.5.5.2
󰿁󱍙󳕎󱏃󲣌󲚖󱈊󲫄
101 A-series
󱈊󲫄
4022-592-49162-130
4022 593 52701/1
×
1
󱯉
08.01 AX-301/501 AX-3/5 B.91
B05.fm
󱠁
B5
󱞵

B5.5.5.2 带集成变压器的供电单元,电路图
102
󳎛󱍙󱈊󱈊󲫄
󱠁
B5
󱞵
󱯉
4022 593 52701/1
×
1
B.92 AX-301/501 AX-3/5 08.01

B05.fm
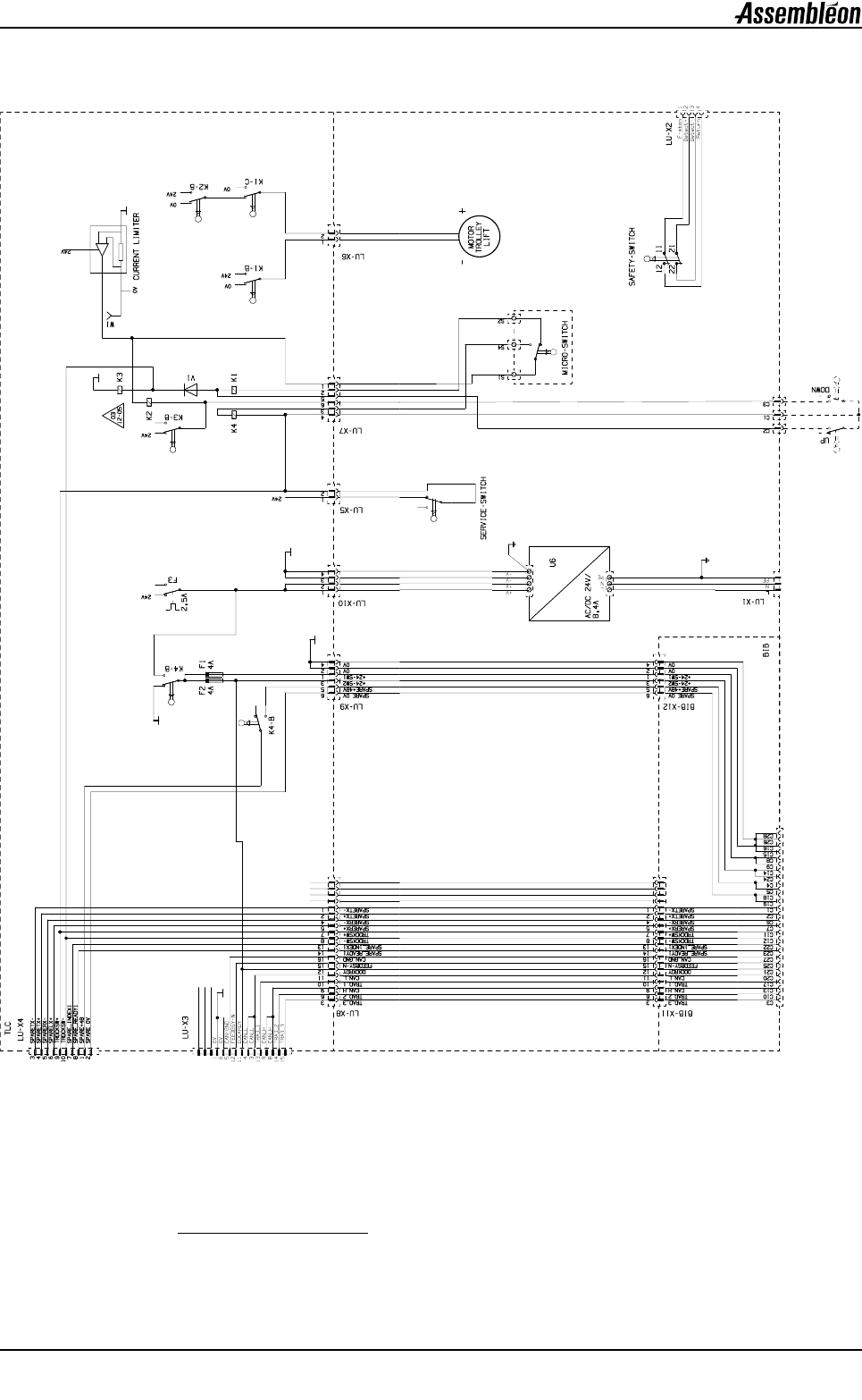
B5.5.6 料车升降单元 4022-510-8300X,电路图
103
󰉮󲰻󳌢
4022-510-8300X
󱈊󲫄
4022-510-830022-13001