AX501维修手册 - 第59页
4022 593 52701/1 × 1 08.01 AX- 301/501 AX-3/5 A.55 A04.fm A4 A4.4.3 数据通信 33 34 接口 通信接口,协议 CAN SVS CAN SVS CAN CAN CA…

A4
4022 593 52701/1
×
1
A.54 AX-301/501 AX-3/5 08.01
A04.fm
A5.5.3
31
32
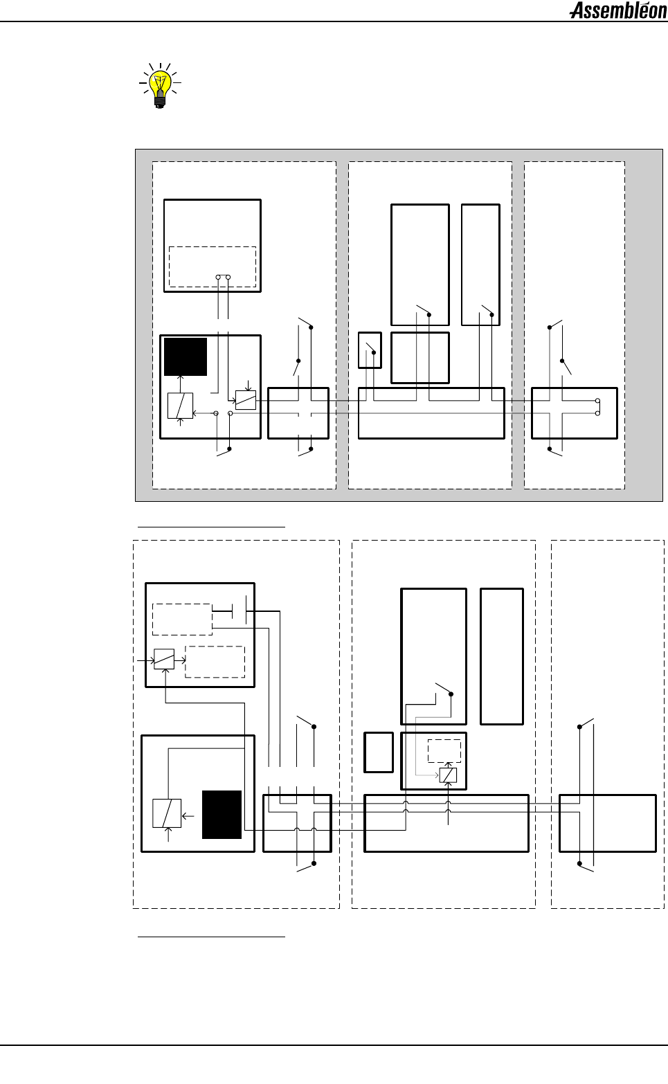
ᑻ䚼
᭭䔺छ䰡
ऩܗ
䌈⠛ࠊ఼
䌈㺙ᴎẄ㞖
㋻ᗹذℶᣝ䪂
Ⲫᵓⱘ
ᅝܼ㘨䫕
Ӵ䗕ࠊ఼
ࡼষᵓ
䜡⬉䔼
ᎺӴ䗕䚼 েӴ䗕䚼
ᅝܼⲪ
ᅝܼ㘨䫕 ᅝܼ㘨䫕
䜡⬉䔼
㋻ᗹذℶᣝ䪂
㋻ᗹذℶᣝ䪂
㋻ᗹذℶᣝ䪂
Ⲫᵓⱘ
ᅝܼ㘨䫕
䜡⬉䔼
ݙ䚼
ᅝܼ䖲
㟇Ԏ᳡
⬉⑤
ਃ⫼⬉䏃
Ⳍԡֱᡸ
㒻⬉఼
24 V/DC
䚼ᅝܼ䖲
կ⬉ऩܗ
ᅝܼ
㒻⬉఼
24 V/DC
ᑻ䚼
᭭䔺छ䰡
ऩܗ
䌈⠛ࠊ఼
䌈㺙ᴎẄ㞖
㋻ᗹذℶᣝ䪂
Ӵ䗕ࠊ఼
䜡⬉䔼
ᎺӴ䗕䚼 েӴ䗕䚼
ᅝܼⲪ
䜡⬉䔼
㋻ᗹذℶᣝ䪂
㋻ᗹذℶᣝ䪂
㋻ᗹذℶᣝ䪂
կ⬉ऩܗ
ࡼࠊ
Y
䜡⬉䔼
24 V/DC
24 V/DC
㞾ᅝܼ
Ӵᛳ⬉䏃
ࡼ
ࠊ
ᅝܼ㘨䫕
ࡼࠊ
XǃZǃRIǃRO
ᅝܼ
㒻⬉఼
24 V/DC

4022 593 52701/1
×
1
08.01 AX-301/501 AX-3/5 A.55
A04.fm
A4
A4.4.3 数据通信
33
34
接口 通信接口,协议
CAN
SVS
CAN
SVS
CAN
CAN
CAN
CAN
ᣒপ
䌈⠛ഫ 1
ᣒপ
䌈⠛ഫ 12
ᣒপ
䌈⠛ഫ
2
ᣒ
প
䌈⠛ഫ
11
᭭䔺ᦦῑ 1 ᭭䔺ᦦῑ 2
᭄ߚ䜡䔼䘧
ഄഔ
ഄഔ
ഄഔ
ഄഔ
ഄഔ
ഄഔ
䲚㒓఼ˋѸᤶ఼
SVS Pro
ࠊ఼
CAN
ᴵⷕ䯙䇏఼
キ⚍
SVS Pro
RS232
Ӵ䗕ࠊ఼
ᴵⷕ䯙䇏఼
⬉䏃ᵓ䆚߿ⷕ
RS232
ҹ㔥
ҹ㔥
ҹ㔥
ҹ㔥
ҹ㔥
ҹ㔥
䚼㔥㒰
ҹ㔥
CAN व
І㸠ッষ
VGA ッষ
⫼᠋⬠䴶
ᑻ
CAN
ഫ
VGA
RS232
CAN
I/O
♃᷅
㾺ᩌሣ
ᏺ㾺ᩌⲬⱘ
䬂Ⲭ
䚼㔥㒰व
ݙ䚼㔥㒰䖲
㋏㒳ࠊ఼
ࠊ఼⬉䏃ᵓ
PS/2
PS/2
᭭䔺ᦦῑ 3

A4
4022 593 52701/1
×
1
A.56 AX-301/501 AX-3/5 08.01
A04.fm
A4.4.4 通信线路的说明
RS 232 CAN OR
A4.4.4.1 本地网络
LAN
LAN TCP-IP
35
A4.4.4.2 TCP/IP
TCP/IP TCP/IP LAN
IP
IP IP
IP
IP
A4.4.4.3 IP 地址
IP
130.144.46.137
䌈⠛
ࠊ఼
㔥㒰व
䌈⠛
ࠊ఼
㔥㒰व
䌈⠛
ࠊ఼
3 ো
䌈⠛ഫ
㔥㒰व
䌈⠛
ࠊ఼
㔥㒰व
Ӵ䗕
ࠊ఼
㔥㒰व
䲚㒓఼ˋ
Ѹᤶ఼
䲚㒓఼ˋ
Ѹᤶ఼
AX
ࠊ఼
㔥㒰व
ݙ䚼㔥㒰
AX ݙ䚼㔥㒰
㔥㒰व
䚼㔥㒰
䚼㔥㒰
AQ-1
ࠊ఼
㔥㒰व
EES
Ꮉॖ LANˋ
Ѧ㘨㔥䖲
㔥㒰व
㔥㒰व
AX0019.eps
1 ো
䌈⠛ഫ
2 ো
䌈⠛ഫ
X ো
䌈⠛ഫ