AX501维修手册 - 第668页
D8 4022 593 52701/1 × 1 D.120 AX-301/501, AX- 3/5 08.01 D08.fm D8.3.9.1 真空发生单元,电磁阀或真空发生单元电路板更换 1. 前提 • D8.3.9 2. 将电路板从阀门外壳上分离 • 1 2 3 �…

4022 593 52701/1
×
1
08.01 AX-301/501, AX-3/5 D.119
D08.fm
D8
D8.3.9 真空发生单元,更换
1. 前提
注: 无
•
•
• Y
2. 卸下空气控制器
• X6 2
• 3
• 1
注: X
•
3. 安装空气控制器。
•
•
1
• X6 2
3
ESD ᬣᛳ⬉ᄤܗӊ
䴭⬉ᬒ⬉ৃ㛑Ӯᇍ⬉ᄤܗӊ䗴៤ᤳണDŽ
ESD ᅝܼ⦃๗ϟᎹ䞛⫼ ESD 乘䰆ᮑDŽ
ᇣᖗ
1
2
3

D8
4022 593 52701/1
×
1
D.120 AX-301/501, AX-3/5 08.01
D08.fm
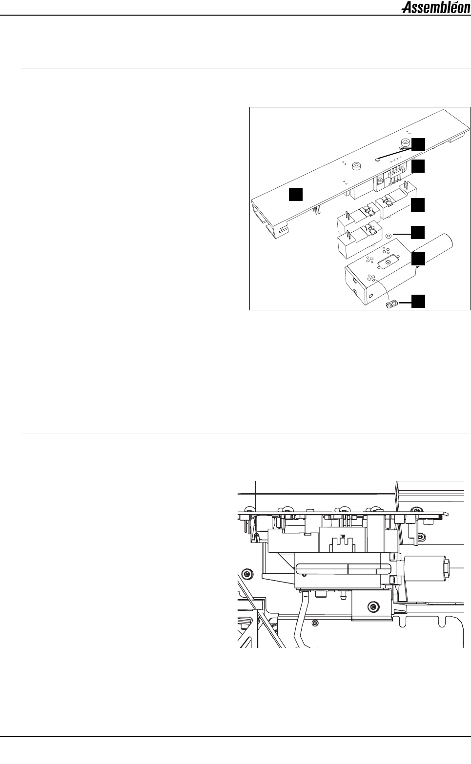
D8.3.9.1 真空发生单元,电磁阀或真空发生单元电路板更换
1. 前提
• D8.3.9
2. 将电路板从阀门外壳上分离
• 1
2 3 6
4
• O 5
3. 更换电路板和/或阀门
• 4 2
6
• 7
注:
4. 安装电路板和阀门外壳
•
注: 安装不正确可能会损坏引脚;确保所有引脚
都位于它们的插槽中。
阀门外壳上的引脚极易弯曲;请使用镊子将
引脚引入它们的插槽中。
5. 完成
• D8.3.9
• D5.3.1.2
D8.3.9.2 空气 控制器,消音器更换
1. 前提
•
2. 更换消音器
•
• 1
•
Blower valve
Clean valve
Vacuum valve
1
2
3
4
5
6
7
1
