AX501维修手册 - 第759页
4022 593 52711/1 × 1 08.01 A-series E.59 E08.fm E8 E8.3.3 供料器接口电气板,更换 1. 前提 • E8.3.7 • E8.3.9 2. 卸下供料器接口电气板 • • …

4022 593 52711/1 × 1
08.01 A-series E.59
E08.fm
E8
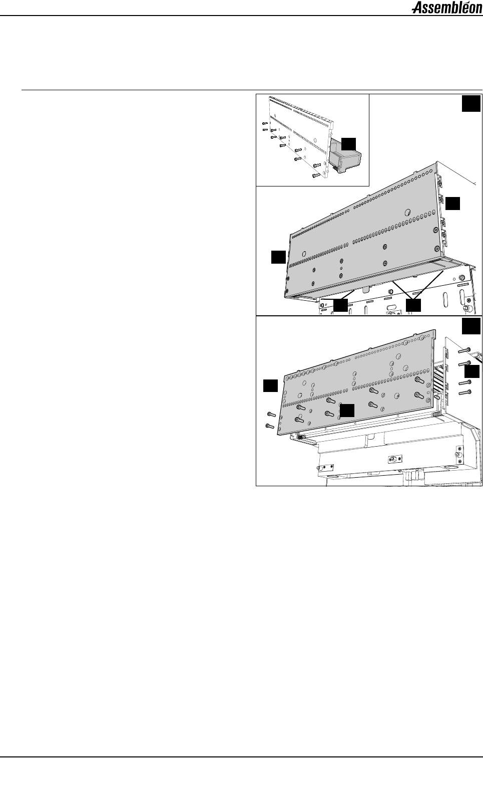
E8.3.3 供料器接口电气板,更换
1. 前提
• E8.3.7
• E8.3.9
2. 卸下供料器接口电气板
•
•
3. 安装供料器接口电气板
•
E8.3.4 接触针,更换
1. 更换接触针
•
•
E8.3.5 料车接口电气板,更换
1. 更换料车接口电气板
• 4
•
•

E8
4022 593 52711/1 × 1
E.60 A-series 08.01
E08.fm
E8.3.6 供料器接口前板,更换
1. 卸下供料器接口前板
A B
A
• 1 2 × 4
2 4
•
• 310
B
• 1 2 × 4
2 10
•
2. 安装供料器接口前板
•
3. 确保精度
注:
•
• 1 3
• 2
1
1
2 2
3
A
1
1
2
B
