JM-10_维修调整要领书.pdf - 第137页

维修调整要领 书 13-1 左示标记粘贴处表示高电压部有触电危险。 为了防止突然的起动造成的事故, 请关掉电源之后再进行操作。 13 电气部 13 -1 .电气部的布局 13-1-1 .各部的名称 1. 图像用监视器 2. 信号灯 3. LCD 监视器 4. HOD 〔选购 品〕 5. 操作盘 〔前: LCD 监视器、 START 开关、 STOP 开关、 OR IGIN 开关、紧急 停止开关〕 〔后:紧急停止 开关〕 6. 贴装头装置…

100%1 / 188
维修调整要领书
12-42
10) 安装中间,进行状态以条形图显示。
11) 安装结束后,显示安装结束画面。
点击[Finish]按钮,结束安装。
12) 请按照「12-3-3-2 C 驱动器的更新操作」进行 C 驱动器的更新。
注意
如果不进行 C 驱动器的更新操作就重新启动,则由于 C 驱动器的保护功能,安装信息从 OS
消失,系统不能正常地启动,故请注意。
请在系统重新启动之前,重新开启 12-3-3-3 病毒对策软件。
维修调整要领
13-1
左示标记粘贴处表示高电压部有触电危险。
为了防止突然的起动造成的事故,请关掉电源之后再进行操作。
13
电气部
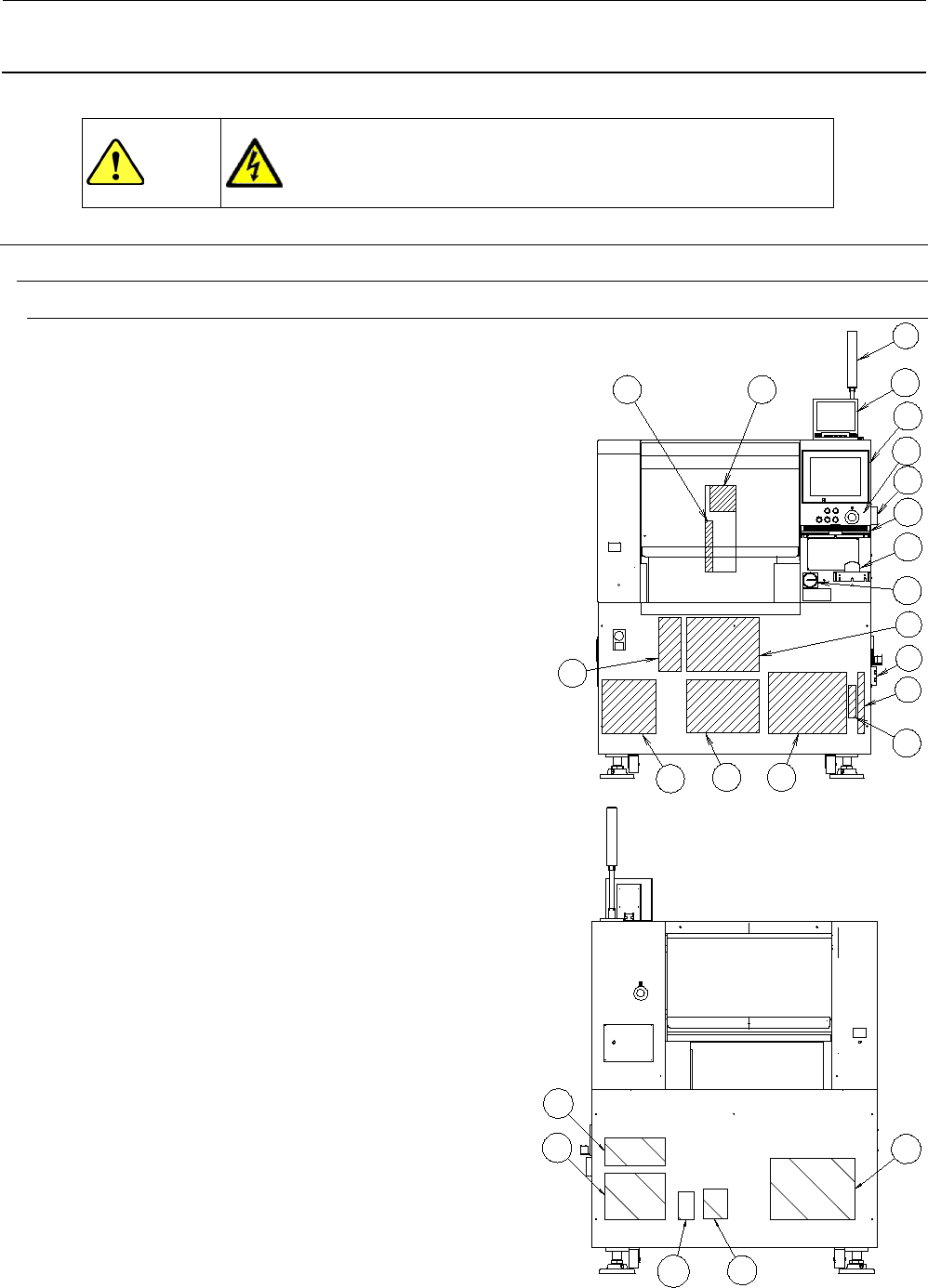
13-1.电气部的布局
13-1-1.各部的名称
1. 图像用监视器
2. 信号灯
3. LCD 监视器
4. HOD〔选购品〕
5. 操作盘
〔前:LCD 监视器、START 开关、
STOP 开关、ORIGIN 开关、紧急停止开关〕
〔后:紧急停止开关〕
6. 贴装头装置
〔贴装头主基板组、贴装头中转基板组、
Z/θ 轴伺服放大器 选购品: HMS
7. OCC、垂直照明基板角度照明基板
8. 鼠标
9. 键盘
10. 电源开关
11. SSD
12. 控制器
CPU 接口、定位板IEEE1394A 板、
IO MI 基板IP-X5 基板〕
13. XY AC 伺服放大器
14. 真空泵
15. USB 端子
16. BASE 基板
17. 传送用 5 相步进电动机驱动
〔传送电动机 L 用,传送电动机中央用,传送电动机 R 用〕
18. DRV-IO 电路板
19. 电源变压器
20. 端子台
21. 电源装置
22. 断流器
23. 安全电路装置(仅限 EN 机)
危险
13-1-1-1 主体正面图
13-1-1-2 主体背面图
1
3
5
6
7
8
9
10
11
12
13
14
15
2
16
17
4
18
19
21
20
22
23
维修调整要领
13-2
13-2.底座上部的布
13-2-1.各部的名称
1. X 轴电动机
2. Y 轴电动机
3. 传送 L 电动机
4. 传送中央电动机
5. 传送 R 电动机
6. IEEE1394 中继器(中转用基板)
7. ATC 装置
8. VCS 装置
9. CAL BLO
10. LIGHT CTRL 基板
13-2-1-1 底座上面图