NPM-DX Mechanical - 第39页
Ref No. Remarks R 1 Q'ty 1-F 本体部:NPM-DX Main Body :NPM-D X イラスト No. Part No. 品 名 品 番 数量 R 2 パーツリスト Kit No. キット品番 Kit Name キット名称 MTKA003361AA Part Nam e 備 考 セク ション No . PARTS LIST Section No. R 3 BRACKET 4 1 MTPB0030…

1-F
本体部:NPM-DX
Main Body:NPM-DX
パーツレイアウト
Kit No.
キット品番
Kit Name
キット名称
MTKA003361AA
セクションNo.
PARTS LAYOUT
Section No.
--
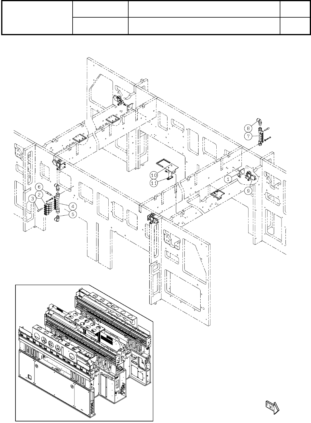
S11
( KMTKA003361AA-17-6 )

Ref
No.
Remarks R
1
Q'ty
1-F
本体部:NPM-DX
Main Body:NPM-DX
イラスト
No.
Part No.
品 名品 番 数量
R
2
パーツリスト
Kit No.
キット品番
Kit Name
キット名称
MTKA003361AA
Part Name
備 考
セクションNo.
PARTS LIST
Section No.
R
3
BRACKET
4
1 MTPB003057AB
JOINT
5
2 N510066640AA KQ2X06-08A
JOINT
2
3 KXF09ZBAA00 KQ2P-06
MANIFOLD
1
4 KXF02A2AA00 KM12-08-03-10
JOINT
2
5 N510066667AA KQ2L12-03AS
JOINT
3
6 KXF0DZKRA00 KQ2P-08
MANIFOLD
1
7 KXF02A0AA00 KM12-06-02-10
JOINT
1
8 N510066656AA KQ2L12-02AS
VALVE
4
9 MTNP000379AA VQZ1121-5LOZ1-M5-F-X561-Q
BRACKET
4
10 MTPB007525AC
CABLE-SUPPORT
4
11 N510067565AA LFCS-30
S12
--
( KMTKA003361AA-17-6 )

1-G
本体部:NPM-DX
Main Body:NPM-DX
パーツレイアウト
Kit No.
キット品番
Kit Name
キット名称
MTKA003361AA
セクションNo.
PARTS LAYOUT
Section No.
--
S13
( KMTKA003361AA-17-7 )