TR6DNR_使用说明书 - 第42页
TR6 Series 使用说 明书 4-6 4-4 消耗品的更换 4-4-1 贴装头吸附器 请将一字螺丝刀等嵌入 吸附器 、 和连接器 之间( a 部),把吸附器 一点一点朝↓方向撬,同时 将 其拔出。 4-4-2 滑梭吸附器 ( 1 ) 小吸附 器 请将扁嘴钳等插 入吸附器 的孔中,夹 住吸附器的身体慢慢地 拔出。 ( 2 ) 大吸附 器 请在选择了大吸 附器的状态下拆下前 端的黑色橡胶 部分。 橡胶端面发亮的 一面是…

TR6 Series 使用说明书
4-5
4-3-5
传送带装置
(1) 清洗
• 请确认基板检测传感器、输送带上没有灰尘、磨损等。
• 请擦掉输送宽度调整导轴、滚珠螺杆的灰尘、油污等
(2) 加油
请给输送宽度调整导轴、滚珠螺杆薄薄地涂敷润滑油。
输送宽度调整导轴
输送宽度调整滚珠螺杆
输送带
基板检测传感器

TR6 Series 使用说明书
4-6
4-4
消耗品的更换
4-4-1
贴装头吸附器
请将一字螺丝刀等嵌入吸附器、和连接器之间(a 部),把吸附器一点一点朝↓方向撬,同时将
其拔出。
4-4-2
滑梭吸附器
(1) 小吸附器
请将扁嘴钳等插入吸附器的孔中,夹住吸附器的身体慢慢地拔出。
(2) 大吸附器
请在选择了大吸附器的状态下拆下前端的黑色橡胶部分。
橡胶端面发亮的一面是抛光面,更换时请将其安装为上侧。
吸附器(小) 吸附器(大)
a 部
贴装头 No.1 吸附器
贴装头 No.2 吸附器
吸附器连接器

TR6 Series 使用说明书
4-7
4-4-3
滤芯
请卸下护罩,然后拆下过滤器部分的旋钮,更换过滤器。
4-4-4
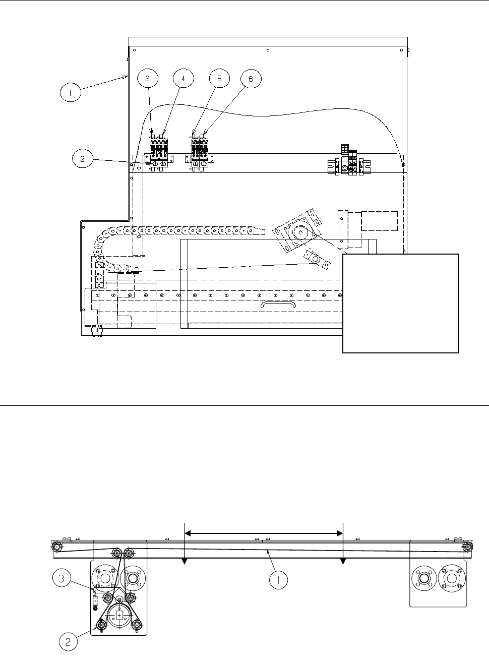
输送带
(1) 请松开输送皮带轮。
(2) 请把夹送轮托架稍微抬起,拆下输送带。
(3) 在不对新的输送带加张力的状态下,在 200mm 的位置上做上记号。
(4) 安装新的输送带,以输送皮带轮调整张力。这时,请调整到第(3)步所做的记号变为 201~
202mm。
护罩
过滤器部分的旋钮
滑梭 L 弹射器
滑梭 R 弹射器
贴装头 No.2 弹射器
贴装头 No.1 弹射器
200mm → 201~202mm
输送带
输送皮带轮
夹送轮托架