PTS-NXT3c-07 - 第149页
M6 IIIc-BED 6/ M6 IIIc-ベッド 6/ 2UGZBE000160 No. Drg.No. & Code No. QTY Description Rating Remarks 番号 図番 & コード番 号 個数 品名 規格 備考 75 2MGTBC02 4201 2 BKT, DUCT BKT ダクト 76 K5258M 4 SCREW, HEX SOCKET BUTTON 小ネジ 六角穴ボタン M0…

E1E1
E2E2
AA
a1a1
a1a1
a1a1
a2a2
a2a2
a2a2
interchangeable parts
t=1.5
t=2
t=2.5
a2a2
E1E1 E2E2
a1a1
㸨㹌㹖㹒㹋㸴㹄ࠉ㸯㸰㸱㸲㸳㸴㸨
AA
DD
DD
FF
OPTION
㑅ᢥ㒊ရ
104
106
107
110
110
110
110
110
110
112
113
114
117
118
117
118
130
131
132
132
133
133
134
134
135
135
136
137
136
137
138
138
139
100
108
109
109
111
112
113
114
101
139.1
140
141
142
143
144
145
146
146
160
160
160
160
160
160
161
161
147
147
148
148
105
106
107
115
116
102
119
103
103
111
120
121
122
121
196
193
194
195
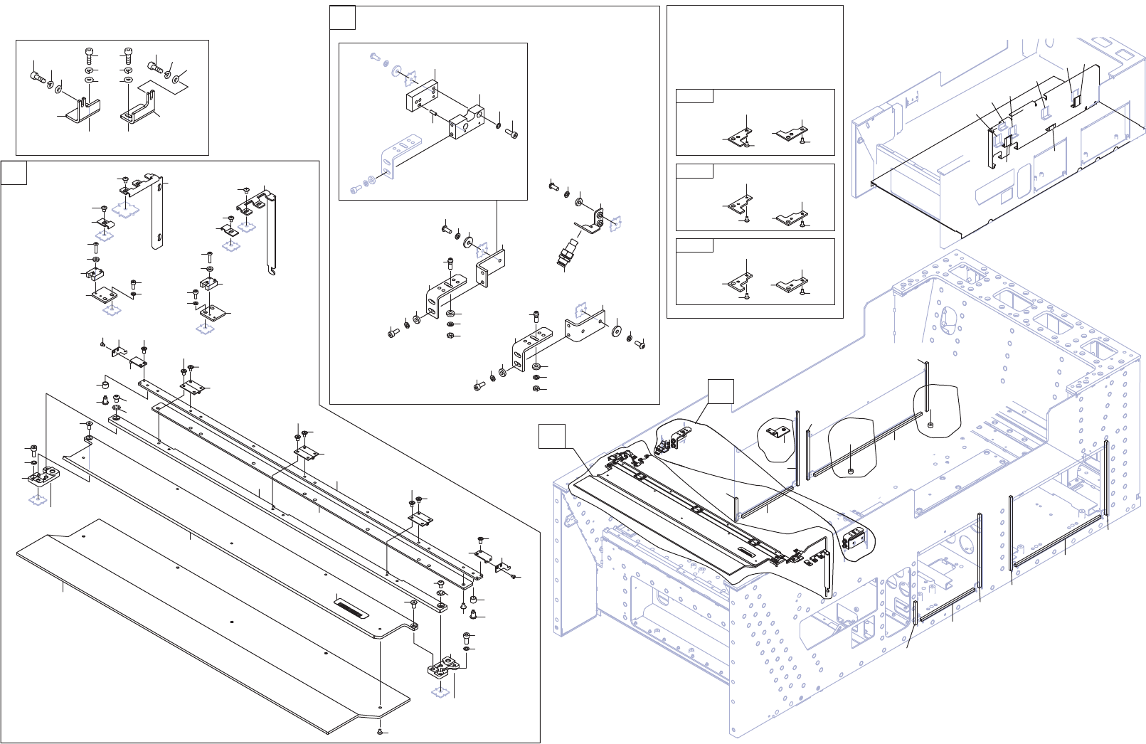
75
76
77
79
80
81
82
83
84
85
86
87
90
75
78.1
77
76
79
80
81
82
83
84
85
86
78.1
175
175
175
175
175
175
175
175
175
175
175
175
122
197
198
196
197
198
191
192
139
139.1
88
89
89.1
92
93
94
95
96
2UGZBE000160
0,,,F࣋ࢵࢻ
M6 IIIc-BED 6/
148
PTS- NXT3c- 07

M6 IIIc-BED 6/
M6 IIIc-ベッド 6/
2UGZBE000160
No. Drg.No. & Code No. QTY Description Rating Remarks
番号 図番 & コード番号 個数 品名 規格 備考
75 2MGTBC024201 2 BKT, DUCT
BKT ダクト
76 K5258M 4 SCREW, HEX SOCKET BUTTON
小ネジ 六角穴ボタン
M04X010(3カ シロ)
77 W1106D 4 WASHER, LOCK
ワッシャ スプリング
4M/M(3カ シロ)
78.1 2MGTBC023700 4 WASHER
ワッシャ
79 2MGTBC024302 2 BKT, DUCT
BKT ダクト
80 H5426L 4 BOLT, HEX SOCKET
ボルト 六角穴
M04X010(3カ シロ)
81 W1106D 4 WASHER, LOCK
ワッシャ スプリング
4M/M(3カ シロ)
82 W1043C 4 WASHER, FLAT
ワッシャ 平
4W- 4(3カシロ)
83 N1079X 2 NUT, HEX
ナット 六角
M04 3シュ(3カ シロ)
84 W1106D 2 WASHER, LOCK
ワッシャ スプリング
4M/M(3カ シロ)
85 W1043C 2 WASHER, FLAT
ワッシャ 平
4W- 4(3カシロ)
86 PM07085 2 PIN, ROUND
ピン 丸
87 2MGTBC017600 1 BKT, PIPING
BKT 配管
88 K5258M 2 SCREW, HEX SOCKET BUTTON
小ネジ 六角穴ボタン
M04X010(3カ シロ)
89 W1106D 2 WASHER, LOCK
ワッシャ スプリング
4M/M(3カ シロ)
89.1 W1108S 2 WASHER, FLAT
ワッシャ 平
4M/MX0.8X9(1W-4)(3カシロ)
90 S5026S 1 SOCKET
ソケット
KK2S-06E
92 2MGTBC026000 1 BLOCK
ブロック
93 H2092Y 2 PIN, PARALLEL
ピン 平行
φ03X10 A種(m6)
94 H5426M 2 BOLT, HEX SOCKET
ボルト 六角穴
M04X012(3カ シロ)
95 W1011A 2 WASHER, CONICAL
ワッシャ 皿
M-4-L
96 2MGTBC026100 1 BLOCK
ブロック
100 2MGTBE003201 1 COVER
カバー
101 K5357L 5 SCREW, HEX SOCKET COUNTERSUNK
小ネジ 六角穴皿
M03X006(3カ シロ)
102 2MGKPB003801 1 BKT, COVER
BKT カバー
103 K64283 2 SCREW, HEX SOCKET COUNTERSUNK
小ネジ 六角穴皿
M04X008(3カシロ)
104 2MGTBE008301 1 BLOCK
ブロック
105 2MGTBE008401 1 BLOCK
ブロック
106 H5426L 2 BOLT, HEX SOCKET
ボルト 六角穴
M04X010(3カ シロ)
107 W1011A 2 WASHER, CONICAL
ワッシャ 皿
M-4-L
108 2MGKPB003001 1 BAR
バー
109 T21259 3 HINGE
蝶番
TH-TM-84SUS
110 H66418 12 BOLT
ボルト
M3x5 SUS スリムヘッドスクリュ-(22YY23)
111 2MGKPB002000 2 BKT, SW
BKT SW
112 H5506G 4 BOLT
ボルト
CBSTSE2-4
113 2MGKPA008100 2 DOG, SW
ドッグ SW
114 2MGTBC033301 4 BOLT, HEX SOCKET
ボルト 六角穴
115 2MGKPB002802 1 COVER
カバー
116 H66418 4 BOLT
ボルト
M3x5 SUS スリムヘッドスクリュ-(22YY23)
117 2MGLBE005200 2 BOLT
ボルト
118 2MGLBE004901 2 SPRING
スプリング
119 2MGZBE000402 1 SEAL, BAR CODE
シール バーコード
unit serial number
120 2MGKPB003101 1 BKT, COVER
BKT カバー
121 K5258K 2 SCREW, HEX SOCKET BUTTON
小ネジ 六角穴ボタン
M04X006(3カ シロ)
122 W1011A 2 WASHER, CONICAL
ワッシャ 皿
M-4-L
130 2MGZBC002403 1 RETAINER, WIRING
押え 配線
131 2MGTBC014202 1 RETAINER, WIRING
押え 配線
132 K51710 4 SCREW, C/R TRUSS
小ネジ 十穴トラス
M03X005(3カ シロ)
133 2MGKPB001100 2 RETAINER, WIRING
押え 配線
134 K51710 2 SCREW, C/R TRUSS
小ネジ 十穴トラス
M03X005(3カ シロ)
135 2MGKPA004302 2 PLATE, SENSOR
プレート センサ
149
PTS- NXT3c- 07

M6 IIIc-BED 6/
M6 IIIc-ベッド 6/
2UGZBE000160
No. Drg.No. & Code No. QTY Description Rating Remarks
番号 図番 & コード番号 個数 品名 規格 備考
136 H54252 4 BOLT, HEX SOCKET
ボルト 六角穴
M03X008(3カ シロ)
137 W1106C 4 WASHER, LOCK
ワッシャ スプリング
3M/M(3カ シロ)
138 S69080 2 SENSOR, PHOTO
センサ フォト
PM-U25P
139 K65292 4 SCREW, C/R PAN
小ネジ 十穴鍋
M02X008 0バン1シュ(3カ シロ)
139.1 W1108A 4 WASHER, FLAT
ワッシャ 平
2M/MX0.3X4.3(3カシロ)
140 2MGTBE012001 1 SHIM
シム
INT, t=1.5
141 2MGTBE012301 1 SHIM
シム
INT, t=1.5
142 2MGTBE012101 1 SHIM
シム
INT, t=2.0
143 2MGTBE012401 1 SHIM
シム
INT, t=2.0
144 2MGTBE012201 1 SHIM
シム
INT, t=2.5
145 2MGTBE012501 1 SHIM
シム
INT, t=2.5
146 K5357L 4 SCREW, HEX SOCKET COUNTERSUNK
小ネジ 六角穴皿
M03X006(3カ シロ)
147 K5357L 4 SCREW, HEX SOCKET COUNTERSUNK
小ネジ 六角穴皿
M03X006(3カ シロ)
148 K5357L 4 SCREW, HEX SOCKET COUNTERSUNK
小ネジ 六角穴皿
M03X006(3カ シロ)
160 2MGTBZ003002 1 TAPE, SEAL
テープ シール
161 2MGTBZ002900 1 TAPE, SEAL
テープ シール
175 H67175 1 BRUSH
ブラシ
LC6060-3PA GY 300R
191 2MGZBE005101 1 BKT
BKT
192 2MGZBE005201 1 BKT
BKT
193 H5426M 2 BOLT, HEX SOCKET
ボルト 六角穴
M04X012(3カ シロ)
194 W1106D 2 WASHER, LOCK
ワッシャ スプリング
4M/M(3カ シロ)
195 W1043C 2 WASHER, FLAT
ワッシャ 平
4W- 4(3カシロ)
196 H54253 2 BOLT, HEX SOCKET
ボルト 六角穴
M03X010(3カ シロ)
197 W1106C 2 WASHER, LOCK
ワッシャ スプリング
3M/M(3カ シロ)
198 W1108D 2 WASHER, FLAT
ワッシャ 平
4W-3(3カ シロ)
150
PTS- NXT3c- 07