PTS-NXT3c-07 - 第271页
このページはブランクページです This page is intentionally blank. 此页是空白页 2 7 1 P TS - N X T3 c - 0 7

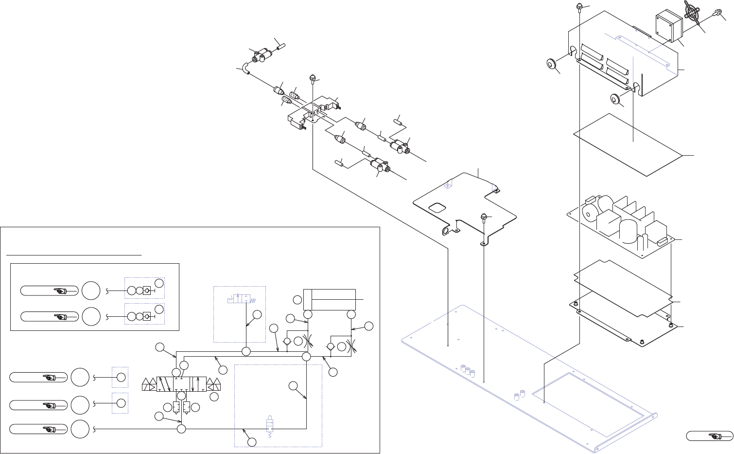
M6 IIIc-DEVICE BASE 1/
M6 IIIc-デバイスベース 1/
2UGZPB000118
No. Drg.No. & Code No. QTY Description Rating Remarks
番号 図番 & コード番号 個数 品名 規格 備考
59 S2101G 1 CYLINDER, AIR
シリンダ エアー
CDQSD25-40DCM-M9BL
60 Y60189 2 UNION, ELBOW
ユニオン エルボ
KQ2L04-M5N
61 2MGTPB002700 1 TUBE
チューブ
62 2MGTPB003700 1 TUBE
チューブ
63 K69285 2 CONTROLLER, SPEED
コントローラ スピード
AS2002F-04A
64 PM87891 1 PIN, PIVOT
ピン 支点
65 S1003H 2 CIR-CLIP
サークリップ
ST-EW-6(3カ シロ)
66 2MGTPB001000 2 COLLAR
カラー
67 PM87875 1 LEVER, CLAMP
レバー クランプ
68 PM87863 1 JOINT, KNUCKLE
ジヨイント ナツクル
69 PM85961 1 PIN
ピン
70 S1003H 2 CIR-CLIP
サークリップ
ST-EW-6(3カ シロ)
71 PM87881 1 PIN, PIVOT
ピン 支点
72 S1003F 2 CIR-CLIP
サークリップ
ST-EW-4(3カ シロ)
73 PM85932 2 LINK
リンク
74 K5198D 5 SCREW, WASHER ASS'Y
小ネジ 座金組込み
M04X008 ナベセムス P3(3カシロ)
77 2MGTPB001504 1 BKT
BKT
78 2MGWWA237202 2 SOCKET, COUPLER
ソケット カプラ
79 Y60190 2 UNION, ELBOW
ユニオン エルボ
KQ2L10-02AS
80 H5426S 2 BOLT, HEX SOCKET
ボルト 六角穴
M04X018(3カ シロ)
270
PTS- NXT3c- 07
このページはブランクページです
This page is intentionally blank.
此页是空白页
271
PTS- NXT3c- 07

(P) (A)
Ref.1/
BB
AA
A,BA,B
Ref.BED
hh
ii
ff
Ref.BED
Ref.BED
hh
ii
Ref.BED
Ref.BED
Option
࢚࣮㓄⟶ᅗ
PNEUMATIC CIRCUIT DIAGRAM
φ4
φ10
R1/4
R1/4
φ10
φ10
φ10
M5
φ4
(EA)
(P)
(A)
M5
φ4
(EB)
(B)
M5
M5
M5
φ4 φ4
φ4
φ4
φ4
φ4
φ4
φ4
M
M
4
11
2
3
4
5
6
7
10
12
13
15
16
16
16
17
17
18
19
19
20
20
20
21
22
24
23
AA
ABAB
AC
AC
AC
AD
AD
AD
AD
AE
AF
AF
AG
AH
AH
AI
AI
AJ
AK
AK
AL
AL
AM
AM
AM
AN
BA
BB
BC
8
25
2UGZPB0001180,,,Fࢹࣂࢫ࣮࣋ࢫ
M6 IIIc-DEVICE BASE 2/
272
PTS- NXT3c- 07