PTS-NXT3c-07 - 第275页
M6 IIIc-DEVICE BASE 3/ M6 IIIc-デバイスベー ス 3/ 2UGZPB000118 No. Drg.No. & Code No. QTY Description Rating Remarks 番号 図番 & コード番 号 個数 品名 規格 備考 1 2MGZPB0 00101 1 CLAMP ER クランパ 2 H5426 9 2 BOL T, HEX SOCKET ボルト 六角穴 M05X…

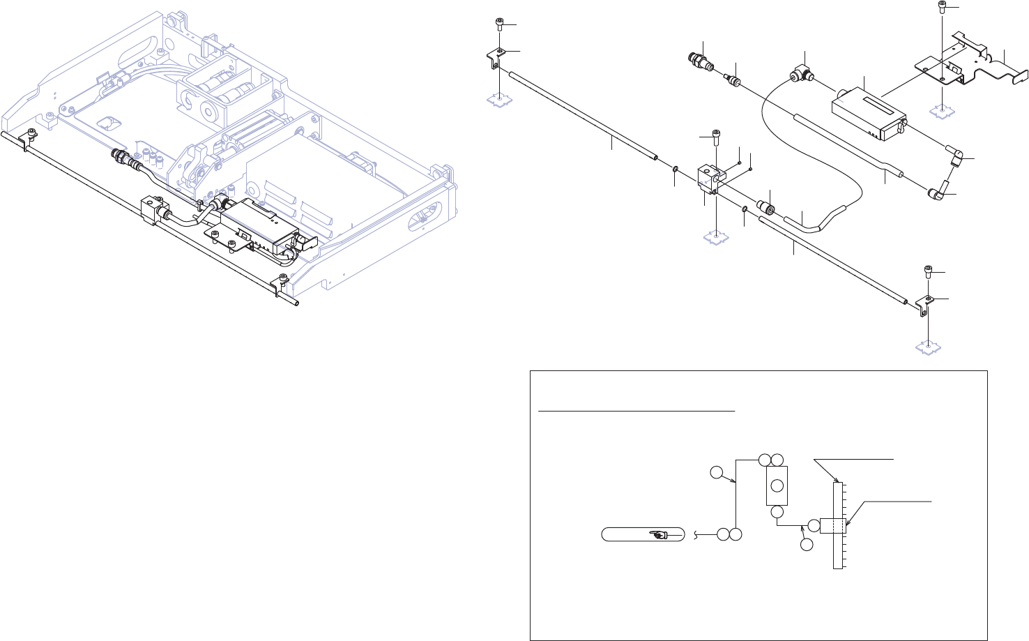
࢚࣮㓄⟶ᅗ
PNEUMATIC CIRCUIT DIAGRAM
Ref.BED
φ6
1/8
φ6
φ6
1/8
2MGZPB0002**
2MGLPB0007** x2
15
16
17
1818
22
19
2021
1
2
3
4
5
6
5
6
7
7
8
8
9
9
15
16
17
18
18
19
20
21
22
2UGZPB000118
0,,,Fࢹࣂࢫ࣮࣋ࢫ
M6 IIIc-DEVICE BASE 3/
274
PTS- NXT3c- 07

M6 IIIc-DEVICE BASE 3/
M6 IIIc-デバイスベース 3/
2UGZPB000118
No. Drg.No. & Code No. QTY Description Rating Remarks
番号 図番 & コード番号 個数 品名 規格 備考
1 2MGZPB000101 1 CLAMPER
クランパ
2 H54269 2 BOLT, HEX SOCKET
ボルト 六角穴
M05X010(3カシロ)
3 2MGZPB000201 1 MANIFOLD
マニホールド
4 H5427C 1 BOLT, HEX SOCKET
ボルト 六角穴
M05X015(3カ シロ)
5 PB0ADT1 2 BKT
BKT
6 H54269 2 BOLT, HEX SOCKET
ボルト 六角穴
M05X010(3カシロ)
7 2MGLPB000702 2 PIPE
パイプ
8 A50525 2 O RING
Oリング
C03216H0
9 N4018T 2 SCREW, HEX SOCKET SET
ネジ 六角穴止め
M03X003 ヒラサキ
15 Y60054 1 UNION, ELBOW
ユニオン エルボ
KQG2L06-01S
16 2MGZPB000500 1 TUBE
チューブ
17 S72294 1 SENSOR
センサ
IZN10E-11P06N
18 Y60200 2 UNION, ELBOW
ユニオン エルボ
KQ2L06-99A
19 2MGZPB000900 1 TUBE
チューブ
20 H3128B 1 PLUG
プラグ
KK2P-06H
21 S5026S 1 SOCKET
ソケット
KK2S-06E
22 Y60053 1 UNION, HALF
ユニオン ハーフ
KQG2S06-01S
275
PTS- NXT3c- 07

AA
AA
BB
BB
Option
1
2
2
3
4
5
13
14
16
20
20.1
21
22
23
26
26.1
27
28
29
32
33
40
40
41
42
44
48
48.1
49
50
51
54
54.1
55
56
57
60
61
68
68
69
70
71
72
73
73.1
73.1
73
74
78
80
81
82
84
85
86
12
106
110
111
112
107
108
109
113
117
117
118
119.1
119
120
121
122
123
124
124
125
125
128
129
130
131
132
133
133
134
134
125
125
124
124
114
115
116
135
17
18
19
19
18
34
35
36
45
46
47
46
47
58
59
62
63
64
31
30
29.1
57.1
77
75
76
79
83
91
92
94
99
97
104
98
101
95
102
12
100
100
13.1
41.1
110.1
141
143
144
144
145
146
142
24
25
52
53
110.2
17.1
17
17.1
29.2
45.1
45
45.1
57.2
0,,,Fࢹࣂࢫࣃࣞࢵࢺ
M3 IIIc-DEVICE PALLET 1/
(Standard) 2UGZPE000135
(With bucket) 2UGZPE000239
276
PTS- NXT3c- 07