PTS-NXT3c-07 - 第303页
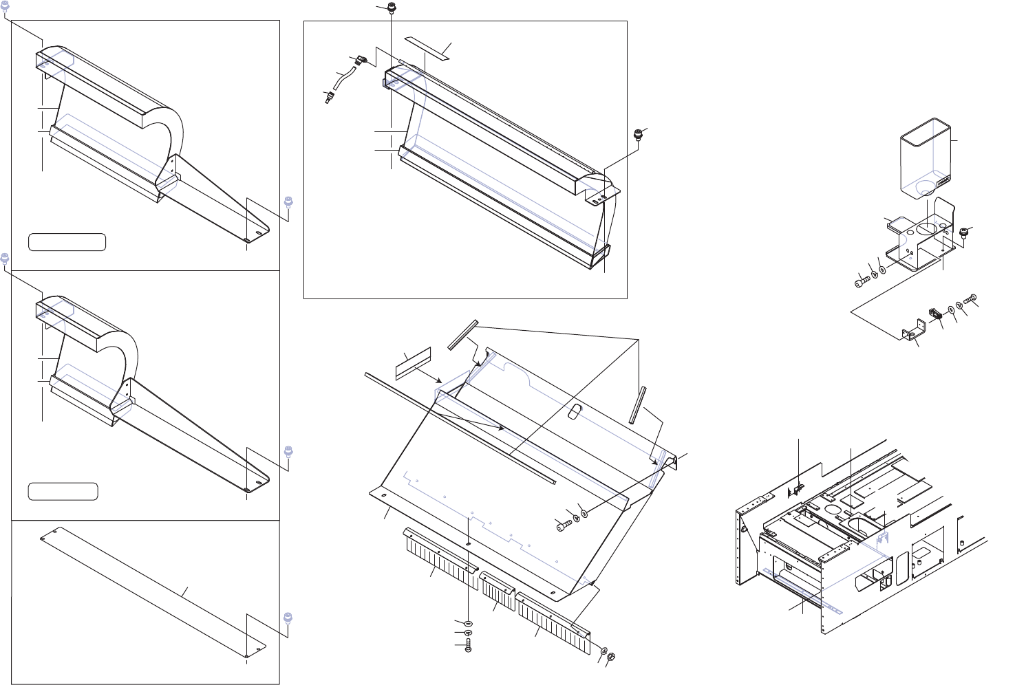
M3 IIIc-WAST E TAPE PROCESSING UNIT AT TACHMENTS M3 IIIc-残テープ処理 ユニット ダク ト 2UGZPK000109 No. Drg.No. & Code No. QTY Description Rating Remarks 番号 図番 & コード番 号 個数 品名 規格 備考 2 PB09YD 4 1 DUCT ダクト 3 PZ432 41 1 BRUSH ブラ…

EE
EE
FF
FF
GG
GG
CC
CC
CC
AA
AA
AA
HALF DUCT
11
12
13
2
3
5
6
7
8
9
25
22
26
27
28
41
32
33
34
35
36
37
38
39
40
31
47
52
53
54
55
56
57
58
59
51
21
48
24
24
14
15
M3 IIIc-WASTE TAPE PROCESSING UNIT ATTACHMENTS
0,,,Fṧࢸ࣮ࣉฎ⌮ࣘࢽࢵࢺࢲࢡࢺ
2UGZPK000109
302
PTS- NXT3c- 07

M3 IIIc-WASTE TAPE PROCESSING UNIT ATTACHMENTS
M3 IIIc-残テープ処理ユニット ダクト
2UGZPK000109
No. Drg.No. & Code No. QTY Description Rating Remarks
番号 図番 & コード番号 個数 品名 規格 備考
2 PB09YD4 1 DUCT
ダクト
3 PZ43241 1 BRUSH
ブラシ
5 N10793 3 NUT, HEX
ナット 六角
M03 P=0.5(3カシロ)
6 W1106C 3 WASHER, LOCK
ワッシャ スプリング
3M/M(3カ シロ)
7 K5258S 2 SCREW, HEX SOCKET BUTTON
小ネジ 六角穴ボタン
M04X018(3カ シロ)
8 W1106D 2 WASHER, LOCK
ワッシャ スプリング
4M/M(3カ シロ)
9 W1043C 2 WASHER, FLAT
ワッシャ 平
4W- 4(3カシロ)
11 H54241 2 BOLT, HEX SOCKET
ボルト 六角穴
M06X015(3カシロ)
12 W1106F 2 WASHER, LOCK
ワッシャ スプリング
6M/M(3カシロ)
13 W1108F 2 WASHER, FLAT
ワッシャ 平
4W-6(3カ シロ)
14 H67175 1 BRUSH
ブラシ
LC6060-3PA GY 300R
15 2MGTPK001502 1 BRUSH
ブラシ
21 2MGTPK001412 1 DUCT
ダクト
22 PS03071 1 SHEET
シート
24 H68969 4 BOLT, HEX SOCKET WASHER ASSY
ボルト 六角穴座金付
M04X008 CAPセムス P=3(3カ シロ)
25 2MGTPK002601 1 SEAL
シール
26 Y60199 1 UNION, ELBOW
ユニオン エルボ
KQ2L06-M5A
27 2MGTPK002800 1 TUBE
チューブ
28 H3128B 1 PLUG
プラグ
KK2P-06H
31 2MGKPK009801 1 BOX, REJECT
BOX NG
32 PB011T4 1 BKT, BOX
BKT BOX
33 K5198D 2 SCREW, WASHER ASS'Y
小ネジ 座金組込み
M04X008 ナベセムス P3(3カシロ)
34 2MGTPK002300 1 BKT, SENSOR
BKT センサ
35 H5426L 2 BOLT, HEX SOCKET
ボルト 六角穴
M04X010(3カ シロ)
36 W1106D 2 WASHER, LOCK
ワッシャ スプリング
4M/M(3カ シロ)
37 W1043C 2 WASHER, FLAT
ワッシャ 平
4W- 4(3カシロ)
38 S69789 1 SENSOR
センサ
AV634264-A
39 K5175Y 2 SCREW, C/R PAN
小ネジ 十穴鍋
M02X010(ステンレス)
40 W1105A 2 WASHER, LOCK
ワッシャ スプリング
2M/M(ステンレス)
41 W1107A 2 WASHER, FLAT
ワッシャ 平
2M/MX0.3X4.3(ステンレス)
47 2MGTPK009901 1 DUCT
ダクト
48 PS03081 1 SHEET
シート
51 2MGZPK000103 1 CHUTE
シュート
52 K5258L 3 SCREW, HEX SOCKET BUTTON
小ネジ 六角穴ボタン
M04X008(3カ シロ)
53 W1106D 3 WASHER, LOCK
ワッシャ スプリング
4M/M(3カ シロ)
54 PZ58211 1 BRUSH
ブラシ
55 K65003 2 SCREW, HEX SOCKET COUNTERSUNK
小ネジ 六角穴皿
M03X005(3カ シロ)
56 N1108K 2 NUT, DOMED CAP
ナット 六角袋
M03(ステンレス)
57 W1108B 2 WASHER, FLAT
ワッシャ 平
3M/MX0.5X7(3カシロ)
58 PZ58223 1 BRUSH
ブラシ
59 K65003 2
SCREW, HEX SOCKET COUNTERSUNK
小ネジ 六角穴皿
M03X005(3カ シロ)
303
PTS- NXT3c- 07

AA
AA
CC
AA
EE
EE
FF
FF
CC
AA
CC
CC
for TRAY UNIT-M (2sets)
HALF DUCT
1/3 DUCT
HH
HH
CC
22
25
26
27
28
31
32
33
34
38
39
40
41
35
36
37
2
3
3
4
5
6
7
8
9
11
12
13
15
14
47
48
21
52
53
56
24
24
M6 IIIc-WASTE TAPE PROCESSING UNIT ATTACHMENTS 1/
0,,,Fṧࢸ࣮ࣉฎ⌮ࣘࢽࢵࢺࢲࢡࢺ
2UGZPL000109
304
PTS- NXT3c- 07