PTS-NXT3c-07 - 第397页
M3 IIIc-SINGLE CONVEY OR 1/ M3 IIIc-シングルコン ベア 1/ 2UGZCA000130 No. Drg.No. & Code No. QTY Description Rating Remarks 番号 図番 & コード番 号 個数 品名 規格 備考 1 2MGZCA0 00500 1 FRAME フレーム 3 GGQC224 1 3 NUT ナット 4 2MGTCA0 09301 1…

Ref.2/
AA
BB
Ref.2/
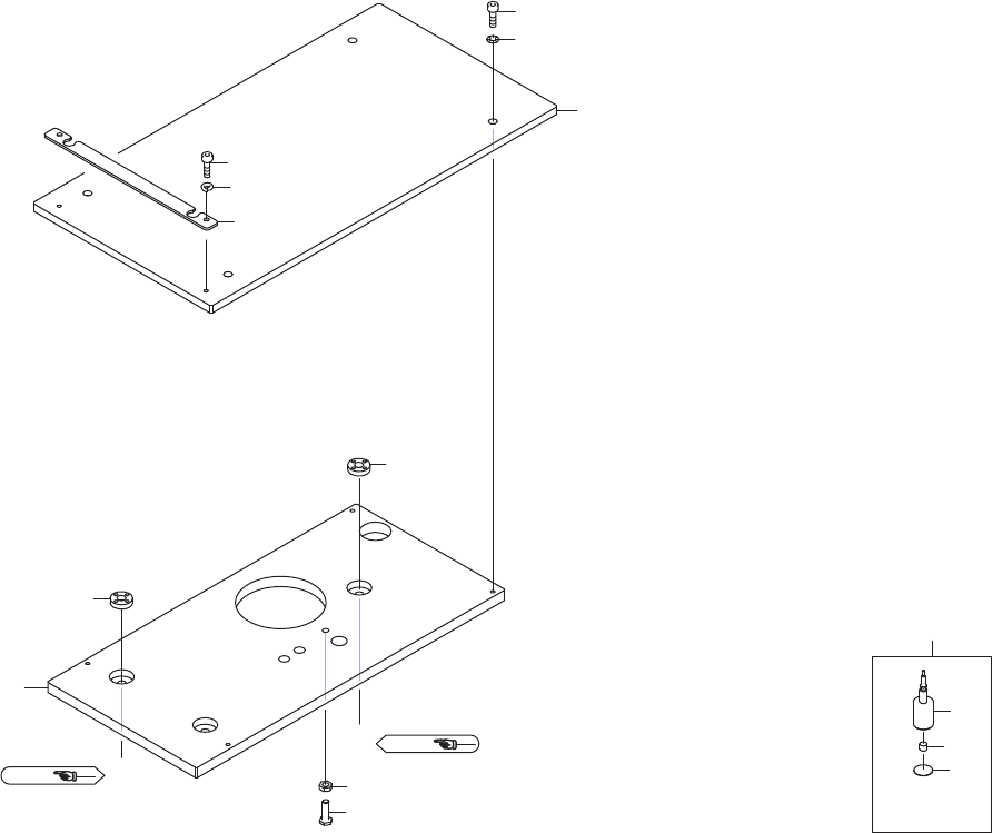
BACK-UP PIN
ࣂࢵࢡࢵࣉࣆࣥ
1
12
15
16
17
13
14
4
5
3
3
65
64
63
62
2UGZCA0001300,,,Fࢩࣥࢢࣝࢥࣥ࣋
M3 IIIc-SINGLE CONVEYOR 1/
396
PTS- NXT3c- 07

M3 IIIc-SINGLE CONVEYOR 1/
M3 IIIc-シングルコンベア 1/
2UGZCA000130
No. Drg.No. & Code No. QTY Description Rating Remarks
番号 図番 & コード番号 個数 品名 規格 備考
1 2MGZCA000500 1 FRAME
フレーム
3 GGQC2241 3 NUT
ナット
4 2MGTCA009301 1 BOLT, POSITIONING
ボルト 位置決め
5 N1079D 1 NUT, HEX
ナット 六角
M06 P=1.0 1シュ(3カシロ)
12 2MGZCA000601 1 PLATE, BACKUP
プレート バックアップ
13 2MGTCA010900 4 BOLT, HEX SOCKET
ボルト 六角穴
14 W1011A 4 WASHER, CONICAL
ワッシャ 皿
M-4-L
15 PB05FG5 1 PLATE, PARTITION
プレート 仕切り
16 H5288A 2 BOLT, HEX SOCKET
ボルト 六角穴
M04X010
17 W1022A 2 WASHER, LOCK
ワッシャ スプリング
4M/M
62 AA6WL06 8 PIN, BACKUP
ピン バックアップ
63 PM08AA2 1 PIN, BACKUP
ピン バックアップ
64 M1004R 1 MAGNET
マグネット
N0605-35
65 PZ34033 1 SHEET
シート
397
PTS- NXT3c- 07

AA
DETAIL UU
Ref.1/
T2T2
VV
UU
SS
SS
SS
BB
Ref.1/
DETAIL VV
DETAIL SS
DETAIL T2T2
4
4
43
42
45
32
33
34
38
39
39
40
61
62
64
65
60
63
66
66
66
52
56
58
59
67
68
53
54
55
1
15
2
3
16
17
14
5
9
12
13
10
11
6
7
8
27
22
24
25
23
18
30
31
19
20
21
28
29
29.1
35
36
37
46
2UGZCA000130
0,,,Fࢩࣥࢢࣝࢥࣥ࣋
M3 IIIc-SINGLE CONVEYOR 2/
398
PTS- NXT3c- 07