PTS-NXT3c-07 - 第511页
このページはブランクページです This page is intentionally blank. 此页是空白页 5 1 1 P TS - N X T3 c - 0 7

M6 IIIc-DOUBLE CONVEYOR 4/
M6 IIIc-ダブルコンベア 4/
2UGZCF000127
No. Drg.No. & Code No. QTY Description Rating Remarks
番号 図番 & コード番号 個数 品名 規格 備考
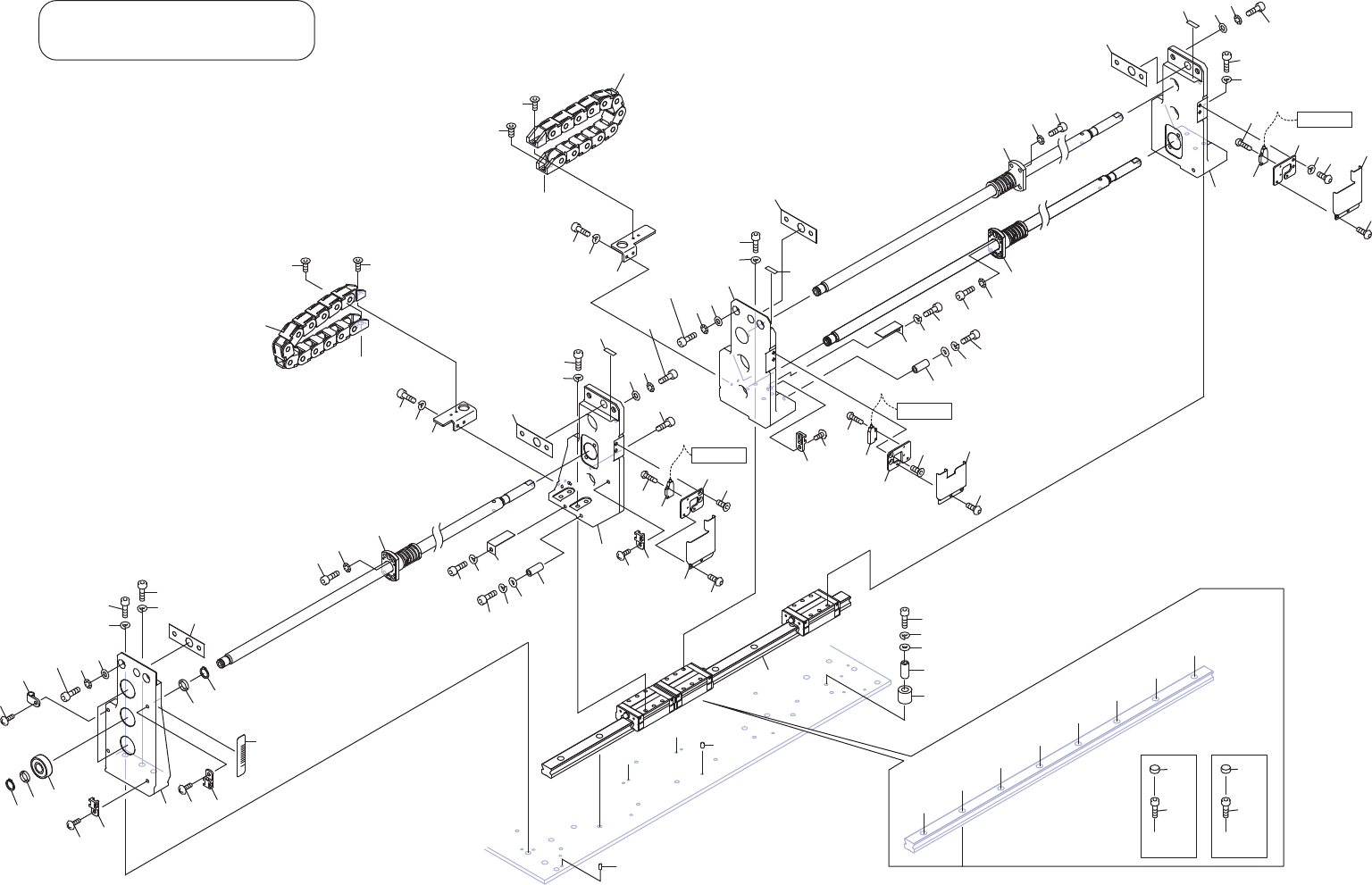
47.1 2MGKCF003802 2 CONVEYOR, BELT
コンベア ベルト
Thin panel option
48 PM059Z4 2 PLATE, GUIDE
プレート ガイド
49 2MGTCF003301 2 PLATE, CLAMPING
プレート クランプ
50 K5255A 12 SCREW, HEX SOCKET BUTTON
小ネジ 六角穴ボタン
M03X004
51 2MGTCF019500 1 RAIL
レール
51.1 2MGTCF021000 1 RAIL
レール
Thin panel option
52 H5289A 7 BOLT, HEX SOCKET
ボルト 六角穴
M04X012
53 W1011A 7 WASHER, CONICAL
ワッシャ 皿
M-4-L
55 PM05AD2 4 PLATE
プレート
56 H54252 8 BOLT, HEX SOCKET
ボルト 六角穴
M03X008(3カ シロ)
57 W1106C 8 WASHER, LOCK
ワッシャ スプリング
3M/M(3カ シロ)
58 2MGKCA042000 6 BOLT, STOPPER
ボルト ストッパ
58.1 N1079X 6 NUT, HEX
ナット 六角
M04 3シュ(3カ シロ)
59 PZ14451 4 SPRING
スプリング
60 PB90312 1 HOOK
フック
61 PB90322 1 HOOK
フック
62 H54252 8 BOLT, HEX SOCKET
ボルト 六角穴
M03X008(3カ シロ)
63 W1106C 8 WASHER, LOCK
ワッシャ スプリング
3M/M(3カ シロ)
64 PB90322 1 HOOK
フック
65 PB90312 1 HOOK
フック
68 2MGKCA006501 2 PIN
ピン
73 2MGTCA006100 4 BLOCK, LOCATING
ブロック 位置決め
74 H54252 8 BOLT, HEX SOCKET
ボルト 六角穴
M03X008(3カ シロ)
75 W1106C 8 WASHER, LOCK
ワッシャ スプリング
3M/M(3カ シロ)
76 2MGKCA031200 4 PLATE
プレート
77 2MGKCE009501 2 BRUSH
ブラシ
Consumable Parts
78 K65002 4 SCREW, HEX SOCKET COUNTERSUNK
小ネジ 六角穴皿
M03X012(3カ シロ)
79 2MGTCE001301 1 COVER, WIRING
カバー 配線
80 K5258E 2 SCREW, HEX SOCKET BUTTON
小ネジ 六角穴ボタン
M03X006(3カ シロ)
81 W1106C 2 WASHER, LOCK
ワッシャ スプリング
3M/M(3カ シロ)
95 2MGTCE001301 1 COVER, WIRING
カバー 配線
96 K5258E 2 SCREW, HEX SOCKET BUTTON
小ネジ 六角穴ボタン
M03X006(3カ シロ)
97 W1106C 2 WASHER, LOCK
ワッシャ スプリング
3M/M(3カ シロ)
510
PTS- NXT3c- 07
このページはブランクページです
This page is intentionally blank.
此页是空白页
511
PTS- NXT3c- 07

Width change drive axis
CC
DD
CC
DD
S1S1 Ref.6/
S2S2 Ref.6/
S3S3 Ref.6/
AA
BB
㸨㹁㹂㸴㹔㸿ࠉ㸯㸰㸱㸲㸳㸴㸨
AA
BB
AA
BB
AA
AA
BB
AA
ᖜ᭰㥑ື㍈
2
21
41
61
8
27
66
46
85
85
86
98
39
9
28
47
67
119
86
12
3
6
22
25
42
45
62
65
10
11
4
5
84
87
84
87
43
44
23
24
63
64
1
36
37
38
53
54
55
113
114
114
112
112
111
89
90
88
88
89
90
21.1
41.1
33
32
30
31
51
50
48
49
72
71
68
69
70
13
14
106
107
108
109
110
4.1
12.1
23.1
43.1
63.1
61.1
16
15
16
15
35
34
56
57
96
97
96
97
100
101
102
103
104
105
79
80
79
80
79
80
100
101
102
120
130
121
122
121
123
131
131
0,,,Fࢲࣈࣝࢥࣥ࣋
M6 IIIc-DOUBLE CONVEYOR 5/
2UGZCF000127
512
PTS- NXT3c- 07