PTS-NXT3c-07 - 第551页
PCU IIc 4/ (M6 PALETTE T YPE / パレットタイプ ) UX05019 No. Drg.No. & Code No. QTY Description Rating Remarks 番号 図番 & コード番 号 個数 品名 規格 備考 1 PB0AHA 4 1 ARM アーム 2 PB0AHB 4 1 ARM アーム 3 K1113 Z 6 CAM F OLLOW ER カムフォロア CF6-A…

895∼8
9
5
∼
910∼9
1
0
∼
925∼9
2
5
∼
Ref.1~2/
㸨㹎8㹋㸱㹄ࠉ㸯㸰㸱㸲㸳㸴㸨
*PBM3H 123456*
AA
BB
AA
BB
21.1
21.2
114
115
213
161
162
163
164
165
160
210
211
211
210
211
211
1
2
3
3
4
4
5
5
6
6
3
4
3
4
5
6
3
4
3
4
10
10
10
10
6.1
5
6
6.1
6.1
6.1
5
6
6.1
5
6
6.1
12
20
21
20.1
21
22
23
24
25
30
31
32
33
34
35
36
37
40
41
42
43
44
45
46
47
48
49
50
51
51
52
53
53
46.1
50
52
47
48
49
35
36
11
26
27
28
29
38
39
223
224
27.1
239
12
111
112
113
113
116
117
119
120
125
126
127
128
127
128
129
130
131
132
133
134
135
136
137
138
139
140
141
142
143
144
11
121
122
122
123
124
123
124
118
145
146
147
148
147
145
146
148
239
149
150
151
149.1
221
222
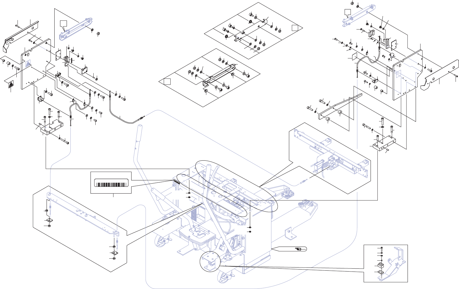
PCU IIc 4/ (M6 PALETTE TYPE /ࣃࣞࢵࢺࢱࣉ)
UX05019
550
PTS- NXT3c- 07

PCU IIc 4/ (M6 PALETTE TYPE /パレットタイプ)
UX05019
No. Drg.No. & Code No. QTY Description Rating Remarks
番号 図番 & コード番号 個数 品名 規格 備考
1 PB0AHA4 1 ARM
アーム
2 PB0AHB4 1 ARM
アーム
3 K1113Z 6 CAM FOLLOWER
カムフォロア
CF6-A
4 W1002H 6 WASHER
ワッシャ
WSSM12-6-3
5 N1079D 6 NUT, HEX
ナット 六角
M06 P=1.0 1シュ(3カシロ)
6 W1106F 6 WASHER, LOCK
ワッシャ スプリング
6M/M(3カシロ)
6.1 W1108F 6 WASHER, FLAT
ワッシャ 平
4W-6(3カ シロ)
10 PM88101 4 PIN
ピン
11 N1079C 4 NUT, HEX
ナット 六角
M05 P=0.8 1シュ(3カシロ)
12 W1106E 4 WASHER, LOCK
ワッシャ スプリング
5M/M(3カ シロ)
20 PM0G2X3 1 BLOCK
ブロック
20.1 H20947 1 PIN, PARALLEL
ピン 平行
φ06X16 A種(m6)
21 H51190 2 BOLT
ボルト
RMBR6-32
21.1 N1079Z 2 NUT, HEX
ナット 六角
M06 3シュ(3カ シロ)
21.2 W1106F 2 WASHER, LOCK
ワッシャ スプリング
6M/M(3カシロ)
22 H54275 1 BOLT, HEX SOCKET
ボルト 六角穴
M06X030(3カ シロ)
23 W1106F 1 WASHER, LOCK
ワッシャ スプリング
6M/M(3カシロ)
24 H54277 3 BOLT, HEX SOCKET
ボルト 六角穴
M06X040(3カ シロ)
25 W1013A 3 WASHER, CONICAL
ワッシャ 皿
M- 6-H
26 2MGKPX020500 1 PLATE, ARM
プレート アーム
27 S3017F 1 STOPPER
ストッパ
AZXHC15-15-M4
27.1 K73919 1 COLLAR
カラー
NCLM4-12-10
28 H5426X 1 BOLT, HEX SOCKET
ボルト 六角穴
M04X025(3カ シロ)
29 W1106D 1 WASHER, LOCK
ワッシャ スプリング
4M/M(3カ シロ)
30 2MGKPX020800 1 GUIDE
ガイド
31 N1079X 1 NUT, HEX
ナット 六角
M04 3シュ(3カ シロ)
32 N4034A 1 SCREW, HEX SOCKET SET
ネジ 六角穴止め
M04X015 クボミサキ
33 S30228 1 SPRING
スプリング
WH5-40
34 2MGKPY000501 1 STOPPER
ストッパ
35 R60077 2 ROLLER
ローラ
NTBGT13-8
36 W1091N 2 WASHER
ワッシャ
WSSM8-4-3
37 PB0B3T0 1 PLATE
プレート
38 H5426N 2 BOLT, HEX SOCKET
ボルト 六角穴
M04X015(3カ シロ)
39 W1011A 2 WASHER, CONICAL
ワッシャ 皿
M-4-L
40 PB0B4C0 1 BKT
BKT
41 K5258N 2 SCREW, HEX SOCKET BUTTON
小ネジ 六角穴ボタン
M04X012(3カ シロ)
42 W1106D 2 WASHER, LOCK
ワッシャ スプリング
4M/M(3カ シロ)
43 PB00FZ0 1 BKT
BKT
44 K5258N 2 SCREW, HEX SOCKET BUTTON
小ネジ 六角穴ボタン
M04X012(3カ シロ)
45 W1106D 2 WASHER, LOCK
ワッシャ スプリング
4M/M(3カ シロ)
46 XW01052 1 WIRE
ワイヤ
46.1 XW01072 1 WIRE
ワイヤ
47 H5426M 2 BOLT, HEX SOCKET
ボルト 六角穴
M04X012(3カ シロ)
48 W1106D 2 WASHER, LOCK
ワッシャ スプリング
4M/M(3カ シロ)
49 W1108S 2 WASHER, FLAT
ワッシャ 平
4M/MX0.8X9(1W-4)(3カシロ)
50 A60727 2 RETAINER, WIRING
押え 配線
COPS3-20P
51 K5180R 2 SCREW, C/R PAN
小ネジ 十穴鍋
M04X008(3カ シロ)
52 W1106D 2 WASHER, LOCK
ワッシャ スプリング
4M/M(3カ シロ)
53 W1108S 2 WASHER, FLAT
ワッシャ 平
4M/MX0.8X9(1W-4)(3カシロ)
111 PM0G2T3 1 BLOCK
ブロック
112 H20947 1 PIN, PARALLEL
ピン 平行
φ06X16 A種(m6)
551
PTS- NXT3c- 07

PCU IIc 4/ (M6 PALETTE TYPE /パレットタイプ)
UX05019
No. Drg.No. & Code No. QTY Description Rating Remarks
番号 図番 & コード番号 個数 品名 規格 備考
113 H51190 2 BOLT
ボルト
RMBR6-32
114 N1079Z 2 NUT, HEX
ナット 六角
M06 3シュ(3カ シロ)
115 W1106F 2 WASHER, LOCK
ワッシャ スプリング
6M/M(3カシロ)
116 H54275 1 BOLT, HEX SOCKET
ボルト 六角穴
M06X030(3カ シロ)
117 W1106F 1 WASHER, LOCK
ワッシャ スプリング
6M/M(3カシロ)
118 2MGKPX020600 1 PLATE, ARM
プレート アーム
119 H54277 3 BOLT, HEX SOCKET
ボルト 六角穴
M06X040(3カ シロ)
120 W1013A 3 WASHER, CONICAL
ワッシャ 皿
M- 6-H
121 PB0B3W0 1 PLATE
プレート
122 PM84322 2 COLLAR
カラー
123 H54274 2 BOLT, HEX SOCKET
ボルト 六角穴
M06X025(3カ シロ)
124 W1013A 2 WASHER, CONICAL
ワッシャ 皿
M- 6-H
125 PB0B3T0 1 PLATE
プレート
126 2MGKPX016201 1 STOPPER
ストッパ
127 R60077 2 ROLLER
ローラ
NTBGT13-8
128 W1091N 2 WASHER
ワッシャ
WSSM8-4-3
129 S3021G 1 SPRING
スプリング
WL5-40
130 2MGKPX020800 1 GUIDE
ガイド
131 N1079X 1 NUT, HEX
ナット 六角
M04 3シュ(3カ シロ)
132 N4034A 1 SCREW, HEX SOCKET SET
ネジ 六角穴止め
M04X015 クボミサキ
133 H5426N 2 BOLT, HEX SOCKET
ボルト 六角穴
M04X015(3カ シロ)
134 W1011A 2 WASHER, CONICAL
ワッシャ 皿
M-4-L
135 PB0B4B0 1 BKT
BKT
136 K5258N 2 SCREW, HEX SOCKET BUTTON
小ネジ 六角穴ボタン
M04X012(3カ シロ)
137 W1106D 2 WASHER, LOCK
ワッシャ スプリング
4M/M(3カ シロ)
138 PB00FZ0 1 BKT
BKT
139 K5258N 2 SCREW, HEX SOCKET BUTTON
小ネジ 六角穴ボタン
M04X012(3カ シロ)
140 W1106D 2 WASHER, LOCK
ワッシャ スプリング
4M/M(3カ シロ)
141 XW01052 1 WIRE
ワイヤ
142 H5426M 1 BOLT, HEX SOCKET
ボルト 六角穴
M04X012(3カ シロ)
143 W1106D 1 WASHER, LOCK
ワッシャ スプリング
4M/M(3カ シロ)
144 W1108S 1 WASHER, FLAT
ワッシャ 平
4M/MX0.8X9(1W-4)(3カシロ)
145 A60727 2 RETAINER, WIRING
押え 配線
COPS3-20P
146 K5180R 2 SCREW, C/R PAN
小ネジ 十穴鍋
M04X008(3カ シロ)
147 W1106D 2 WASHER, LOCK
ワッシャ スプリング
4M/M(3カ シロ)
148 W1108S 2 WASHER, FLAT
ワッシャ 平
4M/MX0.8X9(1W-4)(3カシロ)
149 S3017F 1 STOPPER
ストッパ
AZXHC15-15-M4
149.1 K73919 1 COLLAR
カラー
NCLM4-12-10
150 H5426X 1 BOLT, HEX SOCKET
ボルト 六角穴
M04X025(3カ シロ)
151 W1106D 1 WASHER, LOCK
ワッシャ スプリング
4M/M(3カ シロ)
160 2MGKPX016900 1 SPACER
スペーサ
161 PG07350 1 STOPPER
ストッパ
162 PM81471 2 COLLAR
カラー
163 H5426S 2 BOLT, HEX SOCKET
ボルト 六角穴
M04X018(3カ シロ)
164 W1106D 2 WASHER, LOCK
ワッシャ スプリング
4M/M(3カ シロ)
165 W1108S 2 WASHER, FLAT
ワッシャ 平
4M/MX0.8X9(1W-4)(3カシロ)
210 PB99201 2 PLATE
プレート
211 N1079D 4 NUT, HEX
ナット 六角
M06 P=1.0 1シュ(3カシロ)
213 2MGLPY000100 1 SEAL, BAR CODE
シール バーコード
unit serial number
221 2MGTPX001602 1 COVER, SIDE
カバー サイド
222 H79722 2 BOLT, HEX SOCKET
ボルト 六角穴
SSH-M5-25-EL
552
PTS- NXT3c- 07