PTS-NXT3c-07 - 第589页
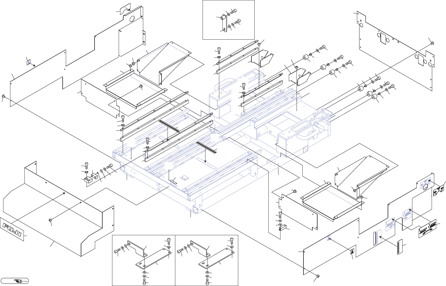
PSU IIc (M6) 7/ UK04808 UK0500 8 No. Drg.No. & Code No. QTY Description Rating Remarks 番号 図番 & コード番 号 個数 品名 規格 備考 2 2MGTPT0 01500 1 PLATE プレート 3 H5427 H 2 BOLT, HEX SOCKET ボルト 六角穴 M05X02 5(3 カ シロ ) 5 N1079 C 2 N…

OPTION
2
3
3
5
7
5
8
9
10
11
14
15
18
16
17
12
13
UK04808 UK05008
PSU IIc (M6) 7/
㹋㸱㹡㸭㹋㸴㹡
588
PTS- NXT3c- 07

PSU IIc (M6) 7/
UK04808 UK05008
No. Drg.No. & Code No. QTY Description Rating Remarks
番号 図番 & コード番号 個数 品名 規格 備考
2 2MGTPT001500 1 PLATE
プレート
3 H5427H 2 BOLT, HEX SOCKET
ボルト 六角穴
M05X025(3カ シロ)
5 N1079C 2 NUT, HEX
ナット 六角
M05 P=0.8 1シュ(3カシロ)
7 W1108E 1 WASHER, FLAT
ワッシャ 平
4W-5(3カ シロ)
8 2MGTPT001200 1 BLOCK
ブロック
9 H5426N 2 BOLT, HEX SOCKET
ボルト 六角穴
M04X015(3カ シロ)
10 2MGTPT000800 1 BKT
BKT
11 H5426H 2 BOLT, HEX SOCKET
ボルト 六角穴
M04X006(3カ シロ)
12 2MGTPT000902 1 COVER
カバー
13 H5426H 2 BOLT, HEX SOCKET
ボルト 六角穴
M04X006(3カ シロ)
14 2MGTPT001800 1 COVER
カバー
15 H5426H 2 BOLT, HEX SOCKET
ボルト 六角穴
M04X006(3カ シロ)
16 2MGTPT001100 1 BLOCK
ブロック
17 H5120W 1 BOLT
ボルト
MSB6-10
18 S63949 1 SPRING, TENSION
スプリング 引張
AWU4-20
589
PTS- NXT3c- 07

BB
CC
AA
AA
RR
SS
AA
PP
AA
AA
CC
BB
QQ
P,Q,R,SP,Q,R,S
Ref.4/
2
3
4
5
6
7
8
9
10
11
12
13
16
17
18
19
20
21
22
23
24
25
25
26
27
28
29
30
31
30.1
32
33
34
35
53
54
55
56
57
58
36
69
72
39
40
41
42
42
43
44
41
42
43
44
41
42
43
44
45
46
46
47
49
50
50
51
14
15
22
23
24
33
34
35
36
71
70
39
40
41
43
44
48
52
42
41
43
44
42
41
43
44
59
60
61
62
63
64
65
66.1
67
68
59
60
61
62
63
64
65
66
67
68
MCU IIc 1/
UX05110
590
PTS- NXT3c- 07