PTS-NXT3c-07 - 第71页
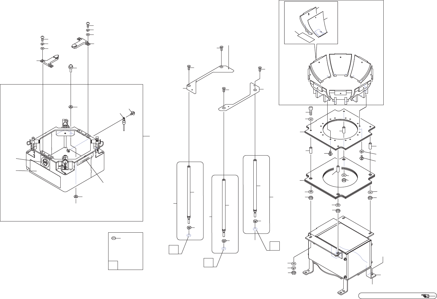
PARTS CAMERA LIGHT (SIDE LIGHT T YPE) パーツカメラライト (サイドライト仕様) UG00568 No. Drg.No. & Code No. QTY Description Rating Remarks 番号 図番 & コード番 号 個数 品名 規格 備考 2 K5198 K 4 SCR EW , W ASHER ASS'Y 小ネジ 座金組込み M03X01 5 P=3 …

AA
CC
CC
BB
BB
Ref.PARTS CAMERA(SIDE LIGHT)
DD
DD
DD
DD
t=2.0
t=1.7
t=1.8
t=1.9
t=2.1
t=2.2
t=2.3
12
15
14
13
7
6
21
20
20
22
20
20
22
22
22
15
15
15
16
22
15
45
46
18
17
17
7
6
7
6
58
59
4
3
53
54
55
11
10
48
2
52
5
31
31
32
33
47
47
47
47
23
5
5
34
32
33
34
8
8.1
8.2
8.3
8.4
8.5
8.6
UG00568
ࣃ࣮ࢶ࣓࢝ࣛࣛࢺࢧࢻࣛࢺᵝ
PARTS CAMERA LIGHT (SIDE LIGHT TYPE)
㸨㹎㹊㹍㹄㸿ࠉ㸯㸰㸱㸲㸳㸴㸨
70
PTS- NXT3c- 07

PARTS CAMERA LIGHT (SIDE LIGHT TYPE)
パーツカメラライト (サイドライト仕様)
UG00568
No. Drg.No. & Code No. QTY Description Rating Remarks
番号 図番 & コード番号 個数 品名 規格 備考
2 K5198K 4 SCREW, WASHER ASS'Y
小ネジ 座金組込み
M03X015 P=3 ナベセムス(3カ シロ)
3 2MGKGC001101 4 WASHER
ワッシャ
4 2MGKGC001300 4 WASHER
ワッシャ
5 2AGKGC000301 4 BOLT
ボルト
6 2MGKGC000100 1 BOLT
ボルト
7 W1106D 1 WASHER, LOCK
ワッシャ スプリング
4M/M(3カ シロ)
8 PM98131 1 WASHER
ワッシャ
INT, t=2.0
8.1 PM03AM1 1 WASHER
ワッシャ
INT, t=1.7
8.2 PM03AN1 1 WASHER
ワッシャ
INT, t=1.8
8.3 PM03AR1 1 WASHER
ワッシャ
INT, t=1.9
8.4 PM03AS1 1 WASHER
ワッシャ
INT, t=2.1
8.5 PM03AT1 1 WASHER
ワッシャ
INT, t=2.2
8.6 PM03AW1 1 WASHER
ワッシャ
INT, t=2.3
10 DBGC1672 8 HOLDER, LIGHT
ホルダ ライト
11 2AGKGA000202 8 BOARD, PRINTED CIRCUIT
基板 プリント
FH1286A5F
8pieces/set, Adjustment at the factory is required when replacing
12 2AGKGA000104 1 BOARD, PRINTED CIRCUIT
基板 プリント
FH1213C6F
13 H54259 4 BOLT, HEX SOCKET
ボルト 六角穴
M03X030(3カ シロ)
14 W1106C 4 WASHER, LOCK
ワッシャ スプリング
3M/M(3カ シロ)
15 W1108B 8 WASHER, FLAT
ワッシャ 平
3M/MX0.5X7(3カシロ)
16 W1108D 4 WASHER, FLAT
ワッシャ 平
4W-3(3カ シロ)
17 N4001S 16 SCREW
ネジ
U-2506-S1 セムスネジ
18 W10017 1 WASHER
ワッシャ
EE-0306-05R
20 S32270 4 SPACER
スペーサ
CZ-315
21 XK05394 1 BOARD, PRINTED CIRCUIT
基板 プリント
FH1313B3F
Adjustment at the factory is required when replacing
22 N10793 8 NUT, HEX
ナット 六角
M03 P=0.5(3カシロ)
23 AA71M10 1 LAMP
ランプ
Adjustment at the factory is required when replacing
31 AA8BL04 2 COVER, GLASS
カバー ガラス
32 K5258D 4 SCREW, HEX SOCKET BUTTON
小ネジ 六角穴ボタン
M03X005(3カ シロ)
33 W1106C 4 WASHER, LOCK
ワッシャ スプリング
3M/M(3カ シロ)
34 W1108B 4 WASHER, FLAT
ワッシャ 平
3M/MX0.5X7(3カシロ)
45 2MGKGC000900 1 PLATE
プレート
46 2MGKGC001001 1 PLATE
プレート
47 K66208 4 SCREW, HEX SOCKET COUNTERSUNK
小ネジ 六角穴皿
M03X014(3カ シロ)
48 PZ37160 1 TAPE
テープ
100pieces/set
52 AA8BK11 1 LAMP
ランプ
53 PX04032 1 SEAL, BAR CODE
シール バーコード
unit serial number, PLOFA
54 PZ25701 1 SEAL
シール
55 PX08560 1 NAMEPLATE, CAUTION
銘板 注意
58 2EGKGA000100 1 HARNESS
ハーネス
59 K51981 1 SCREW, WASHER ASS'Y
小ネジ 座金組込み
M03X006 ナベセムス P4(3カシロ)
71
PTS- NXT3c- 07

AA
Ref.P05 PARTS CAMERA LIGHT
1
2
3
4
5
6
7
8
9
10
11
12
13
14
2
15
2UGKGG000121
3ࣃ࣮ࢶ࣓࢝ࣛ
P05 PARTS CAMERA
72
PTS- NXT3c- 07