SP60P-M Mechanical 20120628 - 第74页
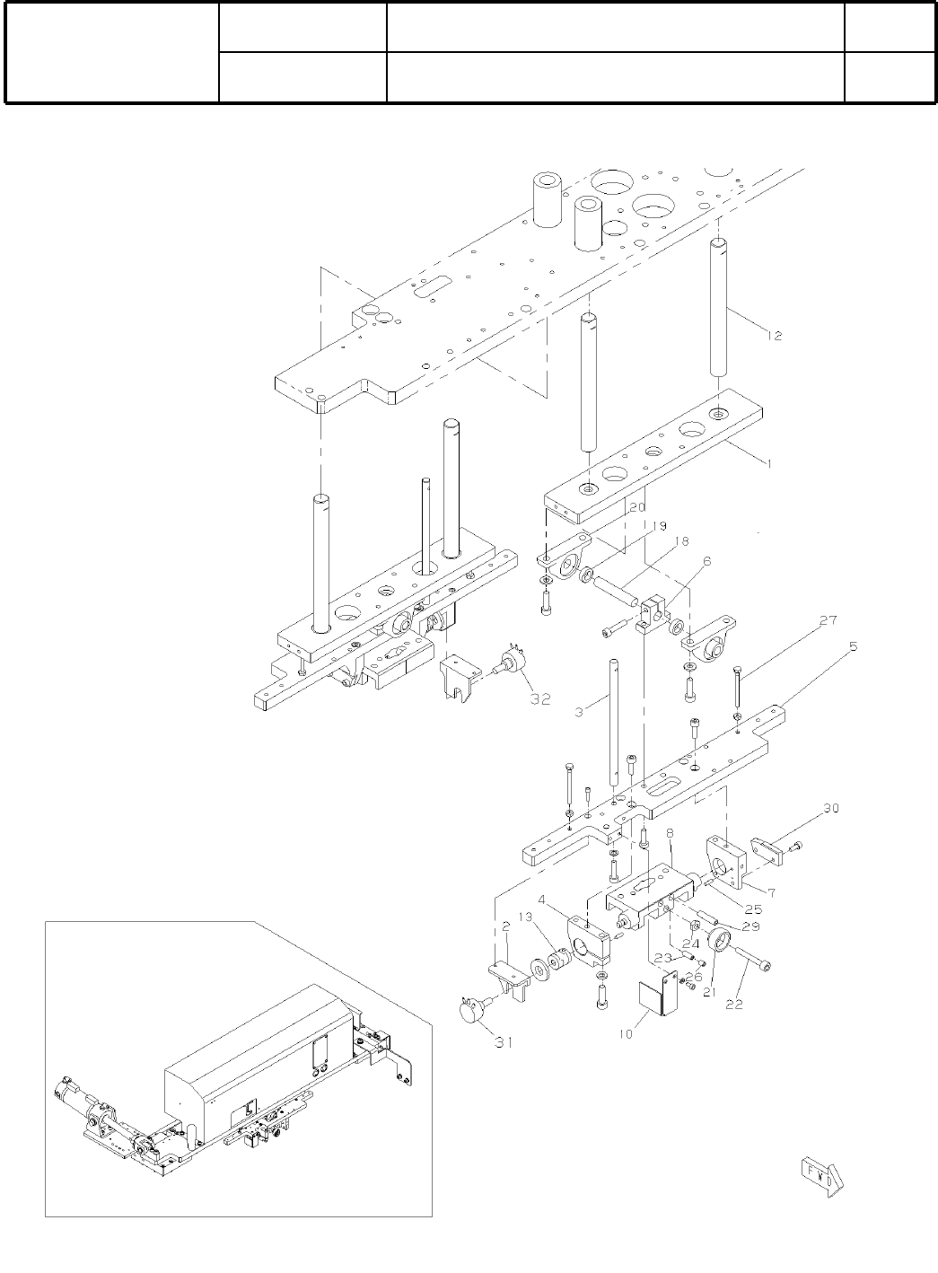
8-B スキージヘッド Squeeg ee Head パーツレイアウト Ki t N o . キット 品番 Kit N am e キット名称 KXFX039HA00 セクションNo. PARTS LAYOUT Section No. - - M55 ( KKXFX039HA00-07-2 )

Ref
No.
Remarks
R
1
Q'ty
8-A
スキージヘッド
Squeegee Head
イラスト
No.
Part No.
品 名品番 数量
R
2
パーツリスト
Kit N
o
.
キット品
番
Kit Name
キット名称
KXFX039HA00
Part Name
備 考
セクションNo.
PARTS LIST
Section No.
R
3
PLATE
1
1 N210029506AA
BRACKET
2
2 KXFB0069A00
PLATE
1
3 N210029507AA
BAR
1
4 KXFB02X4A01
PLATE
1
5 KXFB02X5A00
BAR
1
6 KXFB02X6B00
PLATE
1
7 N210024109AA
COLLAR
2
8 N210024464AA
PLATE
1
9 KXFB0384A01
STOPPER
2
10 N210029509AA
COLLAR
2
11 KXFB006KA00
DOG
1
13 KXFB02X9B00
DOG
1
14 KXFB06PHB00
CYLINDER
2
15 KXF0DWT1A00 SSD-KLF-32-60-TOV-4-FL301943(DDA)
BUSH
4
16 KXF096CAA00 SMF16GWUU
FLOATING-JOINT
2
17 KXF09V2AA00 FJT10-1.25-10
BUSH
2
18 KXF072JAA00 LFZB10-20
WASHER
2
19 KXF05UDAA00 MSRB10-1.0
PIN
2
20 KXF08FQAA00 MSTH10-50
JOINT
1
21 KXF073GAA00 Y-G05
CYLINDER
1
22 KXF09WTAA00 CDG1UA50-100-C73L
BRACKET
1
23 KXF07FWAA00 CG-050-24A
JOINT
2
24 KXF02BZAA00 KQL06-02S
SCREW
2
26 N510018447AA
Hexagon socket set screw Flat point M6X10-45H A2J (Trivalent)
GRIP
1
27 N510020239AA GTMS-24-M8
NUT
1
28 N510017879AA
Hexagon nut Type-3 Best class M8-6H-4T A2J (Trivalent)
POST
1
31 N510001267AA PLSBRK13-70
POST
1
32 N510001268AA PLSBRK13-100
GREASE-NIPPLE
2
33 N510019930AA 4011 SUS
JOINT
2
34 KXF02T9AA00 M-5HL-4
SPACER
2
35 N510020207AA 3382330-80120
SCREW
2
36 XXE8D30VW Hexagon socket set screw Cup point M8X30-A2
RING
2
37 N473R40.5 R4X0.5
M54
--
( KKXFX039HA00-07-1 )

8-B
スキージヘッド
Squeegee Head
パーツレイアウト
Ki
t
N
o
.
キット
品番
Kit Name
キット名称
KXFX039HA00
セクションNo.
PARTS LAYOUT
Section No.
--
M55
( KKXFX039HA00-07-2 )

Ref
No.
Remarks
R
1
Q'ty
8-B
スキージヘッド
Squeegee Head
イラスト
No.
Part No.
品 名品番 数量
R
2
パーツリスト
Kit N
o
.
キット品
番
Kit Name
キット名称
KXFX039HA00
Part Name
備 考
セクションNo.
PARTS LIST
Section No.
R
3
PLATE
2
1 KXFB00J9A00
BRACKET
2
2 KXFB04HQA00
SHAFT
2
3 N210022417AA
HOLDER
2
4 KXFB06L5A00
PLATE
2
5 N210028192AA
PLATE
2
6 KXFB06APA01
HOLDER
2
7 KXFB06L6A00
HOLDER
2
8 KXFB06KYA00
COVER
2
10 KXFB04HRA00
LM-SHAFT
4
12 KXF0DWY6A00 SF16X165(DA KXF0DWY6A00)
COUPLING
2
13 N510001266AA MOL-16-D6XD6
SHAFT
2
18 KXF03GDAA00 SFJ10-55
WASHER
4
19 KXF028TAA00 K16
BEARING
4
20 KXF07EGAA00 UP000
KNOB
2
21 KXF09Y4AA00 KCF-24XM6-BK
BOLT
2
22 KXF0DXJDA00 HFMB6-40
PLUNGER
2
23 KXF09WSAA00 BSZ6
NUT
2
24 N510017869AA
Hexagon nut Type-3 Best class M6-6H-4T A2J (Trivalent)
PIN
4
25 KXF02XVAA00 MS3-10
SCREW
2
26 N510018453AA
Hexagon socket set screw Flat point M6X6-45H A2J (Trivalent)
BOLT
4
27 KXF0CK8AA00 Hexagon head bolt M4X45L(SUS)
SCREW
2
29 N510018452AA
Hexagon socket set screw Flat point M6X25-45H A2J (Trivalent)
PLATE
2
30 KXFB06MHA00
CABLE
1
31 N610033688AB JC22E 5K 1%
CABLE
1
32 N610033689AB JC22E 5K 1%
M56
--
( KKXFX039HA00-07-2 )