SP60P-M Mechanical 20120628 - 第77页
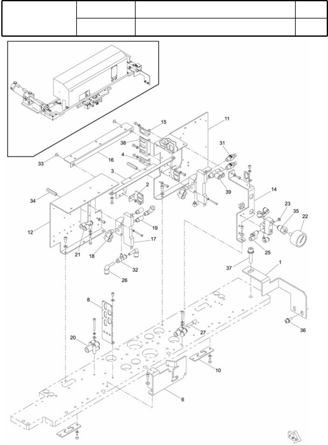
Ref No. Remark s R 1 Q'ty 8-C スキージヘッド Squeeg ee Head イラスト No. Part No. 品 名 品番 数量 R 2 パーツリスト Kit N o . キット品 番 Kit Name キット名称 KXFX039HA00 Part Nam e 備 考 セクションNo. PARTS LIST Section No. R 3 COLLAR 2 1 KXFB06KZA00 BRACK…

8-C
スキージヘッド
Squeegee Head
パーツレイアウト
Ki
t
N
o
.
キット
品番
Kit Name
キット名称
KXFX039HA00
セクションNo.
PARTS LAYOUT
Section No.
--
M57
( KKXFX039HA00-07-3 )

Ref
No.
Remarks
R
1
Q'ty
8-C
スキージヘッド
Squeegee Head
イラスト
No.
Part No.
品 名品番 数量
R
2
パーツリスト
Kit N
o
.
キット品
番
Kit Name
キット名称
KXFX039HA00
Part Name
備 考
セクションNo.
PARTS LIST
Section No.
R
3
COLLAR
2
1 KXFB06KZA00
BRACKET
1
2 N210024117AA
COVER
1
3 N210024116AB
COVER
1
4 N210014689AA
VALVE
4
5 KXF0DWXGA00 B5132-MOQ-M5-FL273676-DC24V(DDA)
JOINT
3
6 KXF02TAAA00 M-5HL-6
BUTTON
2
7 KXF0A79AA00 C-33
SCREW
4
8 N510018435AA
Hexagon socket set screw Flat point M4X4-45H A2S
SCREW
4
9 N510018252AA
Cross recessed Truss head machine screw M3X5-4.8 A2S (Trivalent)
JOINT
3
10 KXF02TCAA00 M-5J
JOINT
1
11 KXF02T4AA00 M-5AU-6
JOINT
2
12 KXF02TLAA00 M-5UT
SCREW
2
14 N510018279AA
Cross recessed Truss head machine screw M4X6-4.8 A2J (Trivalent)
REGULATOR
1
16 KXF0DWYEA00 EV2500-108-C11E2B4-FL280525(DA KXF0DWYEA00)
JOINT
7
17 KXF029LAA00 KJL06-M5
M58
--
( KKXFX039HA00-07-3 )

8-D
スキージヘッド
Squeegee Head
パーツレイアウト
Ki
t
N
o
.
キット
品番
Kit Name
キット名称
KXFX039HA00
セクションNo.
PARTS LAYOUT
Section No.
--
M59
( KKXFX039HA00-07-4 )