SP60P-M Mechanical 20120628 - 第86页
10-A 搬送 コンベア(M) Tran sport Conv ey or(M ) パーツレイアウト Ki t N o . キット 品番 Kit N am e キット名称 KXFX 039K A00 セクションNo. PARTS LAYOUT Section No. - - M67 ( KKXFX039KA00-15-1 )

Ref
No.
Remarks
R
1
Q'ty
9-C
ユニバーサルマスクホルダ
(
M
)
Universal Mask Holder (M)
イラスト
No.
Part No.
品 名品番 数量
R
2
パーツリスト
Kit No.
キット
品番
Kit Name
キット 名称
KXFX039JA00
Part Name
備 考
セクション
No
.
PARTS LIST
Section No.
R
3
BRACKET
1
2 N210022816AA
COVER
1
3 N210022817AA
SCREW
4
5 N510018282AA
Cross recessed Truss head machine screw M4X8-4.8 A2J (Trivalent)
TRIM-SEAL
1
6 N610013349AA
M66
-
-
( KKXFX039JA00-06-3 )

10-A
搬送
コンベア(M)
Transport Conveyor(M)
パーツレイアウト
Ki
t
N
o
.
キット
品番
Kit Name
キット名称
KXFX039KA00
セクションNo.
PARTS LAYOUT
Section No.
--
M67
( KKXFX039KA00-15-1 )

Ref
No.
Remarks
R
1
Q'ty
10-A
搬送
コンベア(M)
Transport Conveyor(M)
イラスト
No.
Part No.
品 名品番 数量
R
2
パーツリスト
Kit N
o
.
キット品
番
Kit Name
キット名称
KXFX039KA00
Part Name
備 考
セクションNo.
PARTS LIST
Section No.
R
3
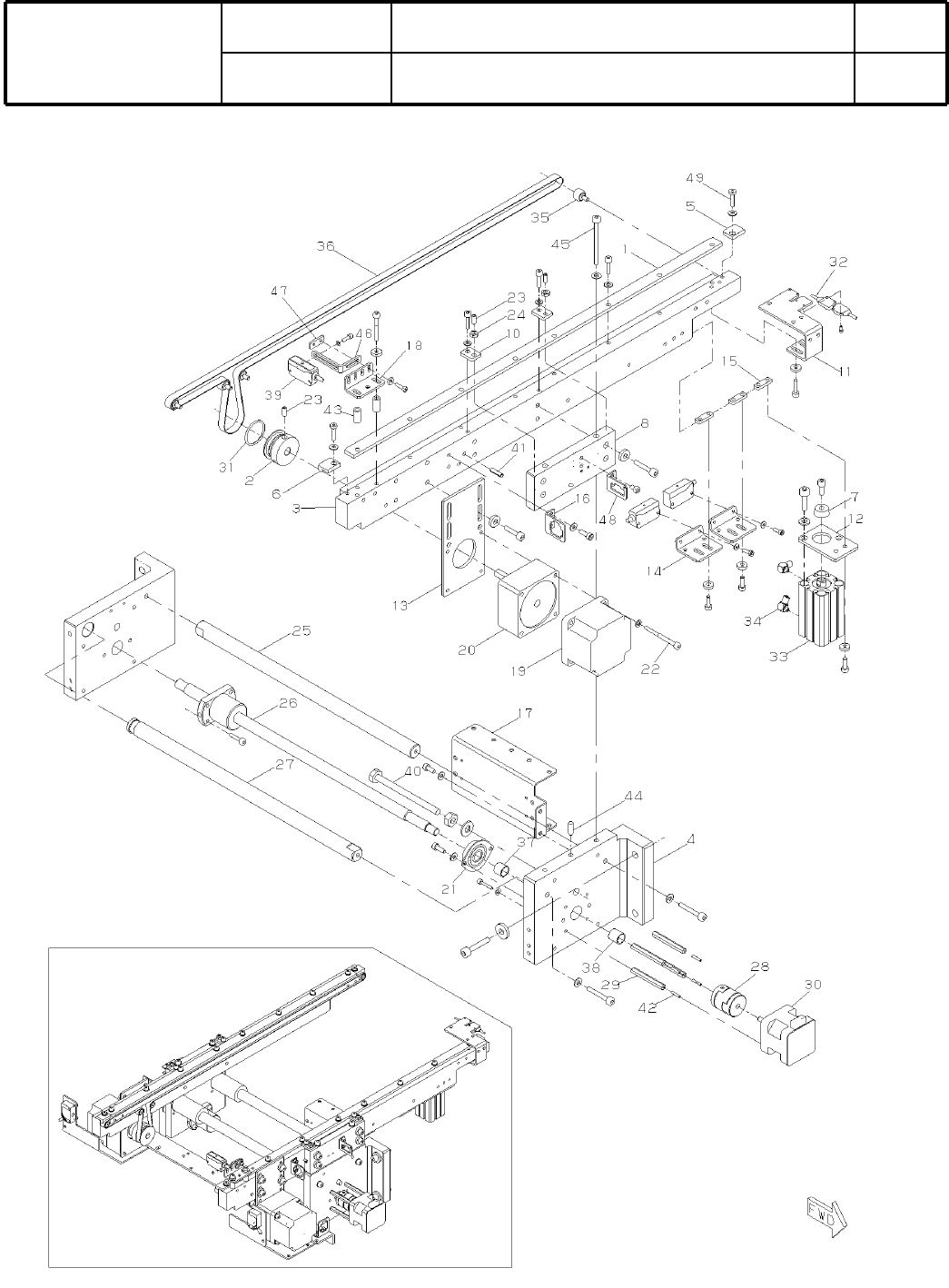
GUIDE
4
1 KXFB031FA00
PULLEY
4
2 KXFB02QLB00
FRAME
2
3 KXFB031LB00
BRACKET
1
4 N210023315AA
GUIDE
3
5 KXFB01J2A00
GUIDE
3
6 KXFB01J3A00
STOPPER
1
7 KXFB001HA00
PLATE
4
8 N210069932AA
PLATE
8
10 KXFB022TA00
BRACKET
1
11 KXFB031XA01
BRACKET
1
12 KXFB022PA00
BRACKET
4
13 KXFB031ZA01
BRACKET
5
14 KXFB0320A00
NUT
6
15 KXFB01UAA00
BRACKET
4
16 KXFB0323A00
BRACKET
2
17 KXFB0321A00
BRACKET
1
18 N210070180AA
MOTOR
4
19 KXF0DX4XA00
S
KO433-M(DDA)
GEAR-HEAD
4
20 KXF0DX4YA00 2GN5K-D5(DDA)
BEARING
4
21 KXF03G0AA00 SFB38-10
BOLT
16
22 N510017368AA
Hexagon socket head cap screw M4X45-10.9 A2J (Trivalent)
SCREW
14
23 N510018441AA
Hexagon socket set screw Flat point M5X10-45H A2J
NUT
8
24 N510017865AA
Hexagon nut Type-3 Best class M5-6H-4T A2J (Trivalent)
SHAFT
2
25 N510032575AA SF16319M05B
BALL-SCREW
2
26 N510032574AA XSTR01204C1DFC7-383-P0(NA120507)
SHAFT
2
27 N510032576AA SF16335M05B
COUPLING
2
28 KXF0DXEBA00 MOL-25-D5XD8
SPACER
8
29 N510008171AA ASF-345E
MOTOR
2
30 KXF0DXECA00
S
103H5332-0340
RING
4
31 N210088855AA
SENSOR
3
32 KXF09TDAA00
A
EX-14B
CYLINDER
1
33 KXF0B61AA00 CQSBS20-40DC
JOINT
2
34 KXF02T9AA00 M-5HL-4
PULLEY
16
35 N610116865AA
A
BELT
5
36 KXF0DWTDB00
A
XVT-952-1315L(DA KXF0DWTDB00)
SPACER
2
37 N510020119AA 3382330-90100
SPACER
2
38 N510020120AA 3382330-90125
SENSOR
6
39 KXF0DXF5A00
A
E3S-LS3N
BOLT
2
40 N510018916AA
Hexagon head bolt M8X90-6g 4T A2J all screws(no mark)
PIN
4
41 KXF08Q5AA00 SPP4-16
SCREW
8
42 N510018416AA
Hexagon socket set screw Flat point M3X12-45H A2J
SPACER
2
43 KXF01S7AA00 CU-415
PIN
4
44 KXF02YGAA00 MS5-15
BOLT
8
45 N510017412AA
Hexagon socket head cap screw M5X55-10.9 A2J (Trivalent)
BRACKET
1
46 N210070179AA
PW106A1
1
47 KXFB02RKA00
BRACKET
2
48 KXFB00JJA01
BOLT
8
49 N510026953AA SLH0416
M68
--
( KKXFX039KA00-15-1 )