SP60P-M Mechanical 20120628 - 第89页
Ref No. Remark s R 1 Q'ty 10-B 搬送 コンベア(M) Tran sport Conv ey or(M ) イラスト No. Part No. 品 名 品番 数量 R 2 パーツリスト Kit N o . キット品 番 Kit Name キット名称 KXFX039KA00 Part Name 備 考 セクションNo. PARTS LIST Section No. R 3 PLATE 2 1 K XF…

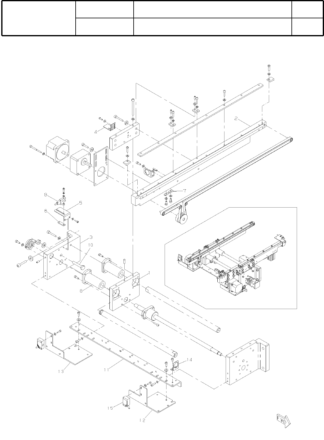
10-B
搬送
コンベア(M)
Transport Conveyor(M)
パーツレイアウト
Ki
t
N
o
.
キット
品番
Kit Name
キット名称
KXFX039KA00
セクションNo.
PARTS LAYOUT
Section No.
--
M69
( KKXFX039KA00-15-2 )

Ref
No.
Remarks
R
1
Q'ty
10-B
搬送
コンベア(M)
Transport Conveyor(M)
イラスト
No.
Part No.
品 名品番 数量
R
2
パーツリスト
Kit N
o
.
キット品
番
Kit Name
キット名称
KXFX039KA00
Part Name
備 考
セクションNo.
PARTS LIST
Section No.
R
3
PLATE
2
1 KXFB031JA00
FRAME
2
2 KXFB031KB00
BRACKET
1
3 KXFB031MA01
DOG
2
4 KXFB06HSA00
BRACKET
2
5 KXFB01XPA01
NUT
2
6 KXFB009DA01
NUT
4
7 KXFB0020A00
LINEAR-BUSH
4
8 N510032573AA LMH16LUU
SENSOR
2
9 KXF07B2AA00
A
PM-T53-C1
BOLT
2
10 N510018908AA
Hexagon head bolt M8X40-6g 4T A2J all screw(no mark)
BRACKET
2
11 N210066115AA
BRACKET
2
12 N210066114AA
BRACKET
2
13 N210066113AA
BRACKET
2
14 KXFB0323A00
Sensor
1
15 N610058128AA
M70
--
( KKXFX039KA00-15-2 )

10-C
搬送
コンベア(M)
Transport Conveyor(M)
パーツレイアウト
Ki
t
N
o
.
キット
品番
Kit Name
キット名称
KXFX039KA00
セクションNo.
PARTS LAYOUT
Section No.
--
M71
( KKXFX039KA00-15-3 )