SP60P-M Mechanical 20120628 - 第93页
Ref No. Remark s R 1 Q'ty 10-D 搬送 コンベア(M) Tran sport Conv ey or(M ) イラスト No. Part No. 品 名 品番 数量 R 2 パーツリスト Kit N o . キット品 番 Kit Name キット名称 KXFX039KA00 Part Name 備 考 セクションNo. PARTS LIST Section No. R 3 BRACKET 1 1 N2…

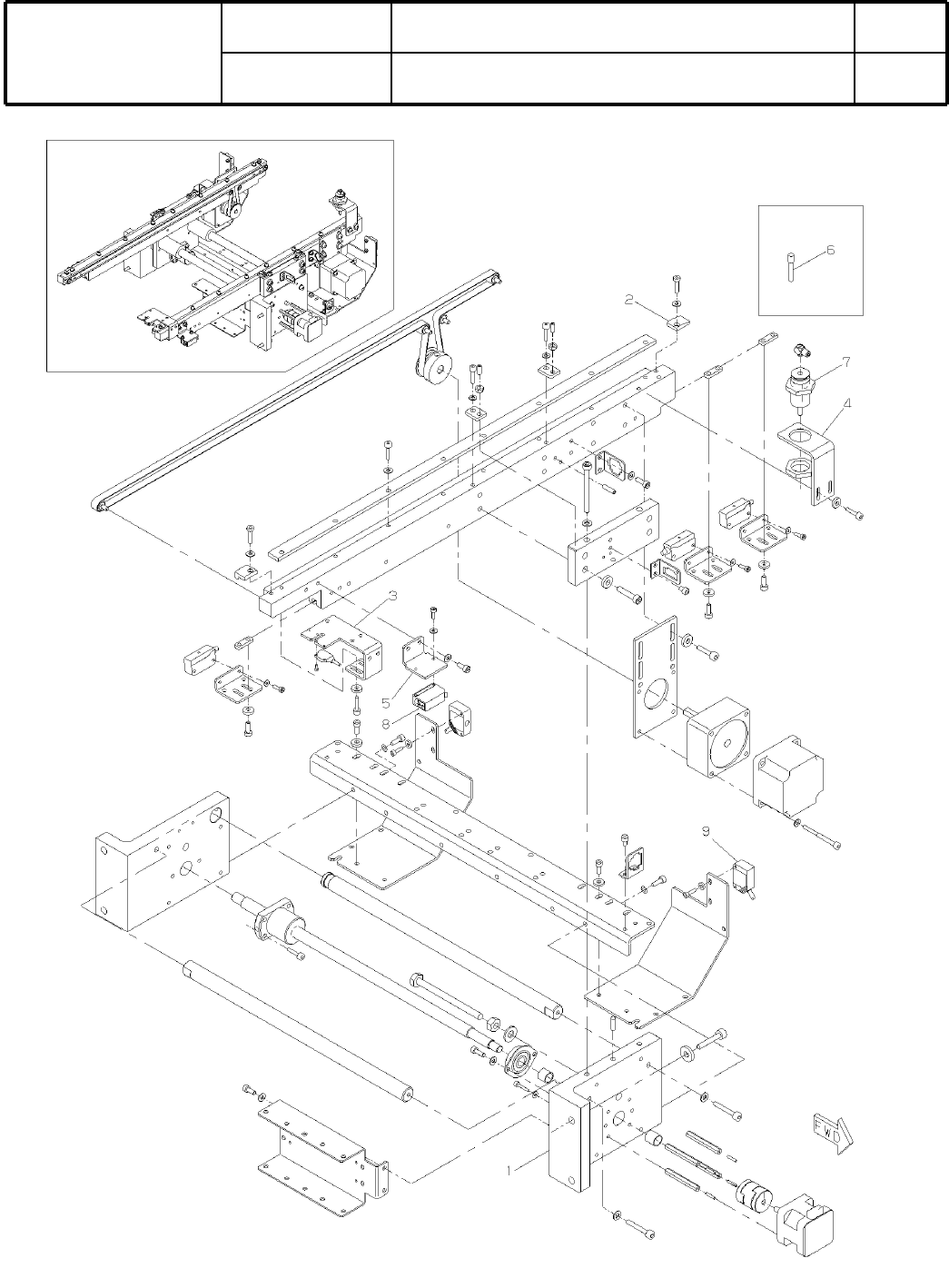
10-D
搬送
コンベア(M)
Transport Conveyor(M)
パーツレイアウト
Ki
t
N
o
.
キット
品番
Kit Name
キット名称
KXFX039KA00
セクションNo.
PARTS LAYOUT
Section No.
--
M73
( KKXFX039KA00-15-4 )

Ref
No.
Remarks
R
1
Q'ty
10-D
搬送
コンベア(M)
Transport Conveyor(M)
イラスト
No.
Part No.
品 名品番 数量
R
2
パーツリスト
Kit N
o
.
キット品
番
Kit Name
キット名称
KXFX039KA00
Part Name
備 考
セクションNo.
PARTS LIST
Section No.
R
3
BRACKET
1
1 N210023314AA
GUIDE
1
2 KXFB031PA00
BRACKET
1
3 KXFB031YA01
BRACKET
1
4 KXFB022QA00
BRACKET
1
5 KXFB08PKA01
PLUG
1
6 KXF02CQAA00 KQP-04
Cylinder Unit
1
7 N610027548AA
SENSOR
1
8 KXF0DXEPA00
A
E3Z-R61 2M
Sensor
1
9 N610058129AA
M74
--
( KKXFX039KA00-15-4 )

11-A
マスククリーニングユニット(M)
Mask Cleaning Unit(M)
パーツレイアウト
Ki
t
N
o
.
キット
品番
Kit Name
キット名称
KXFX039LA00
セクションNo.
PARTS LAYOUT
Section No.
--
M75
( KKXFX039LA00-16-1 )