TR7DN_维修调整 - 第59页
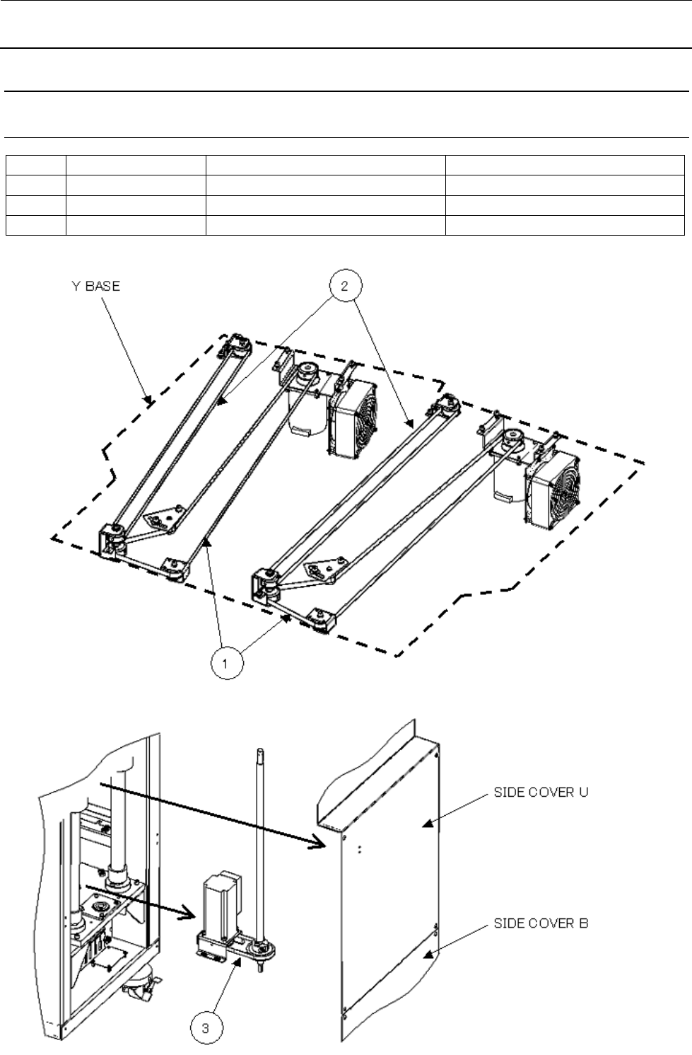
维修调整要领书 5-1 5. 皮带的更换及调整 5- 1. 皮带布置图 No. 货号 品名 备注 1 40117529 Y 皮带 ( ×2 ) 2 40117530 Y J 皮带 ( ×2 ) 3 40117333 Z 皮带 ( ×2 ) ※未图示的 L 侧也相同

维修调整要领书
4-4
接下来请松开皮带轮固定螺丝(F),拆下皮带轮(G)。
由于皮带轮(G)角度的关系,有时不能将六角扳手插入皮带轮固定螺丝(F),此时请把六角扳手插
入轴环固定螺丝(H),将电动机轴旋转之后再进行操作。
然后,请拆下电动机固定螺丝(I),剪断用来固定电动机线束的束线箍并卸下电动机。
请松开与电动机相连之线束的连接器部螺丝,更换电动机。
(编码器线束:螺丝 4 个;制动器线束:螺丝 2 个;电动机线束:螺丝 4 个)
更换电动机后,请进行皮带张力调整。(参阅皮带更换这一节)
③Z 电动机(货号:40045703)
20mm

维修调整要领书
5-1
5.
皮带的更换及调整
5-1.
皮带布置图
No.
货号
品名
备注
1 40117529 Y 皮带 (×2)
2 40117530 YJ 皮带 (×2)
3 40117333 Z 皮带 (×2)
※未图示的L侧也相同

维修调整要领书
5-2
5-2.
Y 皮带、YJ 皮带的更换及调整
请拆下 Y 电动机组件(A)、YF 皮带轮托架组件(B)、YJ 托架组件(C)、YJ 张紧器组件(D)的各
个固定螺丝,从 Y 座板(E)及 YJ 张紧器底座(F)上卸下。
请拆下 Y 皮带压板(G)、Y 皮带连接器(H)、YJ 皮带连接器 BR(I)各个固定螺丝,从 Y 皮带①及
YJ 皮带②上卸下。
※图为 R 侧,未图示的 L 侧也相同。
①Y 皮带(货号:40117529)
②YJ 皮带(货号:40117530)
【治具】(螺丝)
○M3×30带垫片螺丝
○M3×12CAP螺丝
进行皮带更换作业时,对下列要更换的皮带请分别拆下各自所对应的装置。
(各装置的拆卸和安装要领请参照下一页之后的说明)
Ⅰ. R侧:①Y皮带及②YJ皮带 ・・・・・中央导轨装置
Ⅱ. L侧:②YJ皮带 ・・・・・・・・・・・・・・・Y工作台L组合件
Ⅲ. L侧:①Y皮带 ・・・・・・・・・・・・・・・没有装置要拆下
F不必卸下
如果皮带可以拆卸安装,
A可以不动(不必卸下)
皮带压板(G)组装螺丝
安装扭矩:0.3(N/m)
※涂敷LOCTITE粘结剂
放松YJ皮带张力的螺丝
张紧器装置可放松Y皮带的张力