RS-1-Rev01PDFA - 第107页
- 102 - NOTE( 注記 ) #01....FOR EN(OPTIONAL PARTS) EN 用(オプション部品 ) REF.NO NOTE PART NO D E S C R I P T I O N 品 名 Qty 1 401-29648 POSITION BOARD ポジションボード 1 2 401-2962 7 OPTICAL FIBER CABLE 1M 光ファイバケーブル1 M 1 3 401-29652 X AXI…

- 101 -
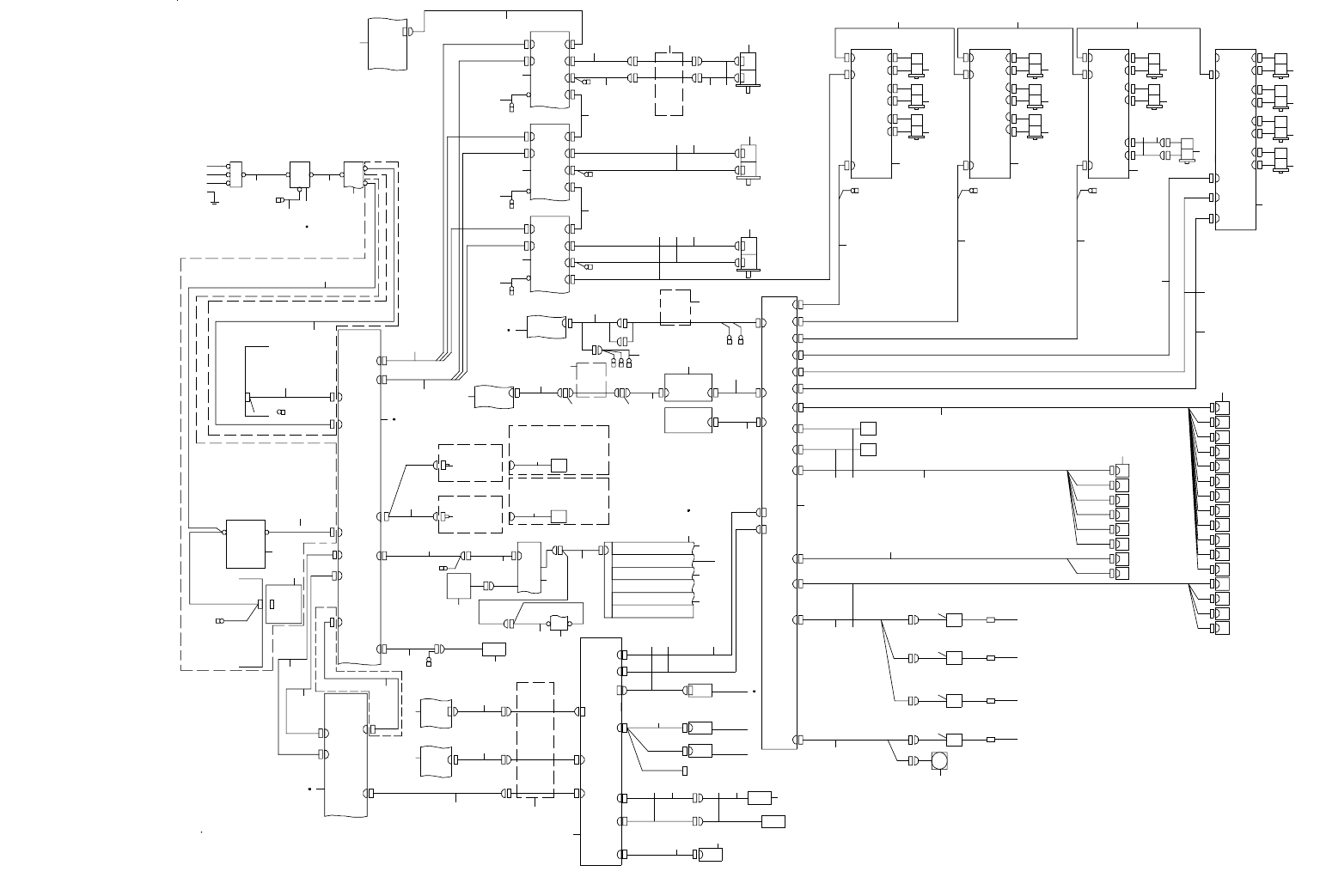
51. SYSTEM DIAGRAM (1)
SYSTEM DIAGRAM(1)
OCC
CN0607
CN0724
CN24
FAN
FAN
DC F AN
FIBE R
T4 ORI GIN SENSOR
T4
FIBE R
FIBE R
FIBE R
T3 ORI GIN SENSOR
T3
T2 ORI GIN SENSOR
T2
T1 ORIGIN SENSOR
T1
CN0707
CN7
VACUUM UNIT
OCC
CN 0632
OCC-O1
OCC-A1
OCC-C1
CN0615
CN0603
CN0606
CN0607 - 1
THERMAL
SENSOR P CB
NZL UP S.V.
HIGHT
MEASURE MEN T
SENSOR
CN0630CN0608
CN0612
OCCAPCB
OCC
LENS
OCCCPCB
CN0611A
CN6
CN7
CN8
CN12
TA CN5
CN5
TA CN6
CN6
TA CNP1
CN2D
CNP2D
CN2C
CNP2C
CN2B
CNP2B
CN1B CN2A
CNP2A
CNP1
CN1A
T4 MOTOR
T3 MOTOR
T2 MOTOR
T1 MOTOR
TA DRIVER
CPCI-CN1
ZCCNP1ZBCNP1ZACNP1
CN1A
CONTROL UNIT
FG(HEAD UNIT)FG(HE AD UNIT)
FG(HEAD UNIT)
CN2C
CNP2C
CN2B
CNP2B
CN1B CN2 A
CNP2A
CNP1
CN1A
CN2C
CNP2C
CN2B
CNP2B
CN1B CN2A
CNP2A
CNP1
CN1A
Z7,Z8,ZA DRIVERZ4,Z5,Z6 DRIVER
Z3 MOTOR
Z2 MOTOR
Z1 MOTOR
CN2C
CNP2C
CN2B
CNP2B
CN1B CN2 A
CNP2A
Z1,Z2,Z3 DRIVE R
CNP1
CN1A
6SLOT CPCI BACK B OARD
1-2C
1-2D
1-1A
1-2B
BLANK
IO CONTROL
IP-X11
BLANK
POSITION BOARD
CPU BOA RD
1
2
3
5
6
7
8
9
10
11
16
11
20
12 12
13
14
15 15
17
18
19
21 22
26
23
24
25
27
34
29
30
31
33
35
36
37
41
42
43
44
50
48 49
71 72
23
47
68
69
33
46
59
51
53
55
56
57
58
62
67
51
49
148
75
74
76
77
78 7980 81
82
84
86
83
85
88
87
73
12
12
12
91
90 90 90
Z6 MOTOR
Z5 MOTOR
Z4 MOTO R
909090
91
91
Z8 MOTOR
Z7 MOTOR
90 90
ZA M OT OR
94
92
93
96969696
95
97
98
99
100
101 102
103
104
105
106
63
64
54
70
65 65 65 65
66 66 66 66
89
Z1 SENSOR
Z2 SENSOR
Z3 SENSOR
Z4 SENSOR
Z5 SENSOR
Z6 SENSOR
Z7 SENSOR
Z8 SENSOR
107
107
61
60
(OP) EN
CONNEC TO R
CAP
BUP
(OP) EN OP TION TOROLLE Y
BUP
FRONT LE FT
BANK SW
(OP) EN S TANDARD
FIX BANK
CN A10( EN)
FBUP
(OP) EN O PT ION TOROLLEY
BUP
REAR RIG HT
BANK SW
RBUP
CN A10(EN )
2-1C
EN OPTI ON
CN A4(E N)
CN A4
CN 000 1
CN 1
CN A1
(ST) 20 0V
(OP) T RANC E FORMAR
215V,24 0V, 380V,400V,41 5V
X-MTR1
X-ENC4
FX
AC 2 00/215/2 40V INPUT : 40 182 380 (30A)
AC 3 80/400/4 15V INPUT : 40 183 383 (20A)
(O P) SHORT C IRCU IT BREAKER AC 200/215/ 24 0V I NPUT : H A0 07030000 (3 0A)
(O P) SHORT C IRCU IT BREAKER AC 380/400/ 41 5V I NPUT : H A0 0654000A (2 0A)
NOTE1
This MCCB 'S P/N change s w ith spec ific ation
1-3C
2-1C
1-3C
FG
CN0715
CN15
CN0716
CN16
Z8 VACU UM SENSOR
Z7 VACU UM SENSOR
Z6 VACU UM SENSOR
Z5 VACU UM SENSOR
Z4 VACU UM SENSOR
Z3 VACU UM SENSOR
Z2 VACU UM SENSOR
Z1 VACU UM SENSOR
CN0711
CN11
Z8V
Z7V
Z7B
Z8B
Z8 VACUUM S.V.
Z7 VACUUM S.V.
Z8 BLOW S.V.
Z7 BLOW S.V.
NOZZLE UP
SENSOR
CN0709
NOZZLE UP
SENSOR
CN9
CN0708
CN8
VACUUM UNIT
Z6V
Z5V
Z4V
Z3V
Z2V
Z1V
Z6B
Z5B
Z4B
Z3B
Z1B
Z2B
Z6 VACUUM S.V.
Z5 VACUUM S.V.
Z4 VACUUM S.V.
Z3 VACUUM S.V.
Z2 VACUUM S.V.
Z1 VACUUM S.V.
Z6 BLOW S.V.
Z5 BLOW S.V.
Z4 BLOW S.V.
Z3 BLOW S.V.
Z2 BLOW S.V.
CN0710
Z1 BLOW S.V.
CN10
XY BEAR
CABLES
ASM
CN5
2-1D
2-1A
1-3C
CN0302
CN0405
CN0410
CN0309
CN0060
CN0005
CN2
IO CONTR OL PCB
CN0717
CN0701
CN1
CN4
CN5
IP-X11 P CB
CN3
CN5
CN10
CN11
CN17
HEAD MAIN PCB
CN1
CN0704LNC-3
CN4
LNC LAN
CN0714LNC-2
CN14
ILLUMINAT ION
UNIT
LNC120- 8
RJ45 RE LAY
CONNECTOR
LNC-1
5-1A
1-3C
LAN3
CPU BOAR D
LAN3
LNC
CN0713
CN13
CN19
XY BEAR
CABLES
ASM
CN0703
CN3
CN0723
CN23
YR-CN2
YL-CN2
Y SERVO MOTO R(YR)
YR MTR
YR CNENC
Y SERVO MO TOR (YL)
CN A6
CN A6
CN B2
CN B2
CN A2CN A2
CN A8
CN A8
PS-ON
CN A3
CN A3
CN A9
CN A9
E
FG
COVER
MTS PWR
CN A1
BATTERY UNIT
FG
FG
(HEAD UNI T)
FX1-CN2
YL-CNP3
YR-CNP3
CN0720
CN0722
CN0721
CN0719
FYR-FG
FYL-FG
FX-FG
E
2-1A
1-1D
2-1C
2-1B
2-1B
CN0043
FG
CN0074
CN0071
FG
POWER SUP PLY
UNIT B
CN43
FG
COVER
MTS PWR
CH1
POSITIO N BOARD
FGFG
FG
CN0070
CN22
CN21
CN20
HEAD RELAY PCB
YL MTR
YL CNENC
X-MTR2
X1-MTR1
X SERVO MOTOR
X-ENC5
YBEAR
CABLES
ASM
X1-ENC4
CNP3
CN2
CN1B
CN1A
E
CNP2
CNP1
FG
CNP3
CN2
CN1B
CN1A
E
CNP2
CNP1
FG
CNP3
CN2
CN1B
CN1A
E
CNP2
CNP1
FG
YR SERVO DR IVER
YL SERVO DR IVER
X SERVO D RI VER
CN B3
CN B3
CN A5
INPUT
CN2003
FG
VACUUM PU MP
POWER
SUPPLY
UNIT B
1-2B
CN A1
CN A5
200V
CN A1
POWER
SUPPLY
UNIT A
TRANSFOR MER
CN2002
1-1B
MAIN SWI TC H
FG
CN2001
CN A7
CN A7
5-1A
1-2C
ATX-P1
AC IN
ATX UNIT
FG
INPUT
PE
NOISE FI LTE R MAIN SW IT CH
MCCB
NOTE1
L3
L2
L1
CN0610
CN0601
CN0614
28
53
RJ45 RE LAY
CONNECTO R
XY BEAR
CABLES
ASM
52
23
111
40
38
39
21 22
4
32
108
110
110
109
BUP
(OP) EN S TANDARD
FIX BAN K
109
45
BATT

- 102 -
NOTE( 注記 ) #01....FOR EN(OPTIONAL PARTS) EN 用(オプション部品)
REF.NO NOTE PART NO D E S C R I P T I O N
品 名
Qty
1 401-29648 POSITION BOARD
ポジションボード
1
2 401-29627 OPTICAL FIBER CABLE 1M
光ファイバケーブル1 M
1
3 401-29652 X AXIS DRIVER
X 軸ドライバ
1
4 401-82237 FX AMP-XY BEAR ENC CABLE ASM
FX AMP − XY ベア ENC ケーブル組
1
5 401-82234 FX AMP-Y BEAR PWR CABLE ASM
FX AMP − Y ベア電源ケーブル組
1
6 401-82273 Y BEAR CABLE
Y ベアケーブル
1
7 401-29148 X-MOTOR ENC CABLE ASM
X −モータ ENC ケーブル組
1
8 400-44546 X MTR PWR CABLE
X MTR 電源ケーブル
1
9 401-29653 X AXIS MOTOR
X 軸モータ
1
10 401-82256 FX AMP-FG WIRE ASM
FX AMP − FG ワイヤー組
1
11 401-29654 Y AXIS DRIVER
Y 軸ドライバ
1
12 401-29628 OPTICAL FIBER CABLE 0.15M
光ファイバケーブル0.15 M
1
13 400-45401 YL ENC CABLE ASM
YL ENC ケーブル組
1
14 401-82269 YL MOTOR CABLE ASM
YL モータケーブル組
1
15 401-46348 Y AXIS SERVO MOTOR
Y 軸モータ
1
16 401-82257 FYL AMP-FG WIRE ASM
FYL AMP − FG ワイヤー組
1
17 400-45403 YR ENC CABLE ASM
YR ENC ケーブル組
1
18 401-82270 YR MOTOR CABLE ASM
YR モータケーブル組
1
19 400-48070 OPTICAL FIBER CABLE 7M
光ファイバケーブル7 M
1
20 401-82258 FYR AMP-FG WIRE ASM
FYR AMP − FG ワイヤー組
1
21 401-83536 POWER SUPPLY UNIT B ASM
電源ユニット B 組
1
22
#01
401-87824 POWER SUPPLY UNIT B ASM_EN
電源ユニット B 組_ EN
1
23 401-82272 XY BEAR CABLE
XY ベアケーブル
1
24 401-33060 XY BEAR AMP PWR-FG WIRE ASM
XY ベア− FG ワイヤー組
1
25 401-28874 HEAD RELAY PCB ASM
ヘッドリレー基板組
1
26 401-82243 EU TOP-F XY BEAR AMP PWR CABLE ASM
EU TOP − F XY ベア アンプ 電源ケーブル組
1
27 401-86992 BREAKER-NF WIRE ASM
BREAKER − NF 束線組
1
28
#01
HK-0429900-7A CAP
キャップ
1
29 401-91282 NOISE FILTER
ノイズフィルタ
1
30
#01
401-91283 NOISE FILTER
ノイズフィルタ
1
31 401-86994 NF-SW WIRE ASM
NF−SW束線組
1
32
#01
401-88159 EU CN A4- CN0001 CABLE ASM(EN)
EU
CN A 4− CN 0001ケーブル組(EN)
1
33 401-88712 SWITCH
スイッチ
1
34 401-28954 NF-FG WIRE ASM
NF − FG ワイヤー組
1
35 401-86995 SW-TF/MTS WIRE ASM2
SW−TF/MTS束線組2
1
36 401-82231 MS-ELECTRICAL UNIT CABLE ASM
MS − ELECTRICAL ユニットケーブル組
1
37 401-83500 MTS PWR CABLE ASM
MTS 電源ケーブル組
1
38 401-83535 POWER SUPPLY UNIT A ASM
電源ユニット A 組
1
39
#01
401-87823 POWER SUPPLY UNIT A ASM_EN
電源ユニット A 組_ EN
1
40 401-82230 CN A3-AMP CNP2 CABLE ASM
CN A 3− AMP CNP 2ケーブル組
1
41 401-91280 TRANSFORMER
トランス
1
42 401-83414 TRANS-EU CABLE ASM
TRANS − EU ケーブル組
1
43 401-82214 ELE UNIT CN A2-CN B3 CABLE ASM
ELE ユニット CN A 2− CN B 3ケーブル組
1
44 401-82232 EU CN A6-EU CN B2 CABLE ASM
EU CN A 6− EU CN B 2ケーブル組
1
45 401-82255 EU TOP-ATX RELAY CABLE ASM
EU TOP − ATX 中継ケーブル組
1
46 EZ-1756647-11 BATTERY PACK (BS06A-H24/2.5L)
バッテリーパック(BS06A−H24/2.5 L)
1
47 401-82264 VACUUM PUMP RELAY WIRE ASM
真空ポンプ中継ワイヤー組
1
48 401-90921 IP-X11 SET GEN ASM(RS-1)
IP−X11 汎用機 セット組図(RS−1)
1
49 401-28871 IO CONTROL PCB ASM
IO コントロール基板組
1
50 401-82240 EU TOP-F XY BEAR HDM PWR CABLE ASM
EU TOP − F XY ベア HDM 電源ケーブル組
1
51 401-23242 CPU BOARD
CPU ボード
1
52 401-36338 LAN CABLE 5M
LAN ケーブル 5 M
1
53 HK-0849200-80 CONNECTOR
コネクタ
1
54 401-89336 HDR-Z VAC SENSOR CABLE ASM
HDR − Z バキュームセンサケーブル組
1
55 401-82216 LNC LAN CABLE ASM
LNC LAN ケーブル組
1
56 401-82791 LNC120-8
LNC 120−8
1
57 401-82217 LNC ENCODER CABLE ASM
LNC エンコーダケーブル組
1
58 401-82218 HDR-LNC LED CABLE ASM
HDR − LNC LED ケーブル組
1
59 401-86497 ATX RELAY-ATX 250V CABLE ASM
ATX RELAY − ATX 250 V ケーブル組
1
60 EZ-1468979-11 POWER (ENSP-300P-S20-11S)
電源(ENSP−300P−S20−11S)
1
61 401-72724 ATX-CPCI WIRE ASM3
ATX − CPCI 束線組3
1
62 401-83537 CTRL_UNIT_ASM
コントロールユニット組
1
63 401-82220 HDR-SV CABLE ASM2
HDR − SV ケーブル組2
1
64 401-82558 CN0707 - T1/T2/T3 ORIGIN CABLE ASM
CN 0707 − T 1/ T 2/ T 3原点ケーブル組
1
65
401-82560 T1/T2/T3/T4 ORIGIN SENSOR ASM
T1/T2/T3/T4原点センサ組
1
66 401-83385 FIBER UNIT 2M
ファイバーユニット 2 M
1
67 401-72512 CPCI BACK BOARD 6SLOT
CPCI バックボード6スロット
1
68 401-29244 VACUUM PUMP ASM
真空ポンプ組
1
69 401-82233 ATX-SW CABLE ASM
ATX − SW ケーブル組
1
70 401-82559 CN0724 - T4 ORIGIN CABLE ASM
CN 0724 − T 4原点ケーブル組
1
71 401-82238 IPX-F XY BEAR CAMERA CABLE ASM
IPX − F XY ベアカメラケーブル組
1
72 401-82239 IO-F XY BEAR SERIAL CABLE ASM
IO − F XY ベアシリアルケーブル組
1
73 401-28873 HEAD MAIN PCB ASM
ヘッドメイン基板組
1
74 401-82241 HDM-HDR SERIAL CABLE ASM
HDM − HDR シリアルケーブル組
1
75 401-29105 HDM-HDR PWR CABLE ASM
HDM − HDR 電源ケーブル組
1
76 401-29102 HDM-OCC L CABLE ASM
HDM − OCC L ケーブル組
1
77 401-29273 HDM-OCC LIGHT L CABLE ASM
HDM − OCC ライト L ケーブル組
1
78 401-29639 OCC
OCC
1
79 401-29640 OCC LENS
OCC レンズ
1
80 401-28879 OCC C PCB ASM
OCC C 基板組
1
81 401-28878 OCC A PCB ASM
OCC A 基板組
1
82 401-29106 HDM-HMS L RELAY CABLE ASM
HDM − HMS L 中継ケーブル組
1
83 401-29108 HMS CABLE ASM
HMS ケーブル組
1
84 401-85429 NZL-UP SV EXTENSION CABLE ASM
NZL − UP SV 延長ケーブル組
1
85 401-83349 NZL-UP SV CABLE ASM
NZL − UP SV ケーブル組
1
86 401-86318 HDM-TMP SENSOR CABLE ASM
HDM − TMP センサケーブル組
1
87 401-28883 THERMAL SENSOR PCB ASM
サーマルセンサ基板組
1
88 HD-0030600-00 SENSOR
センサ
1
89 401-19461 HEAD FAN MOTOR A ASSY
頭部ファンモータ A 組
1
90 401-36334 SERVO MOTOR 30W
サーボモータ 30 W
1
91 EZ-1492148-11 AMPLIFIER SERVO
サ−ボ アンプ (MR − MD 212− S 016)
1
92 401-82565 ZC CN2A CABLE ASM
ZC CN2Aケーブル組
1
93 401-82563 ZC CNP2A CABLE ASM
ZC CNP 2 A ケーブル組
1
94 401-87431 SERVO MOTOR 30W
サーボモータ 30 W
1
95 401-29650 4AXIS INTEGRAL TYPE T AXIS DRIVER
4軸一体型 T 軸ドライバ
1
96 401-36335 SERVO MOTOR 30W
サーボモータ 30 W
1
97 401-82252 HDR-ZA AMP PWR CABLE ASM
HDR − ZA アンプ電源ケーブル組
1
98 401-82253 HDR-ZB AMP PWR CABLE ASM
HDR
− ZB アンプ電源ケーブル組
1
99 401-82254 HDR-ZC AMP PWR CABLE ASM
HDR − ZC アンプ電源ケーブル組
1
100 401-82222 HDR-TA AMP PWR CABLE ASM
HDR − TA アンプ電源ケーブル組
1
101 401-82250 TAMP-HDR SERIAL CABLE ASM
TAMP − HDR シリアルケーブル組
1
102 401-82215 TA CN5-CN0713 CABLE ASM
TA CN 5− CN 0713ケーブル組
1
103 401-82251 HDR-SV CABLE ASM
HDR − SV ケーブル組
1
104 401-33002 NZL UP SENSOR 6T L CABLE ASM
ノズルアップセンサ(6 TL)ケーブル組
1
105 401-33003 NZL UP SENSOR 6T R CABLE ASM
ノズルアップセンサ(6 TR)ケーブル組
1
106 401-89336 HDR-Z VAC SENSOR CABLE ASM
HDR − Z バキュームセンサケーブル組
1
107 401-82489 VACCUM_UNIT
バキュームユニット
1
108
#01
401-88158 EU BTM-BANK UP CABLE ASM(EN)
EU BTR − BANK UP ケーブル組(EN)
1
109
#01
400-02344 BUP SHORT WIRE(EN) ASM
BUP ショートケーブル EN 組
1
110
#01
400-02287 B SW CABLE ASM(EN)
B スイッチケーブル組(EN)
1
111 401-82229 CN A5-X/YL/YR CNP1 CABLE ASM
CN A 5− X / YL / YR CNP 1ケーブル組
1

- 103 -
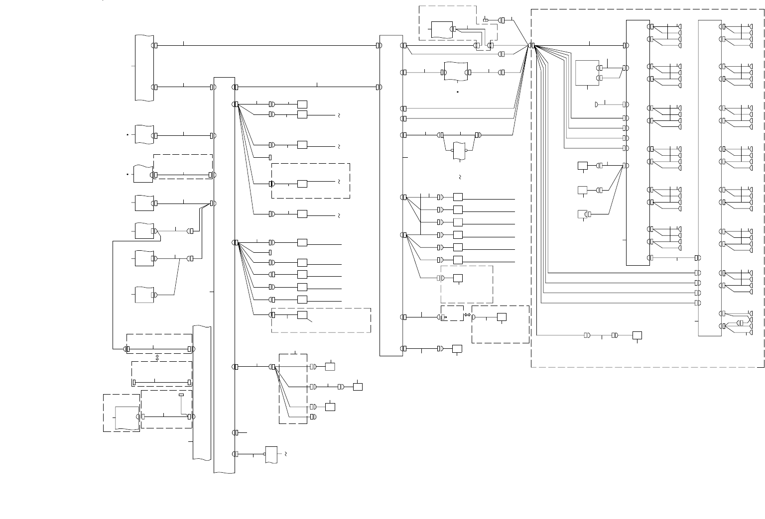
52. SYSTEM DIAGRAM (2)
SYSTEM DIAGRAM(2)
AIR BLOW SV
(CN0607-1)
EB2 CN17
CN2
CN1
EB2 CN1 6
EB2 CN2
CN 0607-1
FEEDER COOL IN G
AIR BLO W SV
RL4
2-3B
CN 16
CN1216
CN1223
RL4
2-2D
1-1A
TB4
TB3
TB2
TB1
TB4
TB3
TB2
TB1
CUTTER S.V
CUTTER CLOSE
SENSOR
CUTTER OPEN
SENSOR
CN2
SV
OPEN
CLOSE
EXT-POW
CN17
CN1
CN2
EB2 CN18
CN1
CN18
CN14
EB2 CN13
CN13
EB2 CN14
EB2 CN12
CN12
CN 11
EB2 CN10
CN 10
EB2 CN11
EB2 CN9
CN9
EB2 CN6
CN6
CN5
EB2 CN4
CN4
EB2 CN5
EB2 CN3
CN3
CN56
CN55
CN54
CN53
ID
EB1 CN18
CN 1 8
CN 1 7
EB1 CN16
CN 1 6
EB1 CN17
EB1 CN15
CN 1 5
CN 1 4
EB1 CN13
CN 1 3
EB1 CN14
EB1 CN12
CN 1 2
C N11
EB1 CN10
CN10
EB1 CN11
EB1 CN9
CN9
CN8
EB1 CN7
CN7
EB1 CN8
EB1 CN6
CN6
CN5
EB1 CN4
CN4
CN27
CN26
CN25
CN24
CN23
CN32
CN31
CN30
CN29
CN28
CN22
CN21
CN1334
FEEDER FLOAT SENSOR REC3
X NEAR
SENSOR
OP CN7
CN1319C
FLUXER
(OP)
(REA R MONITOR)
IP-X 11
TRIG
EB1 CN5
EB1 CN3
CVLOCK
3-1C
3-1D
2-1B
2-3A
1-2B
4-4B
1-2D
3-1A
1-2D
1-2B
1-2A
1-2A
1-1 A
ENCODER
IP -X11_ENC (9 -1 0 )
IP-X11 PCB
E BANK TROLLEY UNIT
CN1340
CN3
ELEC BANK L - SIDE PC B AS M
CN15
CN14
CN13
CN12
CN 11
CN20
CN19
CN18
CN17
CN16
CN05
CN04
CN03
CN02
CN01
CN10
CN09
CN08
CN07
CN06
CN47
CN46
CN45
CN52
CN51
CN50
CN49
CN48
CN37
CN36
CN35
CN34
CN33
CN40
CN39
CN38
CN16
CN1
CN1756
ELEC BANK R-SIDE PCB ASM
CN0421
CN0304
CN4
CN 1301
CN1
CN5
CN1205 CN130 5
CN5
E BANK RE LAY P CB( F)
CN1341
FG
CN1342
CN0015
CN15
CN1315
CN19
CN1319
CN9
CN1309
CN17
CN1317
CN7
CN1307
CN1344 C N1343
CN15
CN B4
POWER SUPPLY UNIT B
CN B4
CN6
CN1335
CN1306
AIR PRESSURE
SENSOR (+ )
CN8
CN1349
CN1308
FEEDER FLOAT SENSOR REC2
FEEDER FLOAT SENSOR EMI1
CN12
CN1333
CN1331
CN1329
CN1312
FEED ER F LO AT SE NS OR EM I3
FEED ER F LO AT SE NS OR EM I2
CN1 1
CN1328
CN1327
CN1325
CN13 11
FEED ER F LO AT SE NS OR RE C1
CN2
CN1
CN3
CN7
CN10
CN1209
CN9
CN1208
CN8
KEY SW
CONSOLE SW(F)
CN1262
CN1261
STOP SW (F)
CN1260
START S W( F)
CN1259
CN1258
CN1263CN1207
EMG SW(F)
CN120 2
CN1201
Y BEAR
CABLES ASM
CN1220
X NEG LMT
SENSOR
CN1230
X POS LMT
SENSOR
CN1224
CN1222
CN1221
CN1246
SIGNAL TOWER
CN1244
COVER LOCK S.V.(F)
CN1243
COVER OPEN SW(F)
CN1242
Y NEAR SENSOR
CN1241
CN1240
CN1239
CN1254
CN1253
FYR CN3
FYL CN3
FX CN3
CN3
YR S ERVO DRIVER
CN3
X SERVO D RIVER
CN0201
EMG
POSITION BOA RD
CN0301
CN 1211
CN3
YL S ERVO DRIVER
CN0017
POWER SUPPLY UNIT B
CN17
CN1
IO CONTROL PCB
CN1203
Y NEG LMT SENSOR
CN 11
97
98
99
100
101
102
103
104
105
106
107
108
109
110
111
12
96
83
84
93
94
95
92
91
90
89
CN41
CN42
CN43
CN44
CN8
EB2 CN7
CN7
EB2 C N 8
88
87
86
85
74
BANK ID PCB ASM
76
75
77
807978
81
47
49
59
58
61
4 5
60
63
62
64 66
70
67
686968696968
71 72
57
145
2 3 115 7
9
11
6 8 10 10
13
16
15
14
SAFETY PCB
17
18
19
20
22
23 25 26 28
21
29 34
30 33 35 37
38
39 40414243
112
45
46
39
48
39
40
52
56
53 55
82
EB1 CN1
(OP)IFS-NX
MPC2F
CN1&CN2
MPC-CAN(F)
5-3B
MPC 1F
44
114
113
(OP)VCS
(OP) TOROLLEY
CN1349
BANK AIR
DOWN SW (F)
(OP) TOROLLEY
CN1334
BANK U P SE NS OR
(ST)
FIX BANK
(ST)
(OP)VCS
IP-X11 _EN C( 5-6)
ENC(9- 10 )
CN0421
(OP)EN
1-1C
CN A11
CN A11
POWER SUPP LY U NIT A
CN1210
CN1349 -1
(OP)VCS
CN2200
4-3A
CN2008
CN8
LIGHT CTRL PC B
50 51
116
117
73
119
120
118
SIGNAL TOWER (OP)
(MIN I SIGNAL TOWER)