FX-3R-Rev03 - 第63页
- 56 - NOTE( 注記 ) #01....TYPE XL XL 仕様 *INSTALLATION POSITION AND DIRE CTION VARY IF THE PW B TRANSFER REFERENCE IS DIFFER ENT. 基板搬送基準が異なると取 付位置、方向が変わります。 REF.NO NOTE PART NO D E S C R I P T I O N 品 名 Qty 1 400-46858 CON…

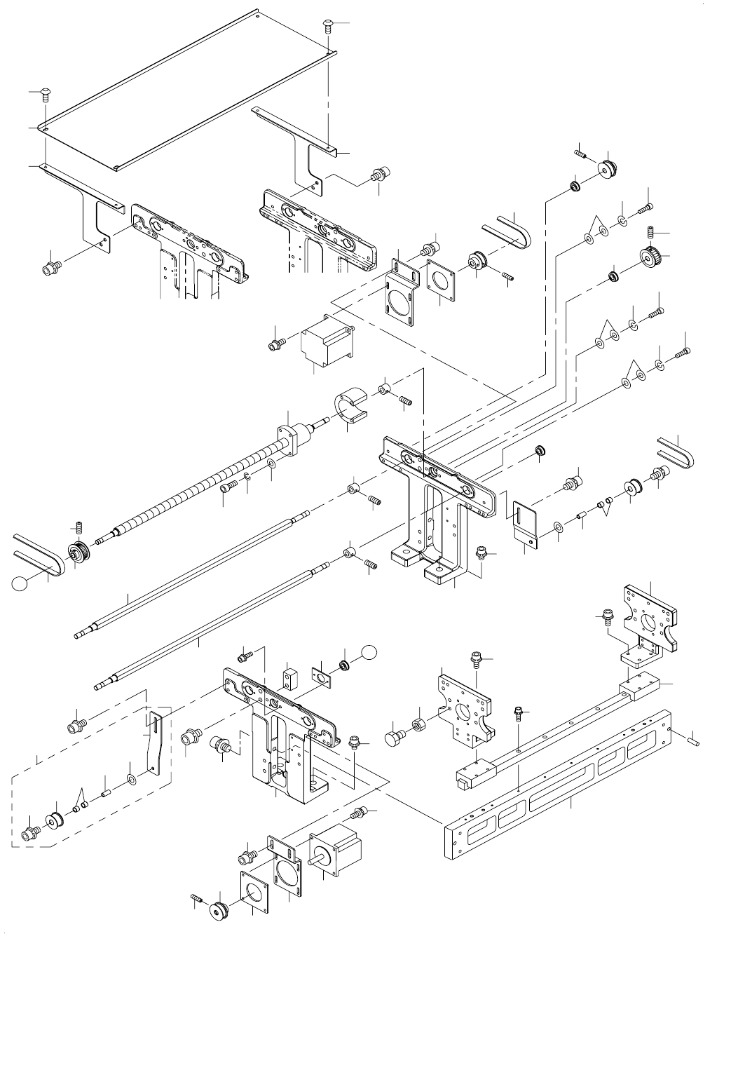
- 55 -
28.PWB CONVEYOR COMPONENTS (2)
基板搬送関係(2)
9 10
11
12
7
8
11
12
33
13
16
14
15
15
14
16
17
14
15
15
14
16
33
13
18
19
20
5
6
25
26
27
22
23
24
25
21
23
25
24
18
19
20
15
17
15
16
14
15
14
16
23
25
22
24
14
15
16
14
3
4
28
28
1
2
30
29
30
29
31
31
38
39
47
48
49
50
49
50
45
46
45
46
47
48
36
37
59
63
62
64
59
61
58
59
58
60
58
60
53
54
52
66
67
68
52
65
64
63
62
54
52
53
59
60
59
58
61
59
58
60
67
52
66
68
58
59
60
58
65
40
51
41
42
40
51
56
57
43
44
57
56
58
59
60
34
35
21
32
32
55
55

- 56 -
NOTE( 注記 ) #01....TYPE XL XL 仕様
*INSTALLATION POSITION AND DIRECTION VARY IF THE PWB TRANSFER
REFERENCE IS DIFFERENT.
基板搬送基準が異なると取付位置、方向が変わります。
REF.NO NOTE PART NO D E S C R I P T I O N
品 名
Qty
1 400-46858 CONVEYOR_RAIL_J_ASM
コンベアレール J 組
2
2
#01
400-94138 CONVEYOR_RAIL_J_ASM_XL
コンベアレール J 組_ XL
2
3 400-46917 RAIL_PLATE_J-A
レールプレート J − A
(1)
4
#01
400-92021 RAIL_PLATE_J-A_XL
レールプレートJ−A_XL
(1)
5 400-46918 RAIL_PLATE_J-B
レールプレート J − B
(1)
6
#01
400-92022 RAIL_PLATE_J-B_XL
レールプレートJ−B_XL
(1)
7 400-46919 CONVEYOR_RAIL_J-A
コンベアレール J − A
(1)
8
#01
400-92008 CONVEYOR_RAIL_J-A_XL
コンベヤレールJ−A_XL
(1)
9 400-46920 CONVEYOR_RAIL_J-B
コンベアレール J − B
(1)
10
#01
400-92009 CONVEYOR_RAIL_J-B_XL
コンベヤレールJ−B_XL
(1)
11 400-46922 RAIL_SUPPORT_J
レールサポート J
(2)
12
#01
400-92024 RAIL_SUPPORT_J_XL
レールサポート J _ XL
(2)
13 SM-4040855-SC SCREW
なべ小ねじ M 4 L =8
(4)
14 E2089-721-0A0 CONVEYOR PULLEY B ASM.
搬送プ−リ B 組
(8)
15 400-46933 PULLEY_SPACER_A
プーリスペーサ A
(8)
16 SM-4042001-SC SCREW M4 X 20
なべ小ねじ M 4 X 0.7 L =20
(6)
17 SM-4042501-SC SCREW M4X0.7 L=25
なべ小ねじ M 4 X 0.7 L =25
(2)
18 WP-0430801-SC WASHER 4.3X9X0.8
平座金 4.3 X 9 X 0.8
(2)
19 WS-0410002-KN SPRING WASHER
ばね座金 M 4
(2)
20 NM-6040001-SC NUT M4
六角ナット M 4
(2)
21 400-46868 DRIVE_PULLEY_ASM
ドライブプーリ組
(2)
22 400-46942 DRIVE_PULLEY
ドライブプーリ
(1)
23 E2160-721-000 PULLEY FLANGE
プーリフランジ
(1)
24 SL-6030892-TN SCREW
座金付き六角穴ボルト
(3)
25 E3931-750-000 PULLEY WASHER
プーリ スラスト ワッシャ
(4)
26 E2160-721-000 PULLEY FLANGE
プーリフランジ
(2)
27 SL-6030892-TN SCREW
座金付き六角穴ボルト
(6)
28 SL-6031692-TN SCREW
座金付き六角穴ボルト
(4)
29 SM-6052002-TN BOLT
六角穴ボルト
(4)
30 WP-0531001-SC WASHER
平座金みがき丸 M 5
(4)
31 SL-6052092-TN SCREW
座金付き六角穴ボルト
(4)
32 E2111-715-0A0 CONVEYOR PULLEY ASM.
搬送プ−リ(組)
(4)
33 WP-0430800-SC WASHER M4
平座金小形丸 M 4
(4)
34 400-46859 CONVEYOR_RAIL_IN-OUT_ASM
コンベアレール IN − OUT 組
2
35
#01
400-94139 CONVEYOR_RAIL_IN-OUT_ASM_XL
コンベアレール IN − OUT 組_ XL
2
36 400-46927 RAIL_PLATE_IN-OUT_A
レールプレート IN − OUT _ A
(1)
37
#01
400-92025 RAIL_PLATE_IN-OUT_A_XL
レールプレートIN−OUT_A_XL
(1)
38 400-46928 RAIL_PLATE_IN-OUT_B
レールプレート IN − OUT _ B
(1)
39
#01
400-92026 RAIL_PLATE_IN-OUT_B_XL
レールプレートIN−OUT_B_XL
(1)
40 SL-6031692-TN SCREW
座金付き六角穴ボルト
(6)
41 400-46929 CONVEYOR_RAIL_IN-OUT_A
コンベアレール IN − OUT _ A
(1)
42
#01
400-92011 CONVEYOR_RAIL_IN-OUT_A_XL
コンベヤレールIN−OUT_A_XL
(1)
43 400-46930 CONVEYOR_RAIL_IN-OUT_B
コンベアレール IN − OUT _ B
(1)
44
#01
400-92012 CONVEYOR_RAIL_IN-OUT_B_XL
コンベヤレールIN−OUT_B_XL
(1)
45 SM-6052002-TN BOLT
六角穴ボルト
(6)
46
#01
SM-6052002-TN BOLT
六角穴ボルト
(8)
47 WP-0531001-SC WASHER
平座金みがき丸 M 5
(6)
48
#01
WP-0531001-SC WASHER
平座金みがき丸 M 5
(8)
49 400-46932 RAIL_SUPPORT_IN-OUT
レールサポート IN − OUT
(2)
50
#01
400-92028 RAIL_SUPPORT_IN-OUT_XL
レールサポート IN − OUT _ XL
(2)
51 SL-6052092-TN SCREW
座金付き六角穴ボルト
(6)
52 E3931-750-000 PULLEY WASHER
プーリ スラスト ワッシャ
(4)
53 E2160-721-000 PULLEY FLANGE
プーリフランジ
(2)
54 SL-6030892-TN SCREW
座金付き六角穴ボルト
(6)
55 E2111-715-0A0 CONVEYOR PULLEY ASM.
搬送プ−リ(組)
(4)
56 WP-0430800-SC WASHER M4
平座金小形丸 M 4
(4)
57 SM-4040855-SC SCREW
なべ小ねじ M 4 L =8
(4)
58 E2089-721-0A0 CONVEYOR PULLEY B ASM.
搬送プーリ B 組
(8)
59 400-46933 PULLEY_SPACER_A
プーリスペーサ A
(8)
60 SM-4042001-SC SCREW M4 X 20
なべ小ねじ M 4 X 0.7 L =20
(6)
61 SM-4042501-SC SCREW M4X0.7 L=25
なべ小ねじ M 4 X 0.7 L =25
(2)
62 WP-0430801-SC WASHER 4.3X9X0.8
平座金 4.3 X 9 X 0.8
(2)
63 WS-0410002-KN SPRING WASHER
ばね座金 M 4
(2)
64 NM-6040001-SC NUT M4
六角ナット M 4
(2)
65 400-46868 DRIVE_PULLEY_ASM
ドライブプーリ組
(2)
66 400-46942 DRIVE_PULLEY
ドライブプーリ
(1)
67 E2160-721-000 PULLEY FLANGE
プーリフランジ
(1)
68 SL-6030892-TN SCREW
座金付き六角穴ボルト
(3)

- 57 -
29.PWB CONVEYOR COMPONENTS (3)
基板搬送関係(3)
4
5
9
10
8
19
12
13
15
17
16
11
2
20
18
66
67
68
24
25
26
27
28
7
30
29
34
31
32
33
35
36
37
42
40
39
38
41
43
49
46
47
50
51
1
52
53
54
55
63
57
60
58
61
64
65
65
64
66
67
68
44
21
22
23
69
70
69
70
18
5
4
A
A
3
3
71
72
73
74
76
76
75
56
75
56
59
45
14
48
62
6